haart says ..
An impressive and extended three / four-bedroom detached home occupying a generous plot on the ever-popular Fiskerton Way, Oakwood, offering exceptional versatility, ample parking, and flexible living space ideal for modern family life
Property Oracle says ..
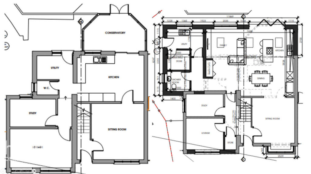
This is a detached property located in Oakwood, Derby. It features three bedrooms and two bathrooms, making it suitable for families. The property includes a garden and a conservatory, enhancing its living space. The interior appears to be in good condition, with a modern kitchen and updated living areas. The property is located near schools and transportation, adding to its convenience. The asking price of £300,000 seems competitive compared to similar properties in the area. Overall, this property offers a blend of comfort, convenience, and modern living in a desirable suburban location.
Therefore, we give this property 7 / 10. *Disclaimer: This is our option and does constitute a recommendation or financial advice. Do your own research. *
- Price
- 7
- Condition
- 7
- Location
- 7
- Land
- 7
- Bedrooms
- 3
- Bathrooms
- 2
The heatmap indicates the level of crime in the area. The color of the heatmap indicates the crime severity and recency.
Metrics Year-on-Year
- Average area value
- 375,000.00 £Increased by 53.16 %
- Average area rental value
- 800.00 £/moDecreased by 17.44 %
- Est rental Yield
- 2.56 %Decreased by 46.11 %
- Crime Rate
- 5.00 %Unchanged by 0.00 %
Agent Activity
haart created the listing.
Nearby Schools
| Name | Type | Ofsted | Distance |
|---|---|---|---|
| Cavendish Close Junior Academy | Academy Sponsor Led | 0.48 KM | |
| Cavendish Close Infant School | Community School | Good | 0.51 KM |
| Lees Brook Community School | Academy Converter | Requires improvement | 0.55 KM |
| Audrey Drive Children'S Centre | Children's Centre | 0.62 KM | |
| Oakwood | Children's Centre | 0.91 KM |
Images
Nearby Streets
| Name | Average Price | Average Sqft | Distance |
|---|---|---|---|
| Lawrence Avenue | £ 0 | 0 | 0.00 KM |
| Wardlow Avenue | £ 155,000 | 0 | 0.00 KM |
| Hassop Road | £ 0 | 0 | 0.00 KM |
| Alderley Court | £ 0 | 1,252 | 0.00 KM |
| Ennis Close | £ 185,000 | 0 | 0.00 KM |
Nearby Transport
| Name | NLC | TLC | Distance |
|---|---|---|---|
| Spondon | 1699 | SPO | 3.31 KM |
| Derby | 1823 | DBY | 4.73 KM |
| Peartree | 1687 | PEA | 6.90 KM |
| Duffield | 1691 | DFI | 8.67 KM |
Nearby Listings
| Address | Price | Type | Score | Distance |
|---|---|---|---|---|
| Fiskerton Way, Oakwood | £ 300,000 | BUY | 7 / 10 | 0.00 KM |
| Fiskerton Way, Oakwood, Derby | £ 200,000 | BUY | 6 / 10 | 0.06 KM |
| Fiskerton Way, Oakwood, Derby, Derbyshire, DE21 | £ 350,000 | BUY | 6 / 10 | 0.06 KM |
| Kibworth Close, Oakwood, DE21 | £ 205,000 | BUY | 7 / 10 | 0.09 KM |
| 16 Fiskerton Way, Oakwood | £ 270,000 | BUY | Unknown | 0.09 KM |
Nearby Properties
| Address | Price | Distance |
|---|---|---|
| 32 Fiskerton Way | £ 112,000 | 0.06 KM |
| 27 Fiskerton Way | £ 255,000 | 0.06 KM |
| 26 Fiskerton Way | £ 145,000 | 0.06 KM |
| 38 Fiskerton Way | £ 167,000 | 0.06 KM |
| 34 Fiskerton Way | £ 165,500 | 0.06 KM |