Douglas & Gordon says ..
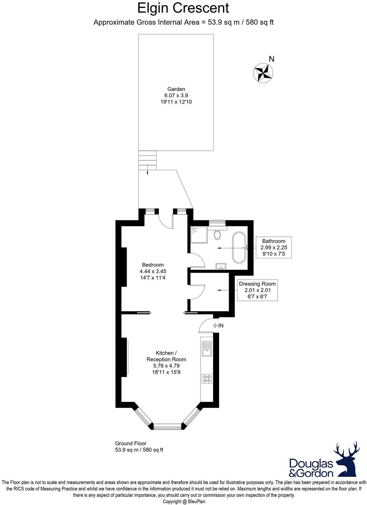
A one of a kind raised ground floor garden flat on a prestigious street in Notting Hill. This property comes to market in immaculate condition, and boasts a spacious open plan kitchen living room with high ceilings, a huge bay window, period features and an original fireplace. The kitchen is..
Property Oracle says ..
Therefore, we give this property 7 / 10. *Disclaimer: This is our option and does constitute a recommendation or financial advice. Do your own research. *
- Price
- 6
- Condition
- 8
- Location
- 9
- Land
- 6
- Bedrooms
- 1
- Bathrooms
- 1
- Sqft (est)
- 580.17
The heatmap indicates the level of crime in the area. The color of the heatmap indicates the crime severity and recency.
Metrics Year-on-Year
- Average area value
- 723,571.00 £Decreased by 57.24 %
- Est sale value
- 465,876.51 £Decreased by 43.57 %
- Average area rental value
- 2,716.00 £/moIncreased by 6.05 %
- Est letting value
- 1,740.51 £/moIncreased by 50.00 %
- Est rental Yield
- 4.50 %Increased by 147.25 %
- Crime Rate
- 6.00 %Unchanged by 0.00 %
from 1,692,099.00 £
from 825,581.91 £
from 2,561.00 £/mo
from 1,160.34 £/mo
from 1.82 %
from 6.00 %
Agent Activity
Douglas & Gordon created the listing.
Nearby Schools
| Name | Type | Ofsted | Distance |
|---|---|---|---|
| Clare Gardens Children'S Centre | Children's Centre | 0.23 KM | |
| Colville Primary School | Community School | Outstanding | 0.29 KM |
| Chepstow House School | Other Independent School | Outstanding | 0.40 KM |
| Notting Hill Prep School | Other Independent School | 0.40 KM | |
| Maxilla Nursery School | Local Authority Nursery School | Outstanding | 0.59 KM |
Images
Nearby Streets
| Name | Average Price | Average Sqft | Distance |
|---|---|---|---|
| Blenheim Crescent | £ 0 | 0 | 0.00 KM |
| St Luke's Road | £ 0 | 0 | 0.00 KM |
| Rosmead Road | £ 0 | 0 | 0.00 KM |
| McGregor Road | £ 625,000 | 0 | 0.00 KM |
| Westway | £ 0 | 0 | 0.00 KM |
Nearby Transport
| Name | NLC | TLC | Distance |
|---|---|---|---|
| Shepherd'S Bush | 9587 | SPB | 1.70 KM |
| Kensington (Olympia) | 3092 | KPA | 1.97 KM |
| Queens Park (London) | 1419 | QPW | 2.12 KM |
| Kensal Rise | 1448 | KNR | 2.69 KM |
| Kensal Green | 1447 | KNL | 2.75 KM |
Nearby Listings
| Address | Price | Type | Score | Distance |
|---|---|---|---|---|
| Elgin Crescent, W11 | £ 1,200,000 | BUY | 7 / 10 | 0.00 KM |
| Elgin Crescent, Notting Hill, London, W11 | £ 1,250,000 | BUY | 8 / 10 | 0.00 KM |
| Flat D, 16 Elgin Crescent, Notting Hill, London, W11 | £ 265,000 | BUY | 7 / 10 | 0.00 KM |
| Elgin Crescent, London, W11 | £ 1,100,000 | BUY | 7 / 10 | 0.01 KM |
| Elgin Crescent, London, W11 | £ 3,750,000 | BUY | 8 / 10 | 0.02 KM |
Nearby Properties
| Address | Price | Distance |
|---|---|---|
| 37b Elgin Crescent | £ 999,000 | 0.06 KM |
| 37a Elgin Crescent | £ 345,000 | 0.06 KM |
| 31a Elgin Crescent | £ 1,000,000 | 0.06 KM |
| 37d Elgin Crescent | £ 305,000 | 0.06 KM |
| 7 Kensington Park Mews | £ 2,685,000 | 0.06 KM |