Wadhurst Road, Mark Cross
BA

Wadhurst Road, Mark Cross

By Batcheller Monkhouse

£ 2,300,000

Reviews

3 out of 5 stars

Batcheller Monkhouse says ..

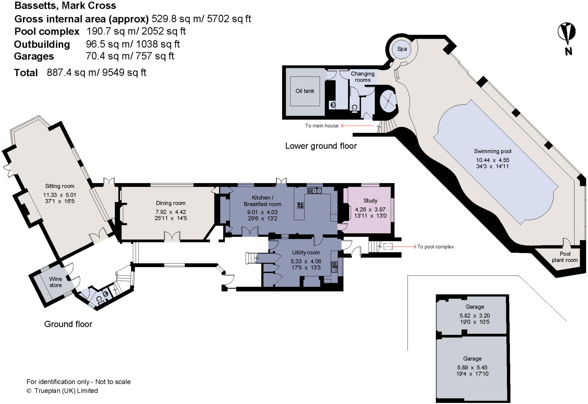
An opportunity to acquire a sensational country house (unlisted) with influences from the Arts and Crafts period, situated in a superb rural location with glorious views and beautiful mature grounds; indoor pool complex and range of outbuildings. In all approaching 24 acres.

Property Oracle says ..

This is a substantial six-bedroom detached house located in the rural area of Mark Cross, East Sussex. Marketed by Batcheller Monkhouse, the property offers a wealth of traditional features and is set within extensive, well-maintained grounds. The house includes three bathrooms and an indoor swimming pool. While the property is generally in good condition, some areas, particularly the pool and some interior decor, could benefit from modernisation. The location offers a balance of rural tranquility and accessibility to nearby towns and transport links. The asking price of £2,300,000 reflects the size, location, and features of the property, positioning it at the higher end of the local market.

Therefore, we give this property 7 / 10. *Disclaimer: This is our option and does constitute a recommendation or financial advice. Do your own research. *

Price
6
Condition
7
Location
7
Land
9
Bedrooms
6
Bathrooms
3

The heatmap indicates the level of crime in the area. The color of the heatmap indicates the crime severity and recency.

Metrics Year-on-Year

Average area value
583,750.00 £
Decreased by 24.98 %
from 778,090.00 £
Average area rental value
1,365.00 £/mo
Decreased by 54.68 %
from 3,012.00 £/mo
Est rental Yield
2.81 %
Decreased by 39.57 %
from 4.65 %
Crime Rate
0.00 %
from 0.00 %

Agent Activity

  • Batcheller Monkhouse created the listing.

Nearby Schools

NameTypeOfstedDistance
Mark Cross Church Of England Aided Primary SchoolVoluntary Aided SchoolGood3.26 KM
The Mount Camphill Community LtdSpecial Post 16 InstitutionGood3.47 KM
Mayfield Church Of England Primary SchoolVoluntary Controlled SchoolGood4.24 KM
Mayfield SchoolOther Independent School4.26 KM
Sacred Heart SchoolOther Independent School4.47 KM

Images

Picture No. 47 Picture No. 48 Picture No. 49 Picture No. 05 Picture No. 08 Picture No. 54 Picture No. 53 Picture No. 10 Picture No. 09 Picture No. 15 Picture No. 51 Picture No. 12 Picture No. 21 Picture No. 22 Picture No. 50 Picture No. 42 Picture No. 40 Picture No. 39 Picture No. 44 Picture No. 45 Picture No. 43 Picture No. 41 Picture No. 27

Nearby Transport

NameNLCTLCDistance
Wadhurst5231WAD3.90 KM
Frant5218FRT5.95 KM
Tunbridge Wells5230TBW9.15 KM
Stonegate5240SOG9.30 KM

Nearby Listings

AddressPriceTypeScoreDistance
Wadhurst Road, Mark Cross £ 2,300,000BUY7 / 100.00 KM
Wadhurst Road, Mark Cross, TN6 £ 650,000BUY6 / 100.07 KM
Wadhurst Road, Mark Cross, TN6 £ 1,400,000BUY8 / 100.11 KM
Best Beech Hill, Wadhurst, East Sussex, TN5 £ 975,000BUY7 / 101.07 KM
Best Beech Hill, Wadhurst £ 1,750,000BUY7 / 101.20 KM

Nearby Properties

AddressPriceDistance
Merryfields £ 760,0001.19 KM
Beggars Bush Cottage £ 392,0001.24 KM
Nizel Cottage £ 695,0001.50 KM
Coldharbour Fruit Farm £ 817,5001.50 KM
Rushers £ 1,500,0001.50 KM