2 South Parade, Nottingham, NG1
By Fairview Estates
£ 200,000
Reviews
3 out of 5 stars
Fairview Estates says ..
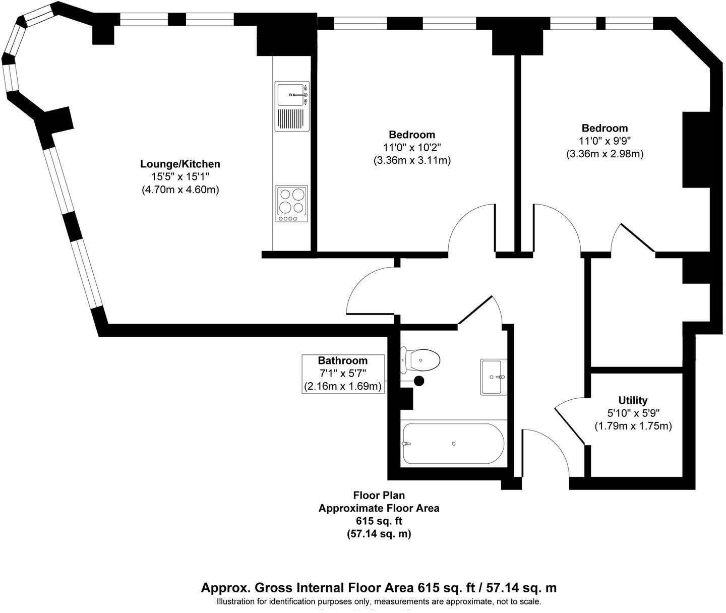
Two double bedroom apartment within The Lambs Building. Fantastic views overlooking the Market Square and obtaining an annual rent roll of £17,400 to Sept 2023.
Property Oracle says ..
This 2-bedroom apartment is located in the Castle area of Nottingham, a vibrant and popular location. The property benefits from being close to Nottingham Trent University and several highly-rated schools, as well as excellent transport links. The apartment itself appears to be in good condition, with modern fixtures and fittings. While the square footage is relatively small at 525 sqft, the list price of £200,000 is slightly above the average price per square foot for the area (£288), but comparable to other nearby apartments. The lack of information on plot size makes it difficult to assess the land aspect fully. Overall, this property presents a reasonable opportunity for buyers looking for a modern apartment in a central Nottingham location.
Therefore, we give this property 7 / 10. *Disclaimer: This is our option and does constitute a recommendation or financial advice. Do your own research. *
- Price
- 7
- Condition
- 9
- Location
- 10
- Land
- 3
- Bedrooms
- 2
- Bathrooms
- 1
- Sqft (est)
- 525.01
- Lot (est)
- 615.00
The heatmap indicates the level of crime in the area. The color of the heatmap indicates the crime severity and recency.
Metrics Year-on-Year
- Average area value
- 273,747.00 £Decreased by 7.23 %
- Est sale value
- 192,153.66 £Increased by 23.65 %
- Average area rental value
- 1,032.00 £/moDecreased by 0.77 %
- Est letting value
- 525.01 £/moUnchanged by 0.00 %
- Est rental Yield
- 4.52 %Increased by 6.86 %
- Crime Rate
- 38.00 %Unchanged by 0.00 %
Agent Activity
Fairview Estates created the listing.
Nearby Schools
| Name | Type | Ofsted | Distance |
|---|---|---|---|
| The Nottingham Trent University | Higher Education Institutions | Good | 0.43 KM |
| Stone Soup Academy | Free Schools Alternative Provision | Outstanding | 0.62 KM |
| Nottingham College | Further Education | Requires improvement | 0.71 KM |
| St Joseph'S School | Other Independent School | 0.88 KM | |
| Welbeck Primary School | Community School | Outstanding | 0.93 KM |
Images
Nearby Streets
| Name | Average Price | Average Sqft | Distance |
|---|---|---|---|
| Queen Street | £ 0 | 0 | 0.00 KM |
| Albert Street | £ 0 | 0 | 0.00 KM |
| Peck Lane | £ 0 | 0 | 0.00 KM |
| Norfolk Place | £ 0 | 0 | 0.00 KM |
| Market Street | £ 0 | 0 | 0.00 KM |
Nearby Transport
| Name | NLC | TLC | Distance |
|---|---|---|---|
| Nottingham | 1826 | NOT | 0.78 KM |
| Bulwell | 1865 | BLW | 7.28 KM |
| Beeston | 1625 | BEE | 7.29 KM |
| Netherfield | 6241 | NET | 7.84 KM |
| Carlton | 6201 | CTO | 8.03 KM |
Nearby Listings
| Address | Price | Type | Score | Distance |
|---|---|---|---|---|
| 2 South Parade, Nottingham, NG1 | £ 200,000 | BUY | 6 / 10 | 0.00 KM |
| 2 South Parade, Nottingham, NG1 | £ 925,000 | BUY | 6 / 10 | 0.00 KM |
| 2 South Parade, Nottingham, NG1 | £ 200,000 | BUY | 7 / 10 | 0.00 KM |
| 2 South Parade, Nottingham, NG1 | £ 200,000 | BUY | 7 / 10 | 0.00 KM |
| 2 South Parade, Nottingham, NG1 | £ 250,000 | BUY | 6 / 10 | 0.00 KM |
Nearby Properties
| Address | Price | Distance |
|---|---|---|
| 1423 Victoria Centre | £ 72,000 | 0.50 KM |
| 820 Victoria Centre | £ 65,000 | 0.51 KM |
| 831 Victoria Centre | £ 67,000 | 0.51 KM |
| 1625 Victoria Centre | £ 77,500 | 0.51 KM |
| 710 Victoria Centre | £ 61,500 | 0.53 KM |