AN
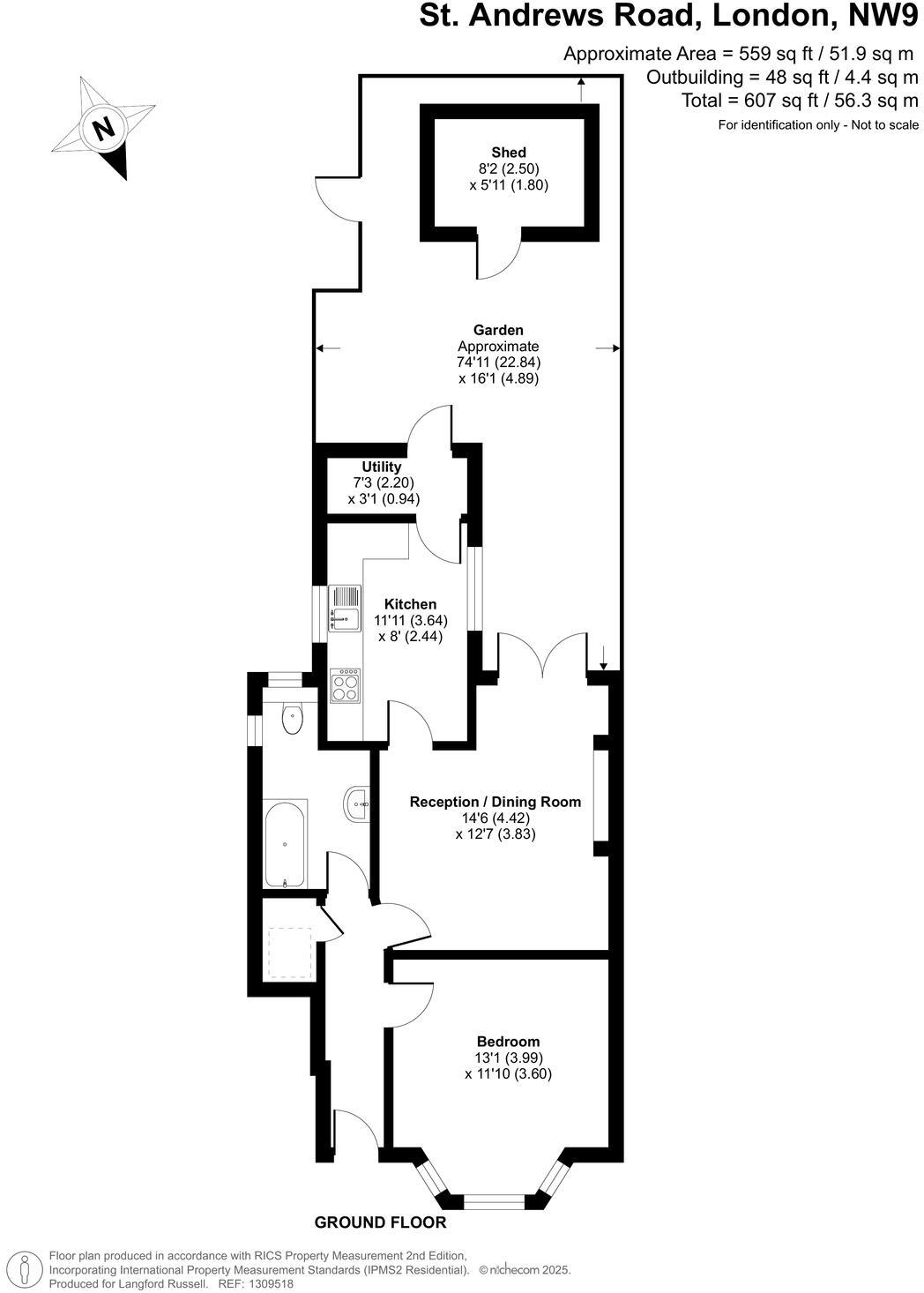
St. Andrews Road, London, NW9
By Andrews Estate Agents
£ 350,000
Reviews
3 out of 5 stars
Andrews Estate Agents says ..
Providing direct access to its own section of the rear garden, this double bedroom ground floor maisonette delivers well-planned modern accommodation in a good decorative order.
Property Oracle says ..
Therefore, we give this property 7 / 10. *Disclaimer: This is our option and does constitute a recommendation or financial advice. Do your own research. *
- Price
- 7
- Condition
- 8
- Location
- 7
- Land
- 7
- Bedrooms
- 1
- Bathrooms
- 1
- Sqft (est)
- 559.00
- Lot (est)
- 1,200.00
The heatmap indicates the level of crime in the area. The color of the heatmap indicates the crime severity and recency.
Metrics Year-on-Year
- Average area value
- 366,658.00 £Decreased by 31.14 %
- Est sale value
- 286,208.00 £Decreased by 8.90 %
- Average area rental value
- 3,017.00 £/moIncreased by 83.18 %
- Est letting value
- 2,236.00 £/moIncreased by 300.00 %
- Est rental Yield
- 9.87 %Increased by 166.04 %
- Crime Rate
- 2.00 %Unchanged by 0.00 %
from 532,445.00 £
from 314,158.00 £
from 1,647.00 £/mo
from 559.00 £/mo
from 3.71 %
from 2.00 %
Agent Activity
Andrews Estate Agents created the listing.
Nearby Schools
| Name | Type | Ofsted | Distance |
|---|---|---|---|
| St Nicholas School | Other Independent School | 0.51 KM | |
| Woodfield School | Academy Special Converter | Outstanding | 0.93 KM |
| Fryent Primary School | Community School | Good | 0.94 KM |
| Church Lane Children'S Centre | Children's Centre | 0.99 KM | |
| Wykeham Children'S Centre | Children's Centre | 1.04 KM |
Images
Nearby Streets
| Name | Average Price | Average Sqft | Distance |
|---|---|---|---|
| Daisy Close | £ 0 | 0 | 0.00 KM |
| Neasden Lane North | £ 0 | 0 | 0.00 KM |
| Ken Way | £ 365,000 | 0 | 0.00 KM |
| Arran Court | £ 0 | 0 | 0.00 KM |
| Janson Close | £ 0 | 0 | 0.00 KM |
Nearby Transport
| Name | NLC | TLC | Distance |
|---|---|---|---|
| Hendon | 1522 | HEN | 2.85 KM |
| Wembley Stadium | 1509 | WCX | 3.09 KM |
| Stonebridge Park | 1454 | SBP | 3.17 KM |
| Harlesden | 1521 | HDN | 3.67 KM |
| Wembley Central | 1423 | WMB | 4.25 KM |
Nearby Listings
| Address | Price | Type | Score | Distance |
|---|---|---|---|---|
| St. Andrews Road, London, NW9 | £ 350,000 | BUY | 7 / 10 | 0.00 KM |
| The Lodge, St Andrews Road, Kingsbury, London, NW9 | £ 1,500,000 | BUY | Unknown | 0.02 KM |
| St. Andrews Road, Kingsbury, London, NW9 | £ 400,000 | BUY | 6 / 10 | 0.06 KM |
| St. Andrews Road, London, NW9 | £ 300,000 | BUY | 6 / 10 | 0.06 KM |
| St Andrews Road, London, NW9 8DL | £ 360,000 | BUY | 7 / 10 | 0.08 KM |
Nearby Properties
| Address | Price | Distance |
|---|---|---|
| 1a Wells Drive | £ 250,000 | 0.07 KM |
| 1 Wells Drive | £ 71,000 | 0.07 KM |
| 18 St Andrews Road | £ 170,000 | 0.08 KM |
| 9a St Andrews Road | £ 225,000 | 0.08 KM |
| 5 St Andrews Road | £ 326,000 | 0.08 KM |