Chancellors says ..
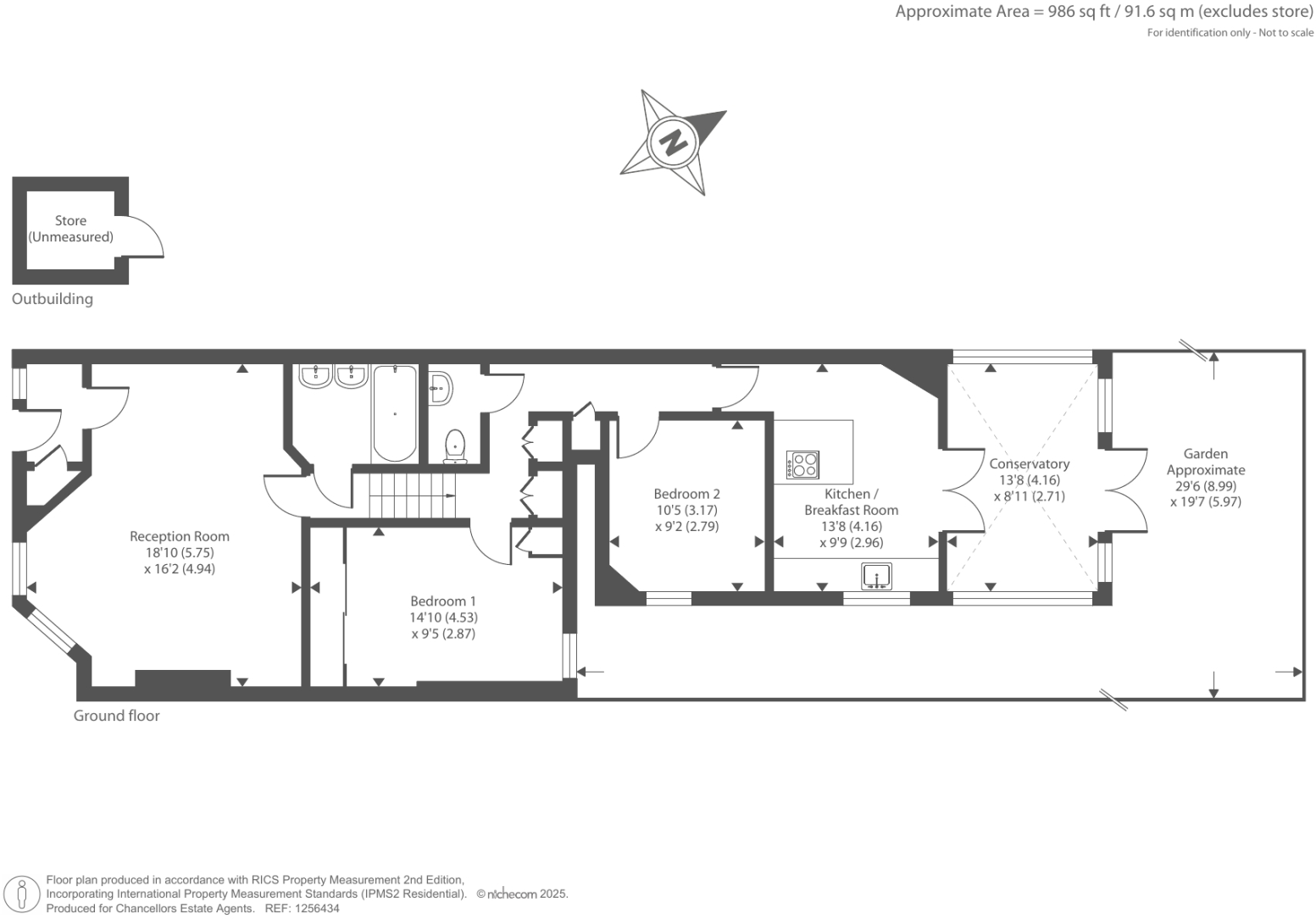
This split level period conversion enjoys a private front entrance with exceptional split level arrangement of space and private garden to the rear.
Property Oracle says ..
Therefore, we give this property 8 / 10. *Disclaimer: This is our option and does constitute a recommendation or financial advice. Do your own research. *
- Price
- 9
- Condition
- 8
- Location
- 9
- Land
- 7
- Bedrooms
- 2
- Bathrooms
- 1
- Sqft (est)
- 986.00
The heatmap indicates the level of crime in the area. The color of the heatmap indicates the crime severity and recency.
Metrics Year-on-Year
- Average area value
- 1,309,500.00 £Decreased by 14.68 %
- Est sale value
- 1,542,104.00 £Increased by 31.65 %
- Average area rental value
- 2,427.00 £/moDecreased by 19.07 %
- Est letting value
- 1,972.00 £/moUnchanged by 0.00 %
- Est rental Yield
- 2.22 %Decreased by 5.13 %
- Crime Rate
- 9.00 %Unchanged by 0.00 %
from 1,534,806.00 £
from 1,171,368.00 £
from 2,999.00 £/mo
from 1,972.00 £/mo
from 2.34 %
from 9.00 %
Agent Activity
Chancellors created the listing.
Nearby Schools
| Name | Type | Ofsted | Distance |
|---|---|---|---|
| The Avenue Pre-Preparatory School And Nursery | Other Independent School | 0.22 KM | |
| Highgate School | Other Independent School | 0.58 KM | |
| St Michael'S Cofe Voluntary Aided Primary School | Voluntary Aided School | Good | 0.60 KM |
| Odyssey House School | Other Independent School | 0.73 KM | |
| Channing School | Other Independent School | 0.77 KM |
Images
Nearby Streets
| Name | Average Price | Average Sqft | Distance |
|---|---|---|---|
| Bishops Road | £ 0 | 0 | 0.00 KM |
| Park Walk | £ 0 | 0 | 0.00 KM |
| Townsend Yard | £ 0 | 0 | 0.00 KM |
| Broadbent Close | £ 0 | 0 | 0.00 KM |
| Grange Road | £ 0 | 0 | 0.00 KM |
Nearby Transport
| Name | NLC | TLC | Distance |
|---|---|---|---|
| Upper Holloway | 1524 | UHL | 2.39 KM |
| Gospel Oak | 1409 | GPO | 2.42 KM |
| Kentish Town | 1553 | KTN | 3.00 KM |
| Hampstead Heath | 1413 | HDH | 3.19 KM |
| Crouch Hill | 7406 | CRH | 3.32 KM |
Nearby Listings
| Address | Price | Type | Score | Distance |
|---|---|---|---|---|
| Highgate, London, N6 | £ 800,000 | BUY | Unknown | 0.00 KM |
| Highgate, London, N6 | £ 800,000 | BUY | 8 / 10 | 0.00 KM |
| Hillside Gardens, London, N6 | £ 600,000 | BUY | 6 / 10 | 0.01 KM |
| Hillside Gardens, Highgate | £ 875,000 | BUY | 7 / 10 | 0.01 KM |
| Hillside Gardens, Highgate, London, N6 | £ 899,995 | BUY | Unknown | 0.02 KM |
Nearby Properties
| Address | Price | Distance |
|---|---|---|
| 2a Hillside Gardens | £ 1,250,000 | 0.01 KM |
| 20 Hillside Gardens | £ 242,500 | 0.01 KM |
| 10a Hillside Gardens | £ 902,000 | 0.01 KM |
| 30 Hillside Gardens | £ 776,501 | 0.01 KM |
| 24 Hillside Gardens | £ 2,150,000 | 0.01 KM |