Providence Park Princess Elizabeth Way, Cheltenham, GL51
By Elliot Oliver Sales
£ 130,000
Reviews
3 out of 5 stars
Elliot Oliver Sales says ..
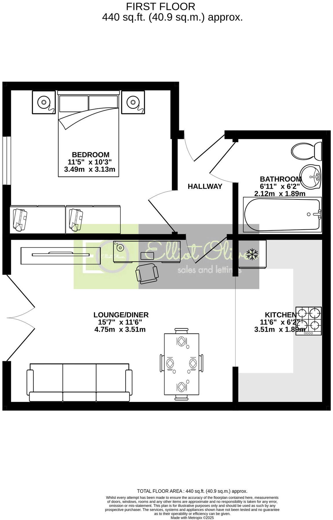
This is an immaculate one bedroom first floor apartment which is chain free and ready to move into or rent out. This smart one bedroom apartment is situated in a purpose built complex, just off Princess Elizabeth Way in Cheltenham. Outside, there is a allocated parking space and some communal ...
Property Oracle says ..
This one-bedroom apartment in Cheltenham’s St Peter’s locality presents a promising opportunity. The property is in good condition, featuring a modern kitchen and bathroom. Its location offers convenient access to local amenities, schools, and transportation, including the Cheltenham Spa train station. While the apartment has limited land, the price per square foot is notably lower than the Cheltenham average, making it an attractive option for first-time buyers or investors seeking value.
Therefore, we give this property 6 / 10. *Disclaimer: This is our option and does constitute a recommendation or financial advice. Do your own research. *
- Price
- 8
- Condition
- 7
- Location
- 7
- Land
- 3
- Bedrooms
- 1
- Bathrooms
- 1
- Sqft (est)
- 412.21
The heatmap indicates the level of crime in the area. The color of the heatmap indicates the crime severity and recency.
Metrics Year-on-Year
- Average area value
- 489,766.00 £Increased by 6.36 %
- Est sale value
- 285,661.53 £Increased by 54.34 %
- Average area rental value
- 2,264.00 £/moIncreased by 11.14 %
- Est letting value
- 1,236.63 £/moIncreased by 200.00 %
- Est rental Yield
- 5.55 %Increased by 4.52 %
- Crime Rate
- 5.00 %Unchanged by 0.00 %
Agent Activity
Elliot Oliver Sales created the listing.
Nearby Schools
| Name | Type | Ofsted | Distance |
|---|---|---|---|
| Rowanfield Children'S Centre | Children's Centre | 0.57 KM | |
| Rowanfield Infant School | Academy Converter | 0.61 KM | |
| Rowanfield Junior School | Academy Converter | Good | 0.73 KM |
| All Saints' Academy, Cheltenham | Academy Sponsor Led | Good | 0.95 KM |
| Cheltenham And Tewkesbury Alternative Provision School | Pupil Referral Unit | Good | 1.00 KM |
Images
Nearby Streets
| Name | Average Price | Average Sqft | Distance |
|---|---|---|---|
| O'Brien Road | £ 250,000 | 0 | 0.00 KM |
| Brook Road | £ 205,000 | 0 | 0.00 KM |
| Bedford Avenue | £ 263,333 | 0 | 0.00 KM |
| Brooklyn Road | £ 426,889 | 0 | 0.00 KM |
| Russet Road | £ 270,000 | 0 | 0.00 KM |
Nearby Transport
| Name | NLC | TLC | Distance |
|---|---|---|---|
| Cheltenham Spa | 4731 | CNM | 1.55 KM |
| Ashchurch For Tewkesbury | 4700 | ASC | 9.79 KM |
Nearby Listings
| Address | Price | Type | Score | Distance |
|---|---|---|---|---|
| Providence Park, Princess Elizabeth Way, Cheltenham, Gloucestershire, GL51 | £ 72,500 | BUY | 6 / 10 | 0.00 KM |
| Providence Park, Princess Elizabeth Way, Cheltenham, Gloucestershire, GL51 | £ 145,000 | BUY | 6 / 10 | 0.00 KM |
| Princess Elizabeth Way, Cheltenham | £ 132,500 | BUY | Unknown | 0.00 KM |
| Providence Park Princess Elizabeth Way, Cheltenham, GL51 | £ 130,000 | BUY | 6 / 10 | 0.00 KM |
| Providence Park, Princess Elizabeth Way, Cheltenham, Gloucestershire, GL51 | £ 75,000 | BUY | 6 / 10 | 0.00 KM |
Nearby Properties
| Address | Price | Distance |
|---|---|---|
| 236 Arle Road | £ 75,000 | 0.12 KM |
| 240 Arle Road | £ 175,000 | 0.12 KM |
| 234 Arle Road | £ 62,495 | 0.12 KM |
| 238 Arle Road | £ 175,000 | 0.12 KM |
| 230 Arle Road | £ 215,000 | 0.12 KM |