Foxtons says ..
Located on a quiet residential street this, one bedroom first full property is presented in excellent condition throughout and situated within a period conversion.
Property Oracle says ..
This property is a one-bedroom flat located in Brentford, West London. The flat is situated on Layton Road, which is within proximity to several amenities including good schools (Brentford School for Girls and St Paul’s C of E Primary School, both rated “Good” by Ofsted), and transport links (Brentford train station is less than a kilometre away). The property appears to be well-maintained and recently renovated, with a modern kitchen and bathroom. While the plot size is small, typical for flats in this area, the interior is bright and airy. The list price of £375,000 is slightly below the average price for the area (£546,452), but comparable to other one-bedroom flats on Layton Road. Considering the property’s condition, location, and proximity to amenities, the price appears reasonable. However, the lack of information regarding the property’s square footage in the provided dataset makes it difficult to make a definitive statement on value for money.
Therefore, we give this property 6 / 10. *Disclaimer: This is our option and does constitute a recommendation or financial advice. Do your own research. *
- Price
- 7
- Condition
- 9
- Location
- 8
- Land
- 1
- Bedrooms
- 1
- Bathrooms
- 1
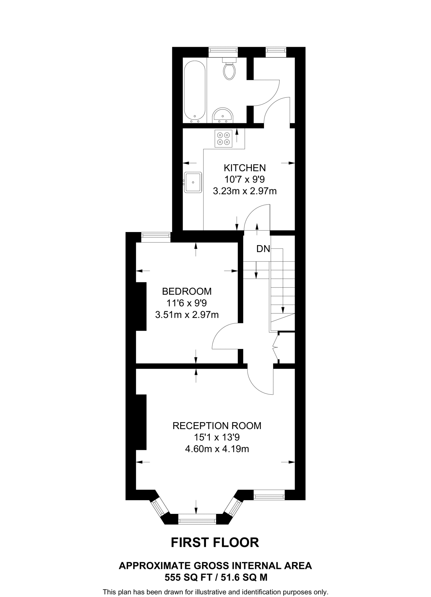
- Sqft (est)
- 555.42
The heatmap indicates the level of crime in the area. The color of the heatmap indicates the crime severity and recency.
Metrics Year-on-Year
- Average area value
- 457,259.00 £Decreased by 25.19 %
- Est sale value
- 445,446.84 £Increased by 19.17 %
- Average area rental value
- 1,825.00 £/moDecreased by 10.23 %
- Est letting value
- 1,666.26 £/moIncreased by 50.00 %
- Est rental Yield
- 4.79 %Increased by 20.05 %
- Crime Rate
- 33.00 %Unchanged by 0.00 %
Agent Activity
Foxtons created the listing.
Nearby Schools
| Name | Type | Ofsted | Distance |
|---|---|---|---|
| Brentford School For Girls | Academy Converter | Good | 0.52 KM |
| St Paul'S Cofe Primary School | Voluntary Aided School | Good | 0.54 KM |
| Brentford Children'S Centre | Children's Centre | 0.86 KM | |
| Green Dragon Primary School | Community School | Good | 0.89 KM |
| Our Lady And St John'S Catholic Primary School | Voluntary Aided School | Good | 1.00 KM |
Images
Nearby Streets
| Name | Average Price | Average Sqft | Distance |
|---|---|---|---|
| M4 | £ 0 | 0 | 0.00 KM |
| The Butts | £ 0 | 0 | 0.00 KM |
| B455 | £ 129,200 | 0 | 0.00 KM |
| Cherry Garth | £ 0 | 0 | 0.00 KM |
| Lateward Road | £ 0 | 0 | 0.00 KM |
Nearby Transport
| Name | NLC | TLC | Distance |
|---|---|---|---|
| Brentford | 5552 | BFD | 0.62 KM |
| Kew Bridge | 5593 | KWB | 1.92 KM |
| Syon Lane | 5609 | SYL | 2.42 KM |
| Kew Gardens | 5594 | KWG | 2.56 KM |
| Ealing Broadway | 3190 | EAL | 2.82 KM |
Nearby Listings
| Address | Price | Type | Score | Distance |
|---|---|---|---|---|
| Layton Road, Brentford, TW8 | £ 375,000 | BUY | 6 / 10 | 0.00 KM |
| Layton Road, Brentford | £ 375,000 | BUY | Unknown | 0.02 KM |
| Layton Road, Brentford, TW8 | £ 300,000 | BUY | 7 / 10 | 0.02 KM |
| Layton Road, Brentford, TW8 | £ 300,000 | BUY | 7 / 10 | 0.03 KM |
| Layton Road, Brentford | £ 375,000 | BUY | 6 / 10 | 0.03 KM |
Nearby Properties
| Address | Price | Distance |
|---|---|---|
| 7 Layton Road | £ 532,000 | 0.03 KM |
| 27 Layton Road | £ 320,000 | 0.03 KM |
| 29a Layton Road | £ 195,000 | 0.03 KM |
| 15 Layton Road | £ 622,500 | 0.03 KM |
| 25 Brook Lane North | £ 178,000 | 0.03 KM |