RO
Northfield Road, Reading, Berkshire
By Romans
£ 400,000
Reviews
3 out of 5 stars
Romans says ..
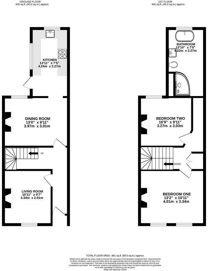
Romans brings this charming and contemporary 2-bedroom end-of-terrace house located just a short stroll from Reading mainline station, making it an ideal home for commuters. This thoughtfully updated property boasts two spacious reception rooms, offering flexibility for living, dining,...
Property Oracle says ..
Therefore, we give this property 7 / 10. *Disclaimer: This is our option and does constitute a recommendation or financial advice. Do your own research. *
- Price
- 6
- Condition
- 8
- Location
- 8
- Land
- 7
- Bedrooms
- 2
- Bathrooms
- 1
- Sqft (est)
- 861.00
The heatmap indicates the level of crime in the area. The color of the heatmap indicates the crime severity and recency.
Metrics Year-on-Year
- Average area value
- 350,323.00 £Decreased by 1.18 %
- Est sale value
- 371,091.00 £Increased by 20.73 %
- Average area rental value
- 1,334.00 £/moDecreased by 2.49 %
- Est letting value
- 861.00 £/moUnchanged by 0.00 %
- Est rental Yield
- 4.57 %Decreased by 1.30 %
- Crime Rate
- 4.00 %Unchanged by 0.00 %
from 354,508.00 £
from 307,377.00 £
from 1,368.00 £/mo
from 861.00 £/mo
from 4.63 %
from 4.00 %
Agent Activity
Romans created the listing.
Nearby Schools
| Name | Type | Ofsted | Distance |
|---|---|---|---|
| E P Collier Primary School | Community School | Good | 0.10 KM |
| Civitas Academy | Academy Sponsor Led | Good | 0.62 KM |
| Thameside Primary School | Community School | Good | 0.84 KM |
| Hemdean House School | Other Independent School | 1.14 KM | |
| Oxford Road Community School | Community School | Good | 1.27 KM |
Images
Nearby Streets
| Name | Average Price | Average Sqft | Distance |
|---|---|---|---|
| Meadow Road | £ 245,000 | 0 | 0.00 KM |
| Station Hill | £ 0 | 0 | 0.00 KM |
| Windrush Roundabout | £ 0 | 0 | 0.00 KM |
| West Street | £ 0 | 0 | 0.00 KM |
| Alfred Street | £ 243,333 | 0 | 0.00 KM |
Nearby Transport
| Name | NLC | TLC | Distance |
|---|---|---|---|
| Reading | 3149 | RDG | 0.62 KM |
| Reading West | 3160 | RDW | 1.60 KM |
| Tilehurst | 3154 | TLH | 5.96 KM |
| Earley | 5694 | EAR | 6.89 KM |
| Winnersh Triangle | 5698 | WTI | 9.85 KM |
Nearby Listings
| Address | Price | Type | Score | Distance |
|---|---|---|---|---|
| Northfield Road, Reading, Berkshire | £ 400,000 | BUY | 7 / 10 | 0.00 KM |
| Northfield Road, Reading, Berkshire | £ 415,000 | BUY | 6 / 10 | 0.01 KM |
| Northfield Road, Reading | £ 415,000 | BUY | 8 / 10 | 0.02 KM |
| Vastern Road, Caversham, Reading, RG1 | £ 655,000 | BUY | 6 / 10 | 0.04 KM |
| Vastern Road, Caversham, Reading, RG1 | £ 620,000 | BUY | 7 / 10 | 0.04 KM |
Nearby Properties
| Address | Price | Distance |
|---|---|---|
| 9 Northfield Road | £ 229,000 | 0.02 KM |
| 5 Northfield Road | £ 342,500 | 0.02 KM |
| 22 Northfield Road | £ 385,000 | 0.02 KM |
| 14 Northfield Road | £ 227,000 | 0.02 KM |
| 18 Northfield Road | £ 300,000 | 0.03 KM |