HE
Gowmans Terrace, North Tawton, EX20
By Helmores
£ 132,500
Reviews
3 out of 5 stars
Helmores says ..
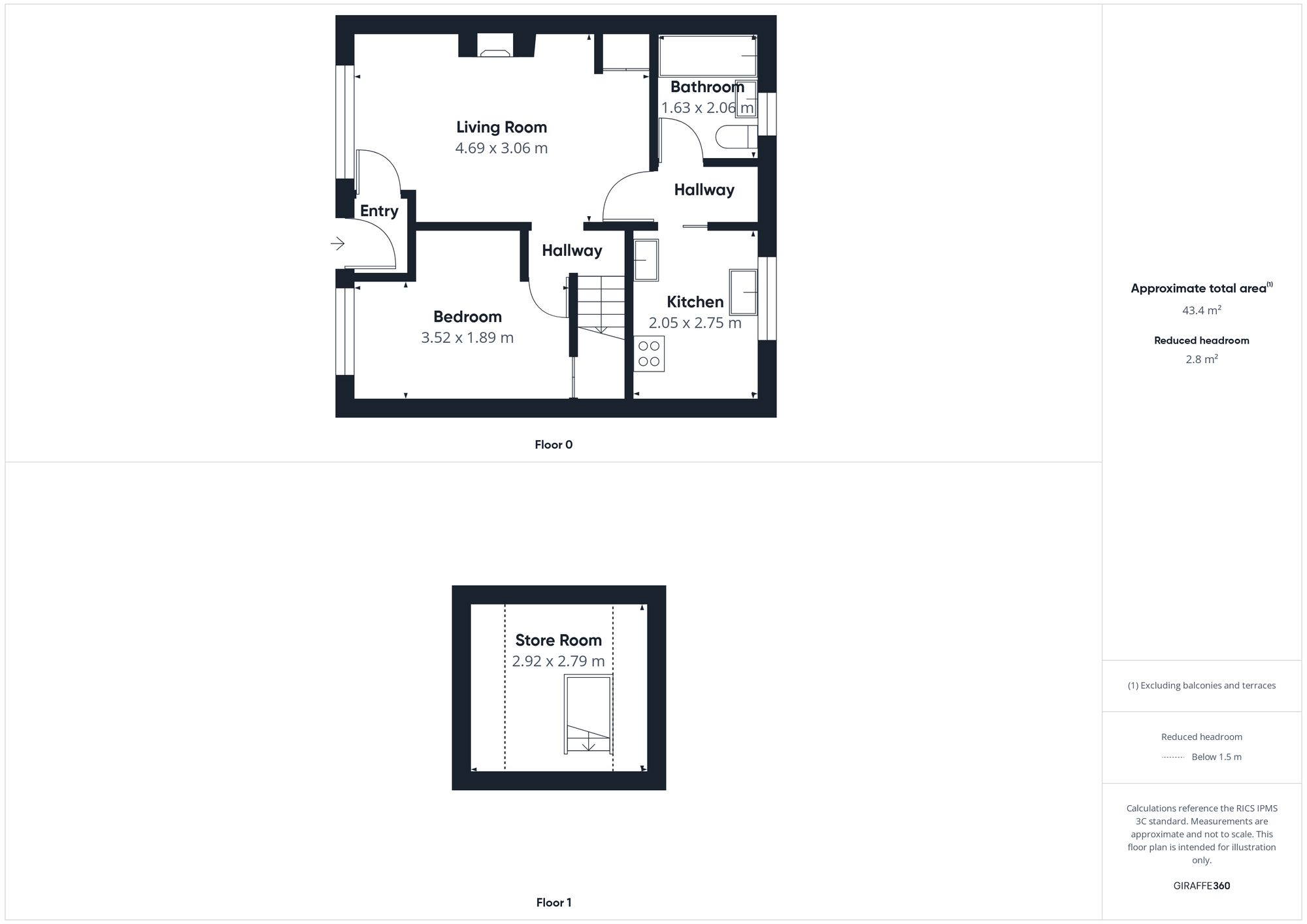
*No onward chain* Lovely 1 bedroom bungalow tucked away in a quiet spot but close to shops and transport, well presented with a garden front and back.
Property Oracle says ..
Therefore, we give this property 6 / 10. *Disclaimer: This is our option and does constitute a recommendation or financial advice. Do your own research. *
- Price
- 8
- Condition
- 7
- Location
- 7
- Land
- 5
- Bedrooms
- 1
- Bathrooms
- 1
- Sqft (est)
- 467.15
The heatmap indicates the level of crime in the area. The color of the heatmap indicates the crime severity and recency.
Metrics Year-on-Year
- Average area value
- 293,023.00 £Increased by 0.76 %
- Est sale value
- 134,539.20 £Decreased by 20.00 %
- Average area rental value
- 1,170.00 £/moIncreased by 31.61 %
- Est letting value
- 467.15 £/moUnchanged by 0.00 %
- Est rental Yield
- 4.79 %Increased by 30.52 %
- Crime Rate
- 36.00 %Unchanged by 0.00 %
from 290,805.00 £
from 168,174.00 £
from 889.00 £/mo
from 467.15 £/mo
from 3.67 %
from 36.00 %
Agent Activity
Helmores created the listing.
Nearby Schools
| Name | Type | Ofsted | Distance |
|---|---|---|---|
| North Tawton Community Primary School And Nursery | Academy Converter | 0.97 KM | |
| Winkleigh Primary School | Foundation School | Good | 7.67 KM |
| South Tawton Primary School | Academy Converter | 8.16 KM | |
| Spreyton School | Foundation School | Good | 8.16 KM |
| Acorn School | Other Independent Special School | Good | 8.99 KM |
Images
Nearby Streets
| Name | Average Price | Average Sqft | Distance |
|---|---|---|---|
| Fernleigh Close | £ 0 | 0 | 0.00 KM |
| Orchard Court | £ 0 | 0 | 0.00 KM |
| Barton Close | £ 170,000 | 0 | 0.00 KM |
| Foxglove Court | £ 0 | 0 | 0.00 KM |
| Stoat Mews | £ 180,000 | 0 | 0.00 KM |
Nearby Transport
| Name | NLC | TLC | Distance |
|---|---|---|---|
| Sampford Courtenay | 8724 | SMC | 6.02 KM |
Nearby Listings
| Address | Price | Type | Score | Distance |
|---|---|---|---|---|
| Gowmans Terrace, North Tawton, EX20 | £ 132,500 | BUY | 6 / 10 | 0.00 KM |
| Gowmans Terrace, North Tawton, Devon, EX20 | £ 137,950 | BUY | Unknown | 0.01 KM |
| Gowmans Terrace, North Tawton, Devon | £ 85,000 | BUY | Unknown | 0.01 KM |
| 3 The Market Fore Street, North Tawton, Devon | £ 220,000 | BUY | 6 / 10 | 0.07 KM |
| North Tawton, EX20 | £ 360,000 | BUY | 7 / 10 | 0.09 KM |
Nearby Properties
| Address | Price | Distance |
|---|---|---|
| 13 Gowmans Terrace | £ 115,000 | 0.01 KM |
| 11 Gowmans Terrace | £ 115,000 | 0.01 KM |
| 13 Greenacre Close | £ 192,500 | 0.08 KM |
| 7 Greenacre Close | £ 180,000 | 0.08 KM |
| 1 Greenacre Close | £ 175,000 | 0.10 KM |