Rectory Road, Broadstairs, Kent, CT10
By Miles & Barr Exclusive
£ 700,000
Reviews
3 out of 5 stars
Miles & Barr Exclusive says ..
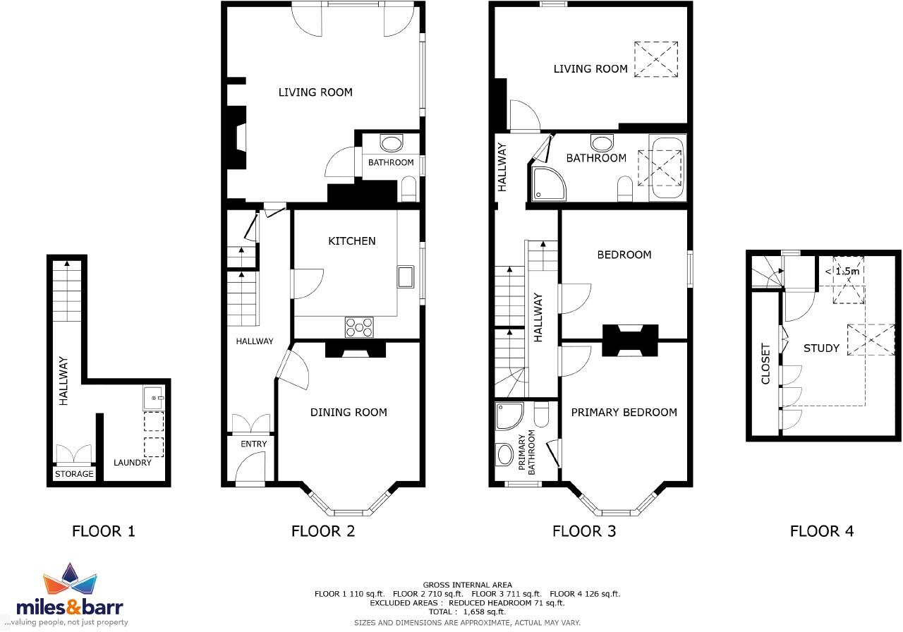
Situated along the popular Rectory Road with sea views is this beautifully presented and extended four bedroom semi detached family home full of charm and character, close to all local amenities and high speed rail link to St Pancras. The current owners have completely refurbished the property th...
Property Oracle says ..
This is a well-presented semi-detached property in a desirable location. The property has been modernised and is in good condition. It benefits from a garden and off-street parking. The property is well-located for access to local amenities, schools, and transport links. Overall, this is a desirable property that would make a good family home.
Therefore, we give this property 7 / 10. *Disclaimer: This is our option and does constitute a recommendation or financial advice. Do your own research. *
- Price
- 7
- Condition
- 8
- Location
- 8
- Land
- 6
- Bedrooms
- 4
- Bathrooms
- 2
- Sqft (est)
- 1,657.00
The heatmap indicates the level of crime in the area. The color of the heatmap indicates the crime severity and recency.
Metrics Year-on-Year
- Average area value
- 400,000.00 £Decreased by 26.17 %
- Est sale value
- 611,433.00 £Decreased by 20.30 %
- Average area rental value
- 895.00 £/moDecreased by 35.00 %
- Est letting value
- 0.00 £/moDecreased by 100.00 %
- Est rental Yield
- 2.69 %Decreased by 11.80 %
- Crime Rate
- 37.00 %Unchanged by 0.00 %
Agent Activity
Miles & Barr Exclusive created the listing.
Nearby Schools
| Name | Type | Ofsted | Distance |
|---|---|---|---|
| Stone Bay School | Foundation Special School | Good | 0.64 KM |
| Bradstow School | Community Special School | Outstanding | 1.20 KM |
| St Mildred'S Primary Infant School | Foundation School | Outstanding | 1.25 KM |
| Ekc Group | Further Education | 1.28 KM | |
| Haddon Dene School | Other Independent School | 1.57 KM |
Images
Nearby Streets
| Name | Average Price | Average Sqft | Distance |
|---|---|---|---|
| Church Road | £ 950,000 | 0 | 0.00 KM |
| Rectory Road | £ 552,722 | 0 | 0.00 KM |
| Dickens Road | £ 887,488 | 0 | 0.00 KM |
| Broadstairs Seafront | £ 600,000 | 0 | 0.00 KM |
| St. Marys Road | £ 260,000 | 0 | 0.00 KM |
Nearby Transport
| Name | NLC | TLC | Distance |
|---|---|---|---|
| Broadstairs | 5006 | BSR | 1.20 KM |
| Dumpton Park | 5034 | DMP | 2.66 KM |
| Ramsgate | 5023 | RAM | 4.75 KM |
| Margate | 5018 | MAR | 8.46 KM |
Nearby Listings
| Address | Price | Type | Score | Distance |
|---|---|---|---|---|
| Rectory Road, Broadstairs, Kent, CT10 | £ 700,000 | BUY | 7 / 10 | 0.00 KM |
| Rectory Road, Broadstairs, CT10 | £ 395,000 | BUY | 6 / 10 | 0.05 KM |
| Shutler Road, Broadstairs, CT10 | £ 515,000 | BUY | 7 / 10 | 0.06 KM |
| Old School Mews, Broadstairs, CT10 | £ 300,000 | BUY | 7 / 10 | 0.07 KM |
| Old School Mews, Broadstairs, CT10 | £ 300,000 | BUY | 8 / 10 | 0.07 KM |
Nearby Properties
| Address | Price | Distance |
|---|---|---|
| 2 Eastern Esplanade | £ 999,995 | 0.06 KM |
| 6 Shutler Road | £ 410,000 | 0.06 KM |
| 1 Shutler Road | £ 160,000 | 0.06 KM |
| 3 Shutler Road | £ 84,995 | 0.06 KM |
| 5 Shutler Road | £ 474,500 | 0.06 KM |