eXp UK says ..
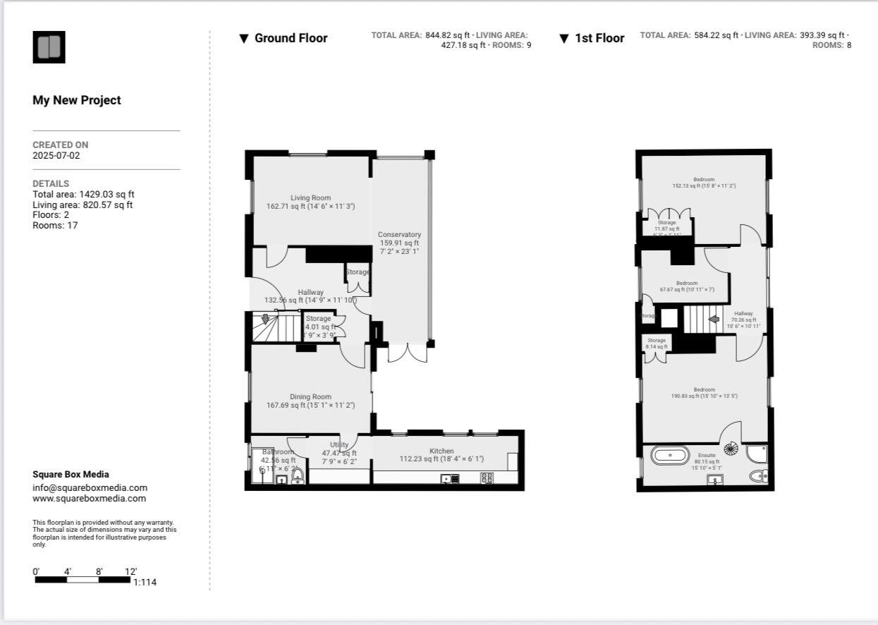
Property Ref SM0559 A beautifully presented period home in the heart of Southwell, offering character, charm and modern living in equal measure. The property includes three bedrooms, two stylish bathrooms (one en suite), three reception areas including a striking dining kitchen, and a d...
Property Oracle says ..
Therefore, we give this property 6 / 10. *Disclaimer: This is our option and does constitute a recommendation or financial advice. Do your own research. *
- Price
- 7
- Condition
- 8
- Location
- 9
- Land
- 3
- Bedrooms
- 3
- Bathrooms
- 2
- Sqft (est)
- 1,429.03
The heatmap indicates the level of crime in the area. The color of the heatmap indicates the crime severity and recency.
Metrics Year-on-Year
- Average area value
- 356,500.00 £Decreased by 30.79 %
- Est sale value
- 517,308.86 £Increased by 23.55 %
- Average area rental value
- 1,359.00 £/moDecreased by 3.62 %
- Est letting value
- 1,429.03 £/mo
- Est rental Yield
- 4.57 %Increased by 39.33 %
- Crime Rate
- 89.00 %Unchanged by 0.00 %
from 515,076.00 £
from 418,705.79 £
from 1,410.00 £/mo
from 0.00 £/mo
from 3.28 %
from 89.00 %
Agent Activity
eXp UK created the listing.
Nearby Schools
| Name | Type | Ofsted | Distance |
|---|---|---|---|
| Lowe'S Wong Anglican Methodist Junior School | Voluntary Controlled School | Good | 0.37 KM |
| Lowe'S Wong Infant School | Academy Converter | 0.37 KM | |
| The Minster School | Academy Converter | 0.48 KM | |
| Holy Trinity Cofe Infant School | Academy Converter | 0.53 KM | |
| Halam Church Of England Primary School | Academy Converter | 3.65 KM |
Images
Nearby Streets
| Name | Average Price | Average Sqft | Distance |
|---|---|---|---|
| Bishop's Drive | £ 0 | 0 | 0.00 KM |
| Dunham Close | £ 0 | 0 | 0.00 KM |
| Private Drive | £ 0 | 0 | 0.00 KM |
| Appletree Close | £ 449,950 | 0 | 0.00 KM |
| Ashtree Close | £ 495,000 | 0 | 0.00 KM |
Nearby Transport
| Name | NLC | TLC | Distance |
|---|---|---|---|
| Bleasby | 6204 | BSB | 4.15 KM |
| Fiskerton | 6351 | FSK | 5.23 KM |
| Thurgarton | 6203 | THU | 5.31 KM |
| Rolleston | 6353 | ROL | 6.42 KM |
| Lowdham | 6202 | LOW | 9.06 KM |
Nearby Listings
| Address | Price | Type | Score | Distance |
|---|---|---|---|---|
| 33 Westgate, Southwell, | £ 460,000 | BUY | 6 / 10 | 0.00 KM |
| Westgate, Southwell, Nottinghamshire, NG25 | £ 190,000 | BUY | 5 / 10 | 0.01 KM |
| Westgate, Southwell | £ 335,000 | BUY | 6 / 10 | 0.01 KM |
| A SUPERBLY RENOVATED HOME | Westgate, Southwell | £ 450,000 | BUY | 7 / 10 | 0.07 KM |
| Minster House, 7 Westgate, Southwell, Nottinghamshire, NG25 | £ 325,000 | BUY | 7 / 10 | 0.13 KM |
Nearby Properties
| Address | Price | Distance |
|---|---|---|
| 19 Westgate | £ 229,950 | 0.01 KM |
| 7b Westgate | £ 159,950 | 0.01 KM |
| 41 Westgate | £ 225,000 | 0.01 KM |
| 21a Westgate | £ 60,000 | 0.01 KM |
| 21 Westgate | £ 226,000 | 0.01 KM |