Percy Gardens, North Shields, Tyne & Wear, NE30
By Selling Lifestyles
£ 675,000
Reviews
3 out of 5 stars
Selling Lifestyles says ..
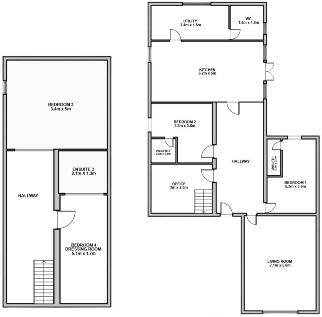
Selling Lifestyles is proud to present this stunning 3-bedroom ground floor apartment, ideally located in the heart of vibrant Tynemouth.
Property Oracle says ..
This property is a beautifully presented, three-bedroom apartment situated in the desirable Tynemouth area of North Shields. The apartment is part of a stunning period property, boasting high ceilings, large windows, and ornate architectural details. The interior has been recently renovated to a high standard, with a modern, yet elegant design that complements the building’s traditional character. The property benefits from a private rear patio/garden, which is a rare find in an apartment setting. While the plot size is small, the patio provides a private outdoor space. The location is excellent, within close proximity to several good schools and the beautiful Tynemouth coastline. The list price is higher than the average for the area, but given the property’s size, condition, location, and unique features (such as the private patio), it may represent good value for money, depending on the buyer’s priorities.
Therefore, we give this property 7 / 10. *Disclaimer: This is our option and does constitute a recommendation or financial advice. Do your own research. *
- Price
- 7
- Condition
- 9
- Location
- 9
- Land
- 3
- Bedrooms
- 3
- Bathrooms
- 4
- Sqft (est)
- 1,634.61
The heatmap indicates the level of crime in the area. The color of the heatmap indicates the crime severity and recency.
Metrics Year-on-Year
- Average area value
- 911,990.00 £Increased by 52.54 %
- Est sale value
- 781,343.58 £Decreased by 4.59 %
- Average area rental value
- 1,200.00 £/moDecreased by 18.81 %
- Est letting value
- 0.00 £/moDecreased by 100.00 %
- Est rental Yield
- 1.58 %Decreased by 46.80 %
- Crime Rate
- 9.00 %Unchanged by 0.00 %
Agent Activity
Selling Lifestyles marked this listing as sold.
Selling Lifestyles created the listing.
Nearby Schools
| Name | Type | Ofsted | Distance |
|---|---|---|---|
| Kings Priory School | Academy Sponsor Led | Good | 0.41 KM |
| Sir James Knott Memorial Nursery School | Local Authority Nursery School | Good | 1.26 KM |
| Cullercoats Primary School | Community School | Good | 1.86 KM |
| Marden High School | Foundation School | Good | 2.18 KM |
| Hadrian Primary School | Community School | Outstanding | 2.22 KM |
Images
Nearby Streets
| Name | Average Price | Average Sqft | Distance |
|---|---|---|---|
| Knott Memorial Flats | £ 0 | 0 | 0.00 KM |
| Kingsway | £ 700,000 | 0 | 0.00 KM |
| Park Avenue | £ 375,000 | 0 | 0.00 KM |
| Walker Place | £ 300,000 | 0 | 0.00 KM |
| Victoria Crescent | £ 125,000 | 0 | 0.00 KM |
Nearby Listings
| Address | Price | Type | Score | Distance |
|---|---|---|---|---|
| Percy Gardens, North Shields, Tyne & Wear, NE30 | £ 675,000 | BUY | 7 / 10 | 0.00 KM |
| Percy Gardens, Tynemouth | £ 400,000 | BUY | 5 / 10 | 0.04 KM |
| Percy Gardens, Tynemouth | £ 385,000 | BUY | 6 / 10 | 0.14 KM |
| Priory Court, Percy Gardens, Tynemouth | £ 175,000 | BUY | Unknown | 0.15 KM |
| Priory Court, Percy Gardens, Tynemouth | £ 250,000 | BUY | 5 / 10 | 0.15 KM |
Nearby Properties
| Address | Price | Distance |
|---|---|---|
| 45 Percy Gardens | £ 350,000 | 0.00 KM |
| 31c Percy Gardens | £ 370,000 | 0.00 KM |
| 18 Percy Gardens | £ 1,350,000 | 0.00 KM |
| 27b Percy Gardens | £ 540,000 | 0.00 KM |
| 35a Percy Gardens | £ 385,000 | 0.01 KM |