Foxbeare Road, Hele, Ilfracombe, Devon, EX34
By Webbers Property Services
£ 150,000
Reviews
2 out of 5 stars
Webbers Property Services says ..
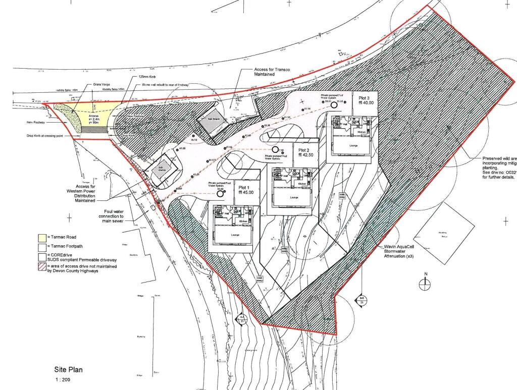
An opportunity arises to purchase a large building plot of approximately 1.54 acres (0.62 hectares) with plans previously approved for the construction of 3 high quality detached houses of approximately 186m2 (2,000ft2) situated on the outskirts of the town enjoying excellent views up the Chamber...
Property Oracle says ..
This is a plot of land for sale with planning permission in Ilfracombe East, Devon. The location is decent, with nearby schools rated ‘Good’. The land itself is overgrown but offers significant potential for development. The asking price appears reasonable for land in this area. This property is ideal for someone looking to build a new home to their specifications.
Therefore, we give this property 5 / 10. *Disclaimer: This is our option and does constitute a recommendation or financial advice. Do your own research. *
- Price
- 7
- Condition
- 1
- Location
- 6
- Land
- 8
- Bedrooms
- 0
- Bathrooms
- 0
The heatmap indicates the level of crime in the area. The color of the heatmap indicates the crime severity and recency.
Metrics Year-on-Year
- Average area value
- 327,409.00 £Increased by 17.57 %
- Average area rental value
- 1,063.00 £/moIncreased by 27.46 %
- Est rental Yield
- 3.90 %Increased by 8.64 %
- Crime Rate
- 7.00 %Unchanged by 0.00 %
Agent Activity
Webbers Property Services created the listing.
Nearby Schools
| Name | Type | Ofsted | Distance |
|---|---|---|---|
| The Ilfracombe Church Of England Academy | Academy Sponsor Led | Good | 1.35 KM |
| Ilfracombe Church Of England Junior School | Voluntary Controlled School | Good | 1.97 KM |
| Ilfracombe Infant And Nursery School | Community School | Good | 2.23 KM |
| Ilfracombe Children'S Centre | Children's Centre | 2.25 KM | |
| Braunton Children'S Centre | Children's Centre | 2.25 KM |
Images
Nearby Streets
| Name | Average Price | Average Sqft | Distance |
|---|---|---|---|
| Comyn Hill | £ 0 | 0 | 0.00 KM |
| Dovedale Close | £ 0 | 0 | 0.00 KM |
| Hillside Road | £ 214,750 | 0 | 0.00 KM |
| Cat Lane | £ 0 | 0 | 0.00 KM |
| Chambercombe Lane | £ 445,000 | 0 | 0.00 KM |
Nearby Listings
| Address | Price | Type | Score | Distance |
|---|---|---|---|---|
| Junction Of Foxbeare Road and Water, Hele, Ilfracombe, Devon, EX34 | £ 199,950 | BUY | 5 / 10 | 0.00 KM |
| Foxbeare Road, Hele, Ilfracombe, Devon, EX34 | £ 150,000 | BUY | 5 / 10 | 0.00 KM |
| Foxbeare Road, Ilfracombe, Devon, EX34 | £ 170,000 | BUY | 4 / 10 | 0.07 KM |
| Hillsborough Park Road, Ilfracombe | £ 325,000 | BUY | 7 / 10 | 0.08 KM |
| Hillsborough Park Road, Ilfracombe, Devon, EX34 | £ 335,000 | BUY | 7 / 10 | 0.10 KM |
Nearby Properties
| Address | Price | Distance |
|---|---|---|
| 10 Hillside Road | £ 160,000 | 0.05 KM |
| 4 Hillside Road | £ 149,950 | 0.05 KM |
| 3 Hillside Road | £ 165,000 | 0.05 KM |
| 7 Hillside Road | £ 220,000 | 0.05 KM |
| 10 Hillsborough Park Road | £ 295,000 | 0.10 KM |