Bader Court, Martlesham Heath, Ipswich, IP5
By Marks & Mann Estate Agents Ltd
£ 150,000
Reviews
3 out of 5 stars
Marks & Mann Estate Agents Ltd says ..
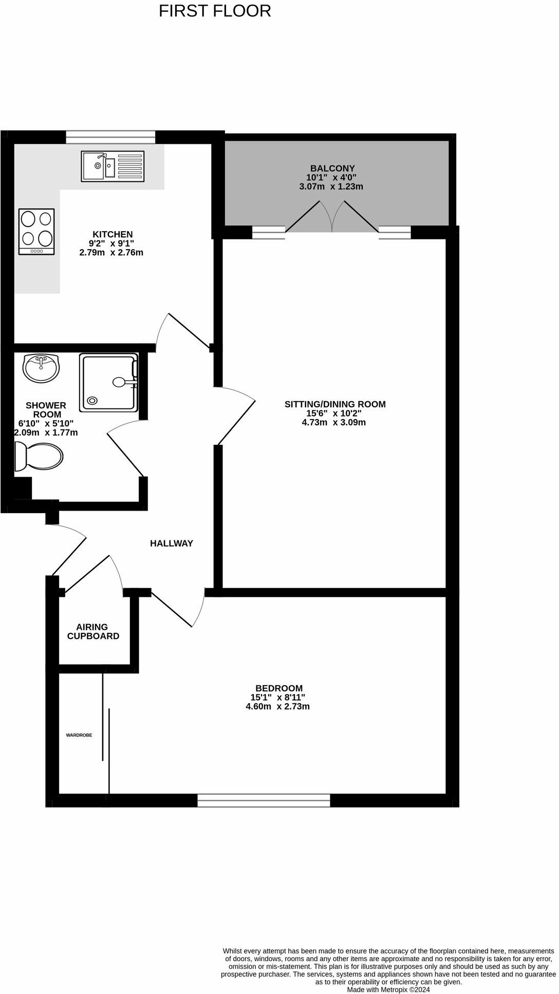
A wonderfully positioned one bedroom first floor apartment for over 55's located in the heart of Martlesham Heath. The property is well presented throughout with accommodation comprising; entrance hall, good size bedroom, shower room, spacious kitchen, lounge with door to balcony which en...
Property Oracle says ..
This property is a one bedroom ground floor maisonette located in Bader Court, Martlesham Heath. The property benefits from being close to local amenities and well-regarded schools, such as Birchwood Primary School (0.11km) and Gorseland Primary School (0.91km), both rated as Outstanding by Ofsted. Transport links are also relatively convenient, with Woodbridge train station approximately 6.21km away. The property itself appears well-maintained and in good condition from the images provided. It includes a small private garden. However, the plot size is very small. Considering the average price per sqft in the area is £409 and this property is listed at £150,000, the price seems reasonable, especially considering the smaller size and ground floor location. The property is likely to appeal to first-time buyers or those seeking a low-maintenance home in a convenient location.
Therefore, we give this property 6 / 10. *Disclaimer: This is our option and does constitute a recommendation or financial advice. Do your own research. *
- Price
- 7
- Condition
- 8
- Location
- 7
- Land
- 3
- Bedrooms
- 1
- Bathrooms
- 1
- Sqft (est)
- 650.14
The heatmap indicates the level of crime in the area. The color of the heatmap indicates the crime severity and recency.
Metrics Year-on-Year
- Average area value
- 875,000.00 £Increased by 114.37 %
- Est sale value
- 406,337.50 £Increased by 62.34 %
- Average area rental value
- 925.00 £/moDecreased by 18.21 %
- Est letting value
- 0.00 £/moDecreased by 100.00 %
- Est rental Yield
- 1.27 %Decreased by 61.86 %
- Crime Rate
- 12.00 %Unchanged by 0.00 %
Agent Activity
Marks & Mann Estate Agents Ltd marked this listing as sold.
Marks & Mann Estate Agents Ltd created the listing.
Nearby Schools
| Name | Type | Ofsted | Distance |
|---|---|---|---|
| Birchwood Primary School | Community School | Outstanding | 0.11 KM |
| Gorseland Primary School | Community School | Outstanding | 0.91 KM |
| Martlesham Primary Academy | Academy Sponsor Led | Good | 1.30 KM |
| Kesgrave High School | Academy Converter | Good | 3.00 KM |
| Cedarwood Primary School | Community School | Good | 3.21 KM |
Images
Nearby Streets
| Name | Average Price | Average Sqft | Distance |
|---|---|---|---|
| The Square | £ 312,500 | 0 | 0.00 KM |
| A12 | £ 0 | 0 | 0.00 KM |
| Bramble Way | £ 0 | 0 | 0.00 KM |
| Blacktiles Lane | £ 0 | 0 | 0.00 KM |
| East View | £ 0 | 0 | 0.00 KM |
Nearby Transport
| Name | NLC | TLC | Distance |
|---|---|---|---|
| Woodbridge | 7228 | WDB | 6.21 KM |
| Melton (Suffolk) | 7221 | MES | 8.95 KM |
| Derby Road (Ipswich) | 7212 | DBR | 9.77 KM |
Nearby Listings
| Address | Price | Type | Score | Distance |
|---|---|---|---|---|
| Bader Court, Martlesham Heath, Ipswich, IP5 | £ 240,000 | BUY | 6 / 10 | 0.00 KM |
| Bader Court, Martlesham Heath, Ipswich, IP5 | £ 150,000 | BUY | 6 / 10 | 0.00 KM |
| Bader Court, Martlesham Heath, Ipswich, Suffolk, IP5 | £ 130,000 | BUY | 6 / 10 | 0.00 KM |
| Bader Court, Ipswich | £ 160,000 | BUY | Unknown | 0.00 KM |
| Bader Court, Martlesham Heath, Ipswich, IP5 | £ 170,000 | BUY | Unknown | 0.02 KM |
Nearby Properties
| Address | Price | Distance |
|---|---|---|
| 17 Bader Court | £ 105,000 | 0.02 KM |
| 28 Bader Court | £ 155,000 | 0.02 KM |
| 38 Bader Court | £ 157,000 | 0.02 KM |
| 46 Bader Court | £ 155,000 | 0.02 KM |
| 21 Bader Court | £ 120,000 | 0.02 KM |