ED
Sephton Close, Aylesford, ME20
By Eden Estates
£ 630,000
Eden Estates says ..
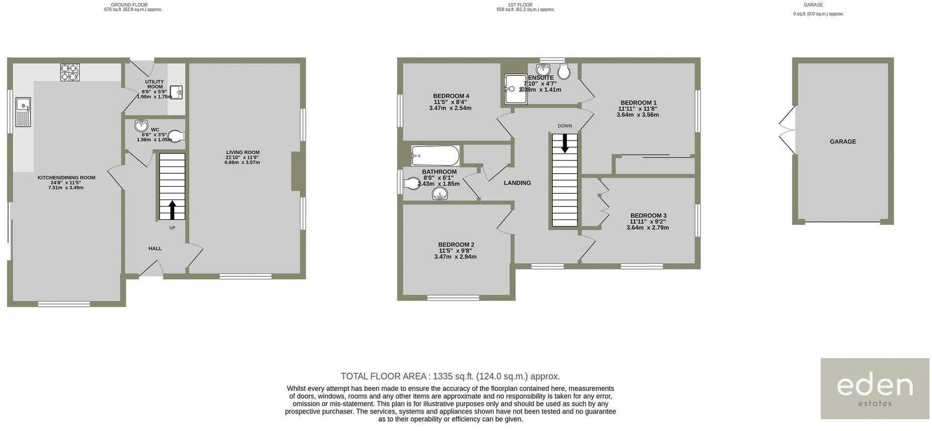
GUIDE PRICE £630,000 - £660,000. Exquisite 4-bed detached house with spacious lounge and kitchen diner. Off-street parking, high specification finish. Ideal for family living and entertaining.
- Bedrooms
- 4
- Bathrooms
- 2
The heatmap indicates the level of crime in the area. The color of the heatmap indicates the crime severity and recency.
Metrics Year-on-Year
- Average area value
- 259,821.00 £Increased by 8.05 %
- Average area rental value
- 1,011.00 £/moIncreased by 5.53 %
- Est rental Yield
- 4.67 %Decreased by 2.30 %
- Crime Rate
- 14.00 %Unchanged by 0.00 %
from 240,470.00 £
from 958.00 £/mo
from 4.78 %
from 14.00 %
Agent Activity
Eden Estates created the listing.
Nearby Schools
| Name | Type | Ofsted | Distance |
|---|---|---|---|
| St Peter'S Church Of England Primary School | Voluntary Controlled School | Good | 0.98 KM |
| Valley Invicta Primary School At Aylesford | Academy Sponsor Led | Good | 1.58 KM |
| Aylesford School | Foundation School | Good | 1.76 KM |
| Allington Primary School | Academy Converter | 1.94 KM | |
| Palace Wood Primary School | Community School | Good | 2.18 KM |
Images
Nearby Streets
| Name | Average Price | Average Sqft | Distance |
|---|---|---|---|
| Hawking close | £ 0 | 0 | 0.00 KM |
| Saki Close | £ 0 | 0 | 0.00 KM |
| Dawsum Close | £ 0 | 0 | 0.00 KM |
| Wyatt Road | £ 0 | 0 | 0.00 KM |
| The Oaks | £ 0 | 0 | 0.00 KM |
Nearby Transport
| Name | NLC | TLC | Distance |
|---|---|---|---|
| Barming | 5133 | BMG | 1.20 KM |
| Aylesford | 5162 | AYL | 1.63 KM |
| New Hythe | 5238 | NHE | 3.36 KM |
| Maidstone Barracks | 5237 | MDB | 4.30 KM |
| East Farleigh | 5234 | EFL | 4.53 KM |
Nearby Listings
| Address | Price | Type | Score | Distance |
|---|---|---|---|---|
| Sephton Close, Aylesford, ME20 | £ 630,000 | BUY | Unknown | 0.00 KM |
| Thomas Road, Aylesford, Kent, ME20 | £ 250,000 | BUY | Unknown | 0.07 KM |
| Thomas Road, Aylesford, Kent | £ 250,000 | BUY | 5 / 10 | 0.07 KM |
| Sephton Close, Aylesford, Kent | £ 400,000 | BUY | Unknown | 0.11 KM |
| Sephton Close, Aylesford, Kent | £ 264,500 | BUY | Unknown | 0.11 KM |
Nearby Properties
| Address | Price | Distance |
|---|---|---|
| 7 Thomas Road | £ 520,000 | 0.08 KM |
| 16 Thomas Road | £ 425,000 | 0.12 KM |
| 12 Empress Road | £ 550,000 | 0.21 KM |
| 10 Medway Court | £ 225,000 | 0.67 KM |
| 29 Medway Court | £ 375,000 | 0.67 KM |