Ince Road, Liverpool
Abode logo

Ince Road, Liverpool

By Abode

£ 799,950

Reviews

3 out of 5 stars

Abode says ..

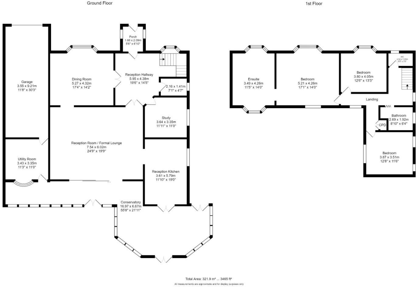
****RARE OPPORTUNITY**** Abode are delighted to offer for sale this STUNNING DETACHED family home situated on approximately 1/3 of an acre with picturesque views over the Sefton countryside. With a range of amenities in close proximity such as shops, supermarkets, excellent transport lin...

Property Oracle says ..

This property is located in Ince Road, Liverpool and is a detached house with 3 bedrooms and 2 bathrooms. The property is listed at £799,950 and has a plot size of 3,465 sqft. The average price for properties in the area is £376,936 with an average size of 1,051 sqft. This property is significantly larger than the average property in the area, and the price reflects this. The property appears to be in good condition, with a well-maintained garden and swimming pool. There are several good schools nearby, and the property is also conveniently located close to public transport.

Therefore, we give this property 7 / 10. *Disclaimer: This is our option and does constitute a recommendation or financial advice. Do your own research. *

Price
6
Condition
8
Location
7
Land
9
Bedrooms
3
Bathrooms
2
Sqft (est)
8,150.00
Lot (est)
3,465.00

The heatmap indicates the level of crime in the area. The color of the heatmap indicates the crime severity and recency.

Metrics Year-on-Year

Average area value
387,843.00 £
Increased by 1.47 %
from 382,238.00 £
Est sale value
3,154,050.00 £
Increased by 24.84 %
from 2,526,500.00 £
Average area rental value
1,806.00 £/mo
Increased by 16.22 %
from 1,554.00 £/mo
Est letting value
8,150.00 £/mo
Unchanged by 0.00 %
from 8,150.00 £/mo
Est rental Yield
5.59 %
Increased by 14.55 %
from 4.88 %
Crime Rate
8.00 %
Unchanged by 0.00 %
from 8.00 %

Agent Activity

  • Abode created the listing.

Nearby Schools

NameTypeOfstedDistance
Holy Family Catholic High SchoolVoluntary Aided SchoolGood0.25 KM
Thornton Children'S CentreChildren's Centre Linked Site0.75 KM
St William Of York Catholic Primary SchoolVoluntary Aided SchoolGood0.98 KM
Jigsaw Primary Pupil Referral UnitPupil Referral UnitGood0.98 KM
Chesterfield High SchoolAcademy ConverterGood1.26 KM

Images

25 Ince Road (1 of 3).jpg 25 Ince Road (36 of 47).jpg 25 Ince Road (43 of 47).jpg 25 Ince Road (2 of 3).jpg 25 Ince Road (14 of 47).jpg 25 Ince Road (15 of 47).jpg 25 Ince Road (16 of 47).jpg 25 Ince Road (21 of 47).jpg 25 Ince Road (20 of 47).jpg 25 Ince Road (18 of 47).jpg 25 Ince Road (19 of 47).jpg 25 Ince Road (17 of 47).jpg 25 Ince Road (24 of 47).jpg 25 Ince Road (25 of 47).jpg 25 Ince Road (26 of 47).jpg 25 Ince Road (27 of 47).jpg 25 Ince Road (28 of 47).jpg 25 Ince Road (32 of 47).jpg 25 Ince Road (22 of 47).jpg 25 Ince Road (23 of 47).jpg 25 Ince Road (29 of 47).jpg 25 Ince Road (30 of 47).jpg 25 Ince Road (33 of 47).jpg 25 Ince Road (31 of 47).jpg 25 Ince Road (13 of 47).jpg 25 Ince Road (4 of 47).jpg 25 Ince Road (3 of 47).jpg 25 Ince Road (1 of 47).jpg 25 Ince Road (2 of 47).jpg 25 Ince Road (5 of 47).jpg 25 Ince Road (6 of 47).jpg 25 Ince Road (7 of 47).jpg 25 Ince Road (8 of 47).jpg 25 Ince Road (9 of 47).jpg 25 Ince Road (10 of 47).jpg 25 Ince Road (11 of 47).jpg 25 Ince Road (12 of 47).jpg 25 Ince Road (34 of 47).jpg 25 Ince Road (35 of 47).jpg 25 Ince Road (37 of 47).jpg 25 Ince Road (38 of 47).jpg 25 Ince Road (39 of 47).jpg 25 Ince Road (40 of 47).jpg 25 Ince Road (41 of 47).jpg 25 Ince Road (3 of 3).jpg 25 Ince Road (42 of 47).jpg 25 Ince Road (45 of 47).jpg 25 Ince Road (47 of 47).jpg

Nearby Streets

NameAverage PriceAverage SqftDistance
Woodland View £ 000.00 KM
Virgin's Lane £ 000.00 KM
Park Drive £ 000.00 KM
Park View £ 383,77300.00 KM
White Meadow Drive £ 180,00000.00 KM

Nearby Transport

NameNLCTLCDistance
Waterloo (Merseyside)2133WLO3.66 KM
Blundellsands And Crosby2123BLN3.96 KM
Seaforth And Litherland2250SFL4.03 KM
Hall Road2229HLR4.72 KM
Bootle New Strand2195BNW5.63 KM

Nearby Listings

AddressPriceTypeScoreDistance
Ince Road, Liverpool £ 780,000BUYUnknown0.00 KM
Ince Road, Crosby, Merseyside, L23 £ 675,000BUY6 / 100.12 KM
Ince Road, Thornton, Merseyside, L23 £ 525,000BUY8 / 100.12 KM
Woodland View, Liverpool, Merseyside, L23 £ 345,000BUY7 / 100.18 KM
Virgins Lane, Thornton, Merseyside, L23 £ 499,950BUY6 / 100.18 KM

Nearby Properties

AddressPriceDistance
17 Ince Road £ 660,0000.06 KM
13 Ince Road £ 450,0000.06 KM
11 Ince Road £ 585,0000.06 KM
27 Ince Road £ 385,0000.06 KM
21 Ince Road £ 630,0000.06 KM