Hortons says ..
Beautifully finished three-bedroom semi-detached home, ideal for first-time buyers. Featuring tasteful decor, sought after location, and plenty of parking. This home is move-in ready.
Property Oracle says ..
This three-bedroom semi-detached house in Leicester is presented in excellent condition and boasts tasteful decor. The property benefits from a convenient location, with nearby schools such as Millfield L.E.A.D. Academy (rated Good by Ofsted) within close proximity. The presence of a garden adds to its appeal. While specific pricing data for comparable properties is limited, the list price appears reasonable considering the overall condition, location, and features.
Therefore, we give this property 7 / 10. *Disclaimer: This is our option and does constitute a recommendation or financial advice. Do your own research. *
- Price
- 7
- Condition
- 9
- Location
- 8
- Land
- 7
- Bedrooms
- 3
- Bathrooms
- 1
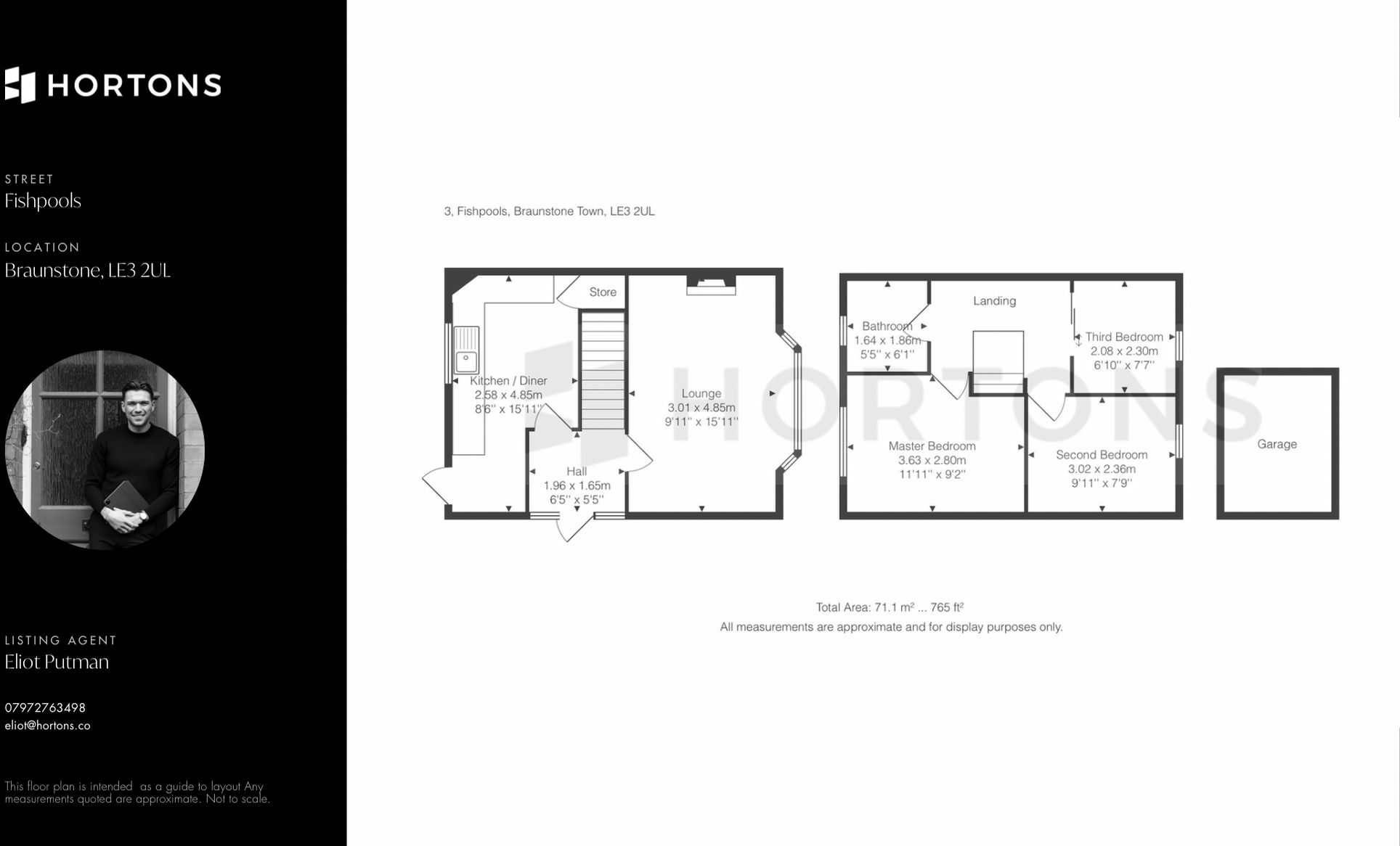
- Sqft (est)
- 765.00
- Lot (est)
- 765.00
The heatmap indicates the level of crime in the area. The color of the heatmap indicates the crime severity and recency.
Metrics Year-on-Year
- Average area value
- 127,421.00 £Decreased by 20.23 %
- Est sale value
- 126,990.00 £Decreased by 12.17 %
- Average area rental value
- 836.00 £/moIncreased by 23.67 %
- Est letting value
- 765.00 £/mo
- Est rental Yield
- 7.87 %Increased by 54.92 %
- Crime Rate
- 5.00 %Unchanged by 0.00 %
Agent Activity
Hortons created the listing.
Nearby Schools
| Name | Type | Ofsted | Distance |
|---|---|---|---|
| Millfield L.E.A.D. Academy | Academy Sponsor Led | Good | 0.34 KM |
| Ravenhurst Primary School | Community School | Requires improvement | 0.94 KM |
| Braunstone Town Sure Start Children'S Centre | Children's Centre | 1.35 KM | |
| The Winstanley School | Academy Converter | Requires improvement | 1.38 KM |
| Kingsway Primary School | Academy Converter | 1.51 KM |
Images
Nearby Streets
| Name | Average Price | Average Sqft | Distance |
|---|---|---|---|
| Penhale Road | £ 350,000 | 0 | 0.00 KM |
| Lubbesthorpe Way | £ 0 | 0 | 0.00 KM |
| Headley Road | £ 0 | 0 | 0.00 KM |
| The Poplars | £ 0 | 0 | 0.00 KM |
| Gwencole Subway | £ 0 | 0 | 0.00 KM |
Nearby Transport
| Name | NLC | TLC | Distance |
|---|---|---|---|
| Narborough | 1881 | NBR | 4.45 KM |
| South Wigston | 1949 | SWS | 5.99 KM |
| Leicester | 1947 | LEI | 6.98 KM |
Nearby Listings
| Address | Price | Type | Score | Distance |
|---|---|---|---|---|
| Fishpools, Leicester, LE3 | £ 240,000 | BUY | 7 / 10 | 0.00 KM |
| Pits Avenue, LEICESTER, LE3 | £ 310,000 | BUY | 7 / 10 | 0.07 KM |
| Pinfold, Leicester | £ 270,000 | BUY | Unknown | 0.11 KM |
| Fishpools, Braunstone Town, LE3 | £ 225,000 | BUY | 6 / 10 | 0.12 KM |
| Grass Acres, Leicester | £ 260,000 | BUY | Unknown | 0.13 KM |
Nearby Properties
| Address | Price | Distance |
|---|---|---|
| 2a Fishpools | £ 277,500 | 0.06 KM |
| 31 Fishpools | £ 138,500 | 0.06 KM |
| 12 Fishpools | £ 145,000 | 0.06 KM |
| 3 Fishpools | £ 116,950 | 0.06 KM |
| 6 Fishpools | £ 140,000 | 0.06 KM |