Alexandra Road, Chadwell Heath, RM6
HU

Alexandra Road, Chadwell Heath, RM6

By Hunters

£ 525,000

Reviews

2 out of 5 stars

Hunters says ..

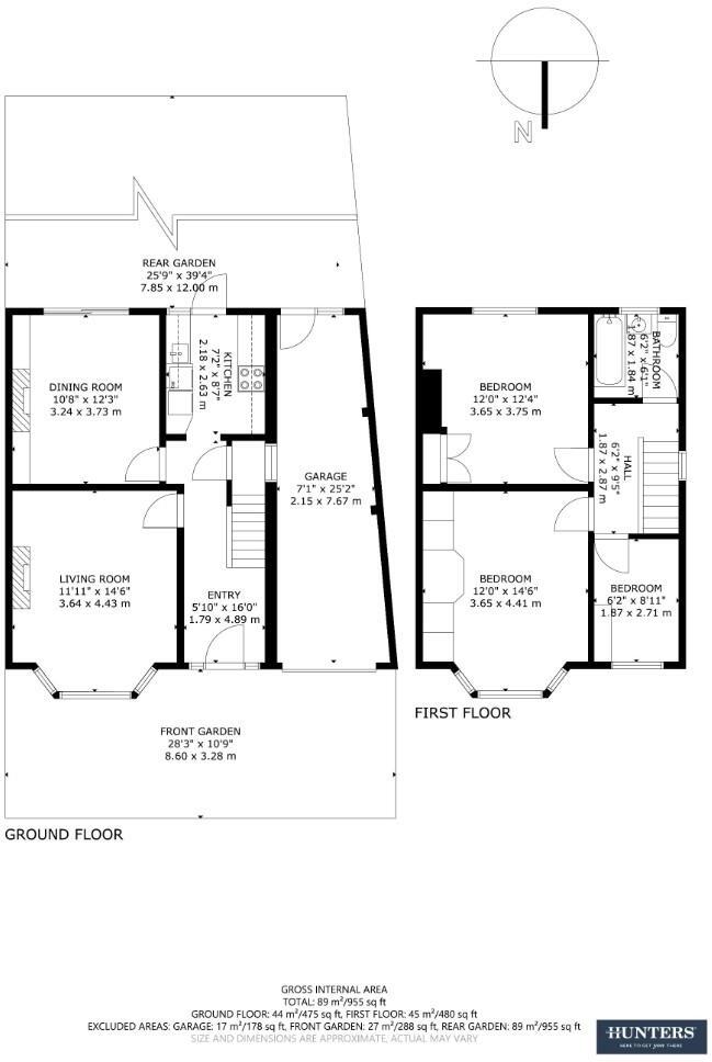
Nestled on the charming Alexandra Road in Chadwell Heath, this delightful three-bedroom semi-detached house offers a perfect blend of comfort and potential. Spanning an impressive 955 square feet, the property features two spacious reception rooms, ideal for both relaxation and entertaining. The ...

Property Oracle says ..

This three-bedroom semi-detached house on Alexandra Road, Chadwell Heath, is situated in a convenient location with good access to local schools and transportation links. The property benefits from a garden. However, the interior images reveal that the property is in need of significant modernisation and updating. The current list price of £525,000 is higher than the average price for the area (£356,466) and requires careful consideration given the required renovations.

Therefore, we give this property 4 / 10. *Disclaimer: This is our option and does constitute a recommendation or financial advice. Do your own research. *

Price
4
Condition
3
Location
7
Land
5
Bedrooms
3
Bathrooms
1
Sqft (est)
957.99

The heatmap indicates the level of crime in the area. The color of the heatmap indicates the crime severity and recency.

Metrics Year-on-Year

Average area value
373,333.00 £
Decreased by 6.92 %
from 401,101.00 £
Est sale value
310,388.76 £
Decreased by 25.17 %
from 414,809.67 £
Average area rental value
1,875.00 £/mo
Increased by 0.64 %
from 1,863.00 £/mo
Est letting value
957.99 £/mo
Decreased by 50.00 %
from 1,915.98 £/mo
Est rental Yield
6.03 %
Increased by 8.26 %
from 5.57 %
Crime Rate
5.00 %
Unchanged by 0.00 %
from 5.00 %

Agent Activity

  • Hunters created the listing.

Nearby Schools

NameTypeOfstedDistance
Furze Infant SchoolCommunity SchoolGood0.68 KM
Furze Children'S CentreChildren's Centre Linked Site0.75 KM
The Warren SchoolAcademy Sponsor LedGood0.82 KM
Warren Junior SchoolCommunity SchoolOutstanding0.94 KM
Marks Gate Children'S CentreChildren's Centre1.27 KM

Images

21-Alexandra-Road-05222025_153958.jpg 21-Alexandra-Road-05222025_151215.jpeg 21-Alexandra-Road-05222025_151246.jpg 21-Alexandra-Road-05222025_151319.jpg 21-Alexandra-Road-05222025_151511.jpeg 21-Alexandra-Road-05222025_151550.jpeg 21-Alexandra-Road-05222025_152108.jpeg 21-Alexandra-Road-05222025_151844.jpeg 21-Alexandra-Road-05222025_151917.jpeg 21-Alexandra-Road-05222025_195637.jpg 21-Alexandra-Road-05222025_152246.jpeg 21-Alexandra-Road-05222025_152334.jpeg 21-Alexandra-Road-05222025_152502.jpg 21-Alexandra-Road-05222025_152536.jpg 21-Alexandra-Road-05222025_152609.jpg 21-Alexandra-Road-05222025_152718.jpeg 21-Alexandra-Road-05222025_152754.jpeg 21-Alexandra-Road-05222025_152825.jpeg 21-Alexandra-Road-05222025_152924.jpeg 21-Alexandra-Road-05222025_153244.jpeg 21-Alexandra-Road-05222025_153331.jpeg 21-Alexandra-Road-05222025_153401.jpg 21-Alexandra-Road-05222025_153435.jpg 21-Alexandra-Road-05222025_153547.jpg 21-Alexandra-Road-05222025_154030.jpg

Nearby Streets

NameAverage PriceAverage SqftDistance
The Chase £ 000.00 KM
Junction Road West £ 000.00 KM
Willow Road £ 000.00 KM
Cromer Road £ 452,49800.00 KM
Dover Road £ 000.00 KM

Nearby Transport

NameNLCTLCDistance
Chadwell Heath6874CTH0.90 KM
Goodmayes6878GMY2.78 KM
Seven Kings6893SVK4.28 KM
Romford6886RMF5.39 KM
Dagenham Dock7440DDK5.48 KM

Nearby Listings

AddressPriceTypeScoreDistance
Alexandra Road, Chadwell Heath, RM6 £ 525,000BUY4 / 100.00 KM
Alexandra Road, Romford, RM6 £ 525,000BUYUnknown0.04 KM
Alexandra Road, Chadwell Heath, Essex £ 330,500BUY5 / 100.05 KM
Alexandra Road, Chadwell Heath, Essex £ 500,000BUY6 / 100.05 KM
Edward Road, Chadwell Heath, London, RM6 £ 505,000BUYUnknown0.08 KM

Nearby Properties

AddressPriceDistance
22 Alexandra Road £ 345,0000.04 KM
25 Alexandra Road £ 303,0000.04 KM
27 Alexandra Road £ 245,0000.04 KM
29 Alexandra Road £ 352,0000.04 KM
21 Alexandra Road £ 395,0000.04 KM