Kings Road, Bradford, West Yorkshire, BD2
By Robert Watts
£ 220,000
Reviews
3 out of 5 stars
Robert Watts says ..
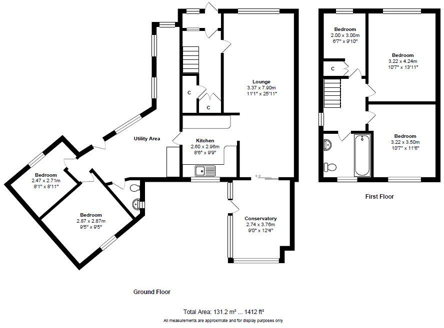
For sale by Modern Method of Auction Starting Bid £220,000. AUCTION ENDS ON 18TH FEBRUARY AT 1PM. NO CHAIN – Family sized semi-detached occupying an ENVIABLE CORNER PLOT. Recent improvements include: NEW ROOF, NEW BOILER, UPDATED BATHROOM – currently providing FIVE B...
Property Oracle says ..
The property is a 5-bedroom house with 1 bathroom, situated in the Windhill And Wrose area of Bradford, West Yorkshire. It has a list price of £220,000 and a plot size of 1,412 sqft. The property appears to be a semi-detached house, and the images show it benefits from a relatively modern kitchen and bathroom. The property also has a conservatory and a garden. The location is reasonably convenient, with several primary schools within a kilometer radius. However, one of the nearby schools, Hanson School, has been rated as having serious weaknesses by Ofsted, which may be a negative factor for families with school-aged children. Several train stations are also within a reasonable distance, providing access to public transport. Based on the images provided, the property appears to be in good condition, with recent improvements to the kitchen and bathroom. There is no obvious evidence of significant repair or renovation needs. The presence of a garden adds to the property’s appeal, especially for families. Considering the list price of £220,000, the property seems to be priced competitively compared to other properties in the area. While there is a lack of precise square footage data for nearby properties, the available information suggests that the price is in line with the market value for similar properties in the area with similar features. The larger plot size compared to other properties is an advantage.
Therefore, we give this property 7 / 10. *Disclaimer: This is our option and does constitute a recommendation or financial advice. Do your own research. *
- Price
- 7
- Condition
- 8
- Location
- 7
- Land
- 7
- Bedrooms
- 5
- Bathrooms
- 1
- Sqft (est)
- 369.91
- Lot (est)
- 1,412.00
The heatmap indicates the level of crime in the area. The color of the heatmap indicates the crime severity and recency.
Metrics Year-on-Year
- Average area value
- 856,250.00 £Increased by 15.74 %
- Est sale value
- 262,636.10 £Increased by 21.37 %
- Average area rental value
- 2,000.00 £/moDecreased by 15.25 %
- Est letting value
- 369.91 £/moUnchanged by 0.00 %
- Est rental Yield
- 2.80 %Decreased by 26.89 %
- Crime Rate
- 6.00 %Unchanged by 0.00 %
Agent Activity
Robert Watts marked this listing as sold.
Robert Watts created the listing.
Nearby Schools
| Name | Type | Ofsted | Distance |
|---|---|---|---|
| Swain House Primary School | Community School | Good | 0.65 KM |
| Hanson School | Foundation School | Serious Weaknesses | 0.80 KM |
| Blakehill Primary School | Community School | Good | 0.87 KM |
| Grove House Primary School | Academy Converter | 0.99 KM | |
| St Francis Catholic Primary School, A Voluntary Academy | Academy Converter | 1.16 KM |
Images
Nearby Streets
| Name | Average Price | Average Sqft | Distance |
|---|---|---|---|
| Highfield Grove | £ 198,333 | 0 | 0.00 KM |
| The Stray | £ 0 | 0 | 0.00 KM |
| All Alone Road | £ 265,000 | 0 | 0.00 KM |
| Kestrel Drive | £ 175,000 | 0 | 0.00 KM |
| Ashbourne Close | £ 0 | 0 | 0.00 KM |
Nearby Transport
| Name | NLC | TLC | Distance |
|---|---|---|---|
| Frizinghall | 8556 | FZH | 2.86 KM |
| Baildon | 8552 | BLD | 3.01 KM |
| Bradford Forster Square | 8346 | BDQ | 3.30 KM |
| Shipley (Yorks) | 8347 | SHY | 3.43 KM |
| Bradford Interchange | 8345 | BDI | 3.84 KM |
Nearby Listings
| Address | Price | Type | Score | Distance |
|---|---|---|---|---|
| Livingstone Close, Bradford, BD2 | £ 200,000 | BUY | 5 / 10 | 0.12 KM |
| Kings Road, Wrose, Bradford, BD2 | £ 240,000 | BUY | 7 / 10 | 0.13 KM |
| Plumpton Close, Bradford | £ 200,000 | BUY | 6 / 10 | 0.14 KM |
| Plumpton Close, Bradford | £ 185,000 | BUY | 7 / 10 | 0.14 KM |
| Kings Road, Wrose, Bradford, BD2 | £ 170,000 | BUY | 5 / 10 | 0.16 KM |
Nearby Properties
| Address | Price | Distance |
|---|---|---|
| 16 Livingstone Close | £ 220,000 | 0.14 KM |
| 14 Livingstone Close | £ 59,995 | 0.14 KM |
| 20 Livingstone Close | £ 137,000 | 0.14 KM |
| 3 Livingstone Close | £ 200,000 | 0.14 KM |
| 4 Livingstone Close | £ 200,000 | 0.14 KM |