Downs Park Road, Totton, SO40
By Anthony James Properties
£ 369,950
Reviews
3 out of 5 stars
Anthony James Properties says ..
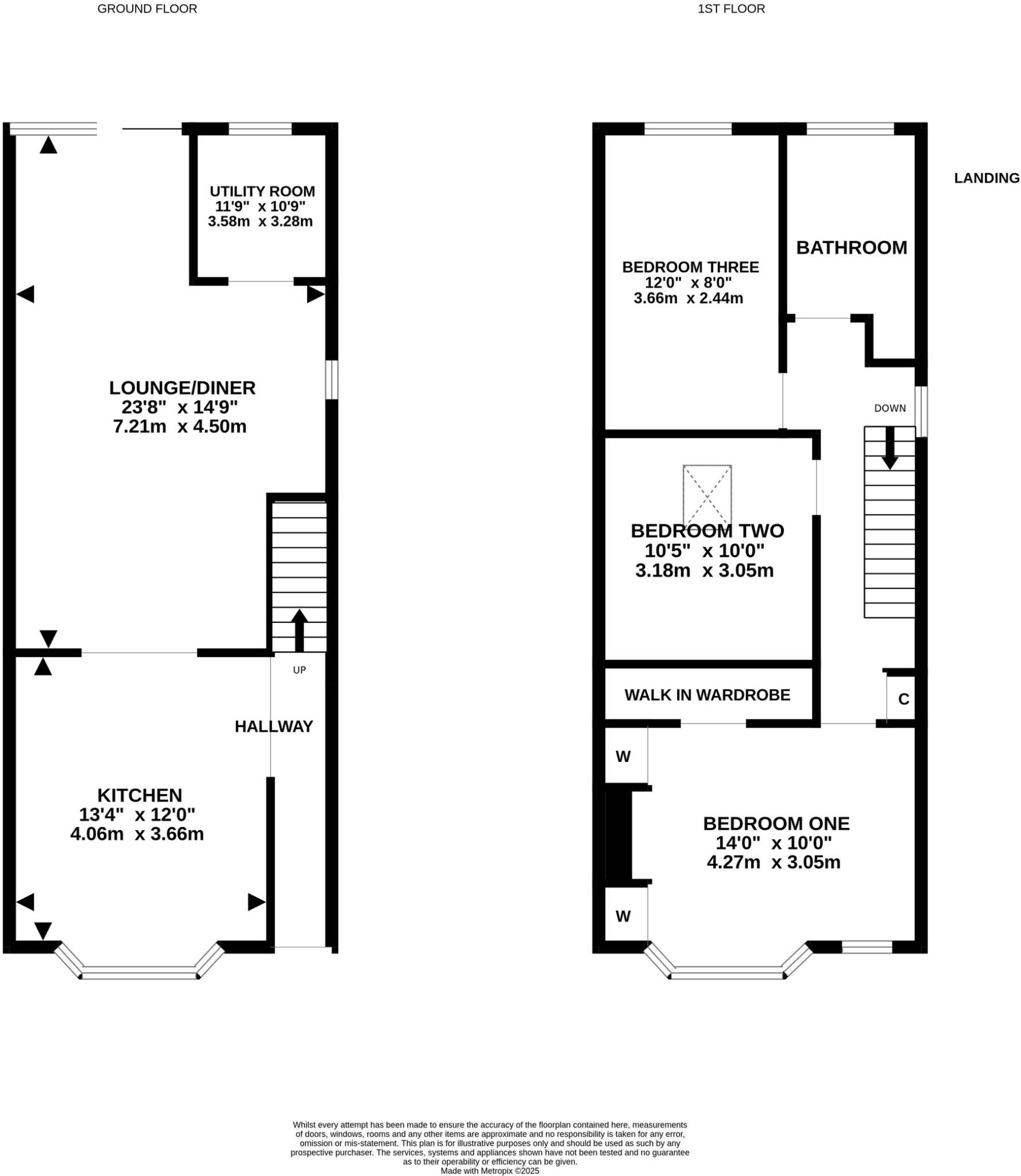
Impressive three-bed EOT house in Eling with stylish open plan living, 3 double bedrooms, spacious bathroom, workshop, and garden with al fresco dining. Potential, central heating, and parking.
Property Oracle says ..
This three-bedroom end-of-terrace house in Totton, Hampshire, presents as a well-maintained and attractively updated property. The interior boasts a modern, stylish design, highlighted by a recently-refurbished kitchen with a center island and integrated appliances, and contemporary bathrooms. The open-plan living space flows seamlessly between the kitchen and the living area, creating a spacious and airy feel. The garden is a sizable addition and offers a pleasing outdoor space. The location in Totton provides convenient access to local amenities and schools, while the nearby Totton railway station offers excellent transport links. Although the precise square footage is not explicitly provided for comparable properties, suggesting a comparative market analysis is more challenging, the asking price seems generally in line with similar properties in the area, given its apparent condition and modern updates. Overall, this property offers a well-presented and comfortable family home with good potential for buyers in the area.
Therefore, we give this property 7 / 10. *Disclaimer: This is our option and does constitute a recommendation or financial advice. Do your own research. *
- Price
- 7
- Condition
- 9
- Location
- 7
- Land
- 6
- Bedrooms
- 3
- Bathrooms
- 2
- Sqft (est)
- 935.06
The heatmap indicates the level of crime in the area. The color of the heatmap indicates the crime severity and recency.
Metrics Year-on-Year
- Average area value
- 471,111.00 £Increased by 12.11 %
- Est sale value
- 503,997.34 £Increased by 34.75 %
- Average area rental value
- 1,283.00 £/moDecreased by 19.91 %
- Est letting value
- 935.06 £/moUnchanged by 0.00 %
- Est rental Yield
- 3.27 %Decreased by 28.45 %
- Crime Rate
- 23.00 %Unchanged by 0.00 %
Agent Activity
Anthony James Properties created the listing.
Nearby Schools
| Name | Type | Ofsted | Distance |
|---|---|---|---|
| Eling Infant School And Nursery | Community School | Good | 0.26 KM |
| The Harbour Children'S Centre | Children's Centre Linked Site | 0.27 KM | |
| Glade School | Other Independent Special School | 0.68 KM | |
| Hounsdown School | Academy Converter | Outstanding | 1.14 KM |
| Forest Park School | Community Special School | Good | 1.44 KM |
Images
Nearby Streets
| Name | Average Price | Average Sqft | Distance |
|---|---|---|---|
| Howerd Court | £ 0 | 0 | 0.00 KM |
| Jacob's Gutter Lane | £ 0 | 0 | 0.00 KM |
| Hurst Close | £ 360,000 | 0 | 0.00 KM |
Nearby Transport
| Name | NLC | TLC | Distance |
|---|---|---|---|
| Totton | 5921 | TTN | 0.74 KM |
| Redbridge | 5912 | RDB | 1.88 KM |
| Ashurst New Forest | 5906 | ANF | 5.20 KM |
| Millbrook (Hants) | 5909 | MBK | 5.67 KM |
| Beaulieu Road | 5890 | BEU | 6.68 KM |
Nearby Listings
| Address | Price | Type | Score | Distance |
|---|---|---|---|---|
| Downs Park Road, Totton, SO40 | £ 369,950 | BUY | 7 / 10 | 0.00 KM |
| Downs Park Avenue, Totton, Southampton | £ 260,000 | BUY | 6 / 10 | 0.06 KM |
| Eling | £ 295,000 | BUY | 7 / 10 | 0.08 KM |
| Eling | £ 310,000 | BUY | 7 / 10 | 0.09 KM |
| Downs Park Road, Totton, Southampton | £ 250,000 | BUY | 6 / 10 | 0.09 KM |
Nearby Properties
| Address | Price | Distance |
|---|---|---|
| 47a Downs Park Avenue | £ 129,950 | 0.05 KM |
| 45a Downs Park Avenue | £ 123,000 | 0.05 KM |
| 45 Downs Park Avenue | £ 164,000 | 0.05 KM |
| 43a Downs Park Avenue | £ 125,000 | 0.05 KM |
| 43 Downs Park Avenue | £ 166,000 | 0.05 KM |