Harper & Woods says ..
Simply stunning! A true credit to its current owners for sure. This four bedroom, two bathroom, extended family home with loft conversion and sunny south westerly facing garden is not to be missed. It is a home you can just you can just drop your furniture into and call home straight away. Loc...
Property Oracle says ..
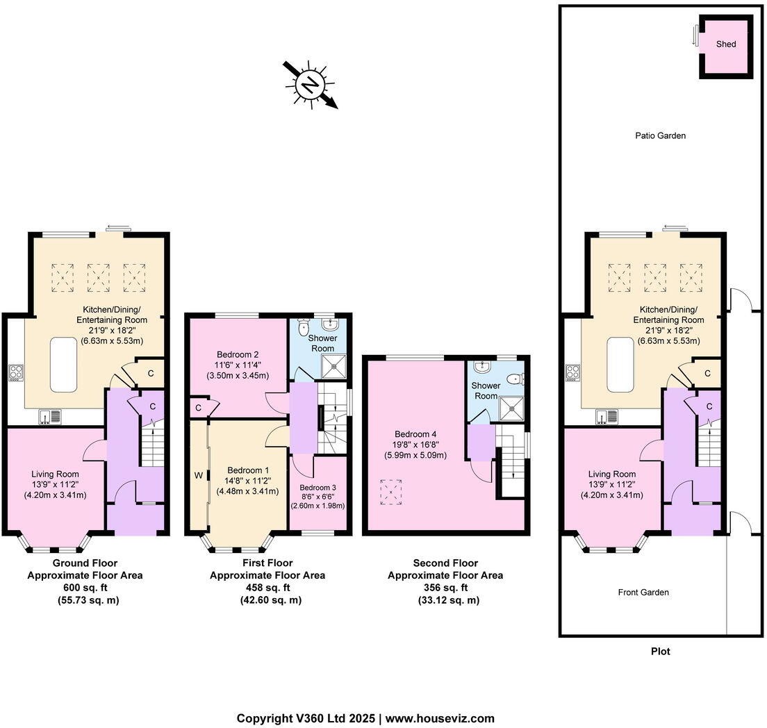
This is a semi-detached property on Eric Road, Wallasey, listed by Harper & Woods. The house has 4 bedrooms and 2 bathrooms, with a total square footage of 823.44 sqft. The property benefits from a modern interior, including a recently updated kitchen and bathrooms. The outdoor space is primarily paved, offering low-maintenance outdoor living. The property is located near several schools and has reasonable access to transportation. The asking price of £325,000 appears to be in line with similar properties in the area, considering its condition and features.
Therefore, we give this property 7 / 10. *Disclaimer: This is our option and does constitute a recommendation or financial advice. Do your own research. *
- Price
- 7
- Condition
- 8
- Location
- 7
- Land
- 6
- Bedrooms
- 4
- Bathrooms
- 2
- Sqft (est)
- 823.44
The heatmap indicates the level of crime in the area. The color of the heatmap indicates the crime severity and recency.
Metrics Year-on-Year
- Average area value
- 158,667.00 £Decreased by 12.47 %
- Est sale value
- 176,216.16 £Increased by 35.44 %
- Average area rental value
- 606.00 £/moDecreased by 22.70 %
- Est letting value
- 0.00 £/mo
- Est rental Yield
- 4.58 %Decreased by 11.75 %
- Crime Rate
- 3.00 %Unchanged by 0.00 %
Agent Activity
Harper & Woods created the listing.
Nearby Schools
| Name | Type | Ofsted | Distance |
|---|---|---|---|
| Park Primary School | Community School | Good | 0.26 KM |
| St Alban'S Catholic Primary School | Voluntary Aided School | Good | 0.40 KM |
| The Oldershaw School | Academy Converter | Good | 0.68 KM |
| Weatherhead High School | Academy Converter | Outstanding | 0.99 KM |
| Liscard Children'S Centre | Children's Centre Linked Site | 1.36 KM |
Images
Nearby Streets
| Name | Average Price | Average Sqft | Distance |
|---|---|---|---|
| Overton Road | £ 0 | 0 | 0.00 KM |
| Ashburton Road | £ 125,000 | 0 | 0.00 KM |
| School Close | £ 295,000 | 0 | 0.00 KM |
| Alderley Road | £ 0 | 0 | 0.00 KM |
| Bala Grove | £ 0 | 0 | 0.00 KM |
Nearby Transport
| Name | NLC | TLC | Distance |
|---|---|---|---|
| Birkenhead North | 2145 | BKN | 1.67 KM |
| New Brighton | 2152 | NBN | 2.31 KM |
| Wallasey Village | 2265 | WLV | 2.36 KM |
| Birkenhead Park | 2220 | BKP | 2.39 KM |
| Wallasey Grove Road | 2154 | WLG | 2.64 KM |
Nearby Listings
| Address | Price | Type | Score | Distance |
|---|---|---|---|---|
| Eric Road, Wallasey | £ 325,000 | BUY | 7 / 10 | 0.00 KM |
| Eric Road, Wallasey | £ 345,000 | BUY | 7 / 10 | 0.00 KM |
| Eric Road, Wallasey, Wirral | £ 300,000 | BUY | 7 / 10 | 0.01 KM |
| Eric Road, Wallasey | £ 200,000 | BUY | Unknown | 0.06 KM |
| Marlowe Road, Wallasey | £ 230,000 | BUY | 6 / 10 | 0.06 KM |
Nearby Properties
| Address | Price | Distance |
|---|---|---|
| 31 Eric Road | £ 130,000 | 0.01 KM |
| 29 Eric Road | £ 127,250 | 0.01 KM |
| 23 Eric Road | £ 168,000 | 0.01 KM |
| 17 Eric Road | £ 129,000 | 0.01 KM |
| 33 Eric Road | £ 147,000 | 0.02 KM |