Brownside Road, Cambuslang, Glasgow, South Lanarkshire
RE

Brownside Road, Cambuslang, Glasgow, South Lanarkshire

By Rettie & Co

£ 420,000

Reviews

3 out of 5 stars

Rettie & Co says ..

An entirely unique detached home situated in this quiet, yet convenient pocket of Cambuslang. This beautiful detached home enjoys generous family accommodation over two levels and enjoys the benefits of a hybrid heating system which reduces energy bills drastically. The acco...

Property Oracle says ..

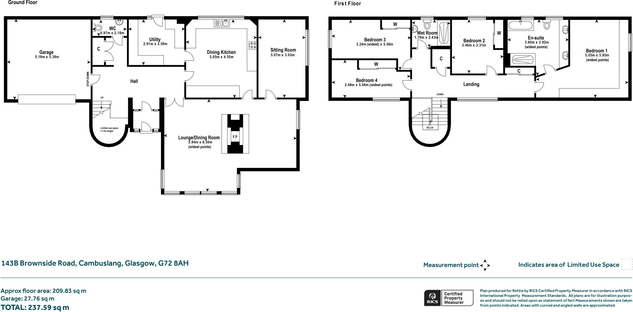
The property is a 4 bedroom detached house located in Brownside Road, Cambuslang, Glasgow. Cambuslang is a town within South Lanarkshire, offering a suburban lifestyle with relative proximity to Glasgow city centre. The area benefits from several nearby train stations (Cambuslang, Burnside, Kirkhill, Rutherglen and Carmyle), providing convenient access to public transport links. While specific details on local schools and shops are not provided, the presence of nearby transportation suggests reasonable access to amenities. Therefore, the location score is reasonable. Based on the images, the property appears to be in good condition. The interior is well-maintained and modern, with updated fixtures and fittings. There is no visible evidence of significant repairs or renovations required. The exterior also presents well, suggesting a property that is well-cared for. The property includes a garden, as shown in the provided images. The size of the garden is not specified, but it appears to be of a reasonable size for a detached house. The list price of £420,000 is significantly lower than the average price of £628,325 for the area. Considering the property’s size (2,341.29 sqft) and good condition, the price per sqft is lower than the average for the area (£527.00). The inclusion of a garden further enhances the value. While additional information on comparable properties would aid in a more precise assessment, the list price appears to be reasonable, especially considering the lower average price per sqft in the area.

Therefore, we give this property 7 / 10. *Disclaimer: This is our option and does constitute a recommendation or financial advice. Do your own research. *

Price
8
Condition
9
Location
7
Land
7
Bedrooms
4
Bathrooms
3
Sqft (est)
2,341.29
Lot (est)
2,557.40

The heatmap indicates the level of crime in the area. The color of the heatmap indicates the crime severity and recency.

Metrics Year-on-Year

Average area value
300,000.00 £
Decreased by 54.85 %
from 664,444.00 £
Est sale value
1,191,716.61 £
Increased by 92.08 %
from 620,441.85 £
Average area rental value
1,007.00 £/mo
Decreased by 25.41 %
from 1,350.00 £/mo
Est letting value
2,341.29 £/mo
from 0.00 £/mo
Est rental Yield
4.03 %
Increased by 65.16 %
from 2.44 %
Crime Rate
0.00 %
from 0.00 %

Agent Activity

  • Rettie & Co created the listing.

Images

Picture No. 37 Picture No. 42 Picture No. 43 Picture No. 44 Picture No. 45 Picture No. 46 Picture No. 47 Picture No. 48 Picture No. 49 Picture No. 10 Picture No. 11 Picture No. 12 Picture No. 13 Picture No. 14 Picture No. 15 Picture No. 16 Picture No. 18 Picture No. 23 Picture No. 09 Picture No. 17 Picture No. 19 Picture No. 20 Picture No. 21 Picture No. 22 Picture No. 25 Picture No. 26 Picture No. 27 Picture No. 28 Picture No. 29 Picture No. 30 Picture No. 31 Picture No. 32 Picture No. 33 Picture No. 35 Picture No. 41 Picture No. 24 Picture No. 34 Picture No. 36 Picture No. 38 Picture No. 39 Picture No. 40

Nearby Streets

NameAverage PriceAverage SqftDistance
Hunterfield Drive £ 000.00 KM
Glenburn Avenue £ 000.00 KM
Eastfield Avenue £ 000.00 KM
Milton Avenue £ 000.00 KM
Brownside Avenue £ 000.00 KM

Nearby Transport

NameNLCTLCDistance
Cambuslang9768CBL1.40 KM
Burnside (South Lanarkshire)9767BUI1.91 KM
Kirkhill9771KKH2.01 KM
Rutherglen9787RUT3.40 KM
Carmyle9769CML3.62 KM

Nearby Listings

AddressPriceTypeScoreDistance
Brownside Road, Cambuslang, Glasgow, South Lanarkshire £ 420,000BUY7 / 100.00 KM
Brownside Road, Cambuslang, Glasgow, South Lanarkshire, G72 £ 410,000BUYUnknown0.09 KM
33 Hawthorn Way, Cambuslang, Glasgow, G72 £ 415,000BUY7 / 100.12 KM
43, Hawthorn Way, Cambuslang , Glasgow, G72 £ 410,000BUY7 / 100.14 KM
Brownside Road, Cambuslang, G72 £ 175,000BUY7 / 100.15 KM