Amelies Estate Agents says ..
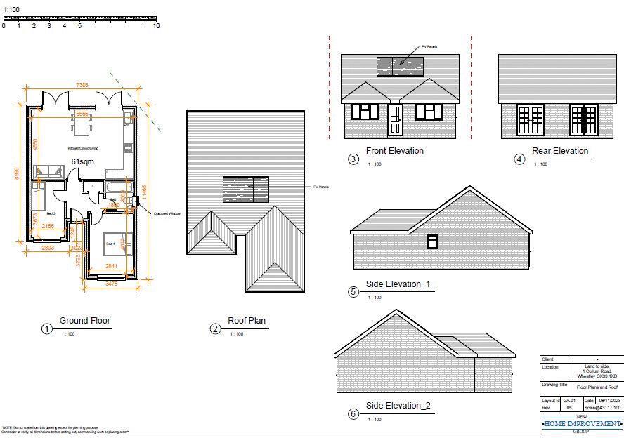
**OPEN DAY - 10AM - 1PM - By PRE-BOOKED APPOINTMENT ONLY** We are delighted to invite you to an exclusive first look at this beautifully designed two-bedroom bungalow, due for completion this Autumn. Thoughtfully created by an architect, this rare single-storey home combines modern style with pr...
Property Oracle says ..
This is a 2-bedroom bungalow located in Wheatley, South Oxfordshire. The property appears to be in excellent, modern condition, possibly recently renovated. It is situated within a reasonable distance of local schools, including Wheatley Park School, which has a ‘Good’ Ofsted rating. The listing price is £480,000, which is slightly above the average for the area, considering the property’s square footage is below average. However, the modern condition and desirable location contribute to its value.
Therefore, we give this property 6 / 10. *Disclaimer: This is our option and does constitute a recommendation or financial advice. Do your own research. *
- Price
- 6
- Condition
- 9
- Location
- 7
- Land
- 5
- Bedrooms
- 2
- Bathrooms
- 1
- Sqft (est)
- 656.60
The heatmap indicates the level of crime in the area. The color of the heatmap indicates the crime severity and recency.
Metrics Year-on-Year
- Average area value
- 436,667.00 £Decreased by 13.99 %
- Est sale value
- 260,013.60 £Unchanged by 0.00 %
- Average area rental value
- 1,250.00 £/moDecreased by 18.46 %
- Est letting value
- 656.60 £/moUnchanged by 0.00 %
- Est rental Yield
- 3.44 %Decreased by 4.97 %
- Crime Rate
- 151.00 %Unchanged by 0.00 %
Agent Activity
Amelies Estate Agents created the listing.
Nearby Schools
| Name | Type | Ofsted | Distance |
|---|---|---|---|
| Wheatley Park School | Academy Converter | Good | 1.42 KM |
| John Watson School | Community Special School | Good | 1.91 KM |
| Wheatley Church Of England Primary School | Academy Sponsor Led | Good | 1.91 KM |
| Wheatley Nursery School | Local Authority Nursery School | Good | 1.91 KM |
| Garsington Church Of England Primary School | Academy Converter | Good | 4.67 KM |
Images
Nearby Streets
| Name | Average Price | Average Sqft | Distance |
|---|---|---|---|
| Sunnyside | £ 0 | 0 | 0.00 KM |
| The Avenue | £ 308,333 | 0 | 0.00 KM |
| Waterperry Road | £ 0 | 0 | 0.00 KM |
| Bartholomews Place | £ 0 | 0 | 0.00 KM |
| St Mary's Close | £ 950,000 | 0 | 0.00 KM |
Nearby Listings
| Address | Price | Type | Score | Distance |
|---|---|---|---|---|
| Cullum Road, Oxford | £ 480,000 | BUY | 6 / 10 | 0.00 KM |
| Cullum Road, Wheatley, Oxford, OX33 1XD | £ 500,000 | BUY | Unknown | 0.09 KM |
| London Road, Wheatley, Oxfordshire | £ 550,000 | BUY | 6 / 10 | 0.11 KM |
| Roman Road, Wheatley, OX33 | £ 375,000 | BUY | 6 / 10 | 0.13 KM |
| London Road, Wheatley, OX33 | £ 295,000 | BUY | 6 / 10 | 0.13 KM |
Nearby Properties
| Address | Price | Distance |
|---|---|---|
| 6 Cullum Road | £ 505,000 | 0.08 KM |
| 12 Leyshon Road | £ 275,000 | 0.09 KM |
| 13 Leyshon Road | £ 85,000 | 0.10 KM |
| 10 Leyshon Road | £ 235,000 | 0.10 KM |
| 78 London Road | £ 370,000 | 0.10 KM |