WA
2/2 409 Great Western Road, Kelvinbridge, Glasgow, G4 9JA
By Watermans
£ 305,000
Reviews
3 out of 5 stars
Watermans says ..
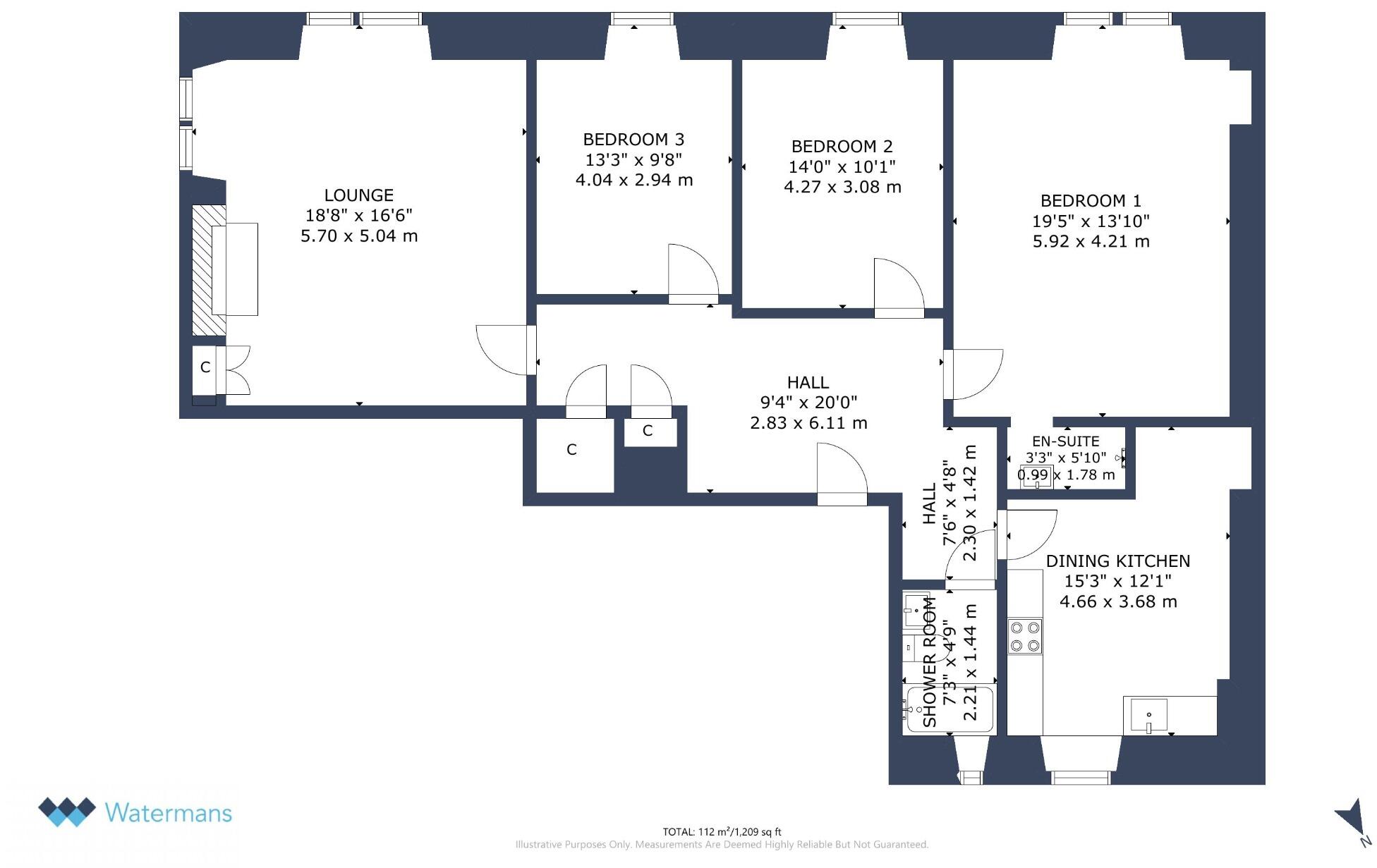
Beautifully proportioned and highly versatile three-bedroom apartment, occupying a prominent second-floor position located in the heart of Kelvinbridge
Property Oracle says ..
Therefore, we give this property 6 / 10. *Disclaimer: This is our option and does constitute a recommendation or financial advice. Do your own research. *
- Price
- 8
- Condition
- 8
- Location
- 8
- Land
- 1
- Bedrooms
- 3
- Bathrooms
- 2
- Sqft (est)
- 1,205.56
The heatmap indicates the level of crime in the area. The color of the heatmap indicates the crime severity and recency.
Metrics Year-on-Year
- Average area value
- 235,300.00 £Decreased by 27.76 %
- Est sale value
- 361,668.00 £Decreased by 14.53 %
- Average area rental value
- 1,777.00 £/moDecreased by 8.12 %
- Est letting value
- 2,411.12 £/moUnchanged by 0.00 %
- Est rental Yield
- 9.06 %Increased by 27.07 %
- Crime Rate
- 117.00 %Unchanged by 0.00 %
from 325,723.00 £
from 423,151.56 £
from 1,934.00 £/mo
from 2,411.12 £/mo
from 7.13 %
from 117.00 %
Agent Activity
Watermans created the listing.
Images
Nearby Streets
| Name | Average Price | Average Sqft | Distance |
|---|---|---|---|
| Jardine Street | £ 0 | 0 | 0.00 KM |
| Colebrooke Lane | £ 0 | 0 | 0.00 KM |
| Garriochmill Way | £ 0 | 0 | 0.00 KM |
| Napiershall Lane | £ 0 | 0 | 0.00 KM |
| Belmont Lane | £ 0 | 0 | 0.00 KM |
Nearby Transport
| Name | NLC | TLC | Distance |
|---|---|---|---|
| Charing Cross (Glasgow) | 9911 | CHC | 1.42 KM |
| Exhibition Centre (Glasgow) | 9914 | EXG | 1.51 KM |
| Anderston | 9965 | AND | 1.78 KM |
| Gilshochill | 9956 | GSC | 2.62 KM |
| Glasgow Central | 9813 | GLC | 2.80 KM |
Nearby Listings
| Address | Price | Type | Score | Distance |
|---|---|---|---|---|
| 2/2 409 Great Western Road, Kelvinbridge, Glasgow, G4 9JA | £ 305,000 | BUY | 6 / 10 | 0.00 KM |
| 3/1, 7 Park Road, Kelvinbridge, Glasgow, G4 9JD | £ 220,000 | BUY | 5 / 10 | 0.05 KM |
| North Woodside Road, Kelvinbridge, Glasgow, G20 6NN | £ 249,000 | BUY | 6 / 10 | 0.06 KM |
| 0/1 49 Park Road, Woodlands, G4 9JD | £ 250,000 | BUY | Unknown | 0.09 KM |
| Great Western Road, Kelvinbridge | £ 250,000 | BUY | 6 / 10 | 0.09 KM |