Lima Court, Bath Road, Reading, Berkshire, RG1
By Prospect Estate Agency
£ 260,000
Reviews
2 out of 5 stars
Prospect Estate Agency says ..
Just on the outskirts of the town centre, this two bedroom split level maisonette is presented in good condition and in a great location for transport links and town centre this property would be more than ideal for a first time buyer. Parking permits are also available for residents for on road ...
Property Oracle says ..
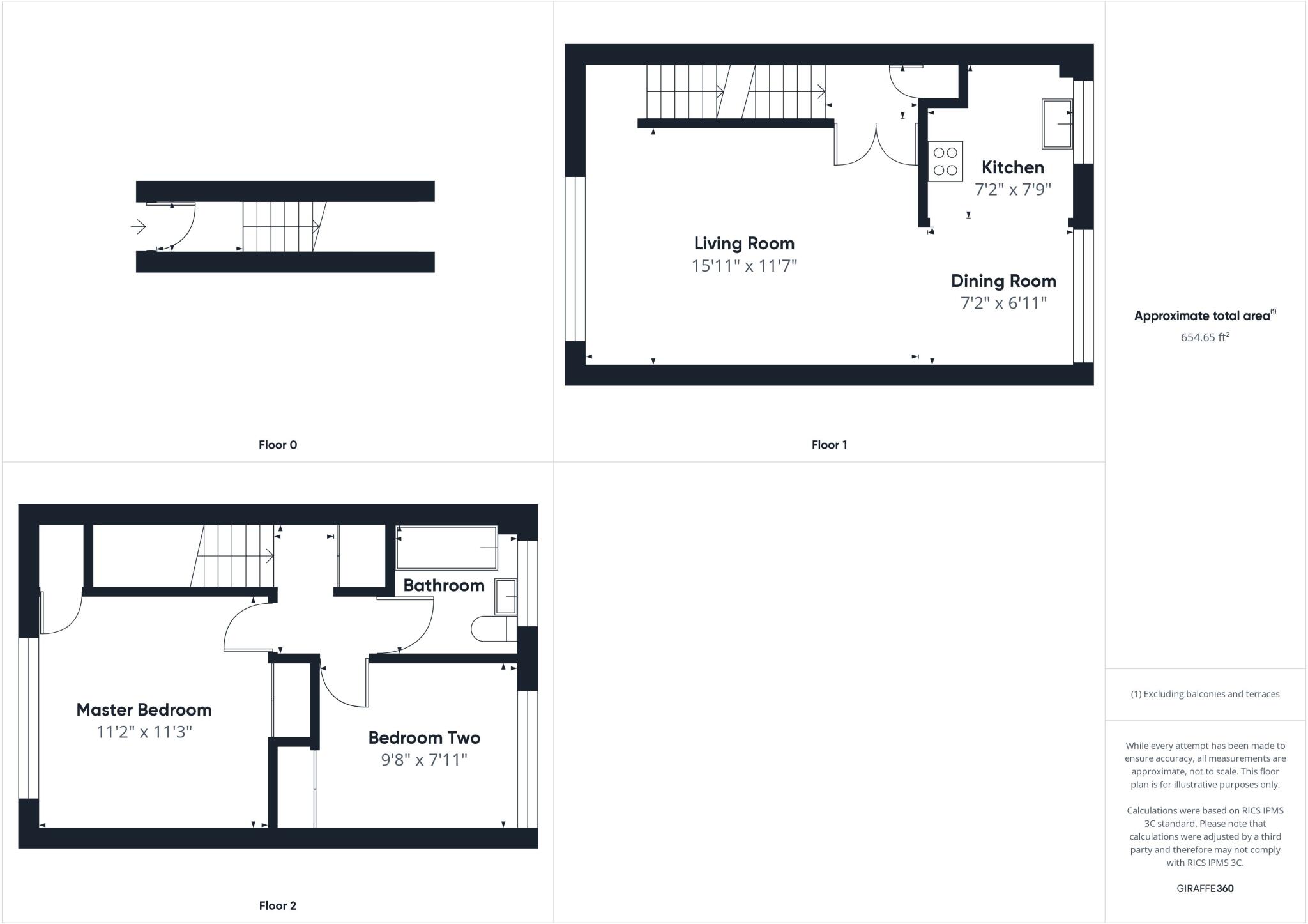
This maisonette is located in Reading, Berkshire, and is conveniently situated near several schools, including All Saints Church of England Aided Infant School and All Saints Junior School, both within a short distance. The property benefits from its proximity to Reading West train station, providing easy access to transportation links. While the property itself is presented in a clean and well-maintained condition, the images suggest a lack of outdoor space. The list price of £260,000 seems reasonable considering the average price of similar properties in the area, although more information on the square footage of comparable properties would be beneficial for a more precise evaluation. The property is a maisonette with two bedrooms and one bathroom. The lack of plot size information makes it difficult to evaluate the land aspect. Considering the property’s location, condition, and proximity to amenities, the price appears to be in line with market expectations.
Therefore, we give this property 5 / 10. *Disclaimer: This is our option and does constitute a recommendation or financial advice. Do your own research. *
- Price
- 7
- Condition
- 7
- Location
- 8
- Land
- 1
- Bedrooms
- 2
- Bathrooms
- 1
- Sqft (est)
- 654.65
The heatmap indicates the level of crime in the area. The color of the heatmap indicates the crime severity and recency.
Metrics Year-on-Year
- Average area value
- 382,304.00 £Increased by 10.41 %
- Est sale value
- 278,226.25 £Increased by 23.91 %
- Average area rental value
- 1,370.00 £/moIncreased by 3.55 %
- Est letting value
- 654.65 £/moUnchanged by 0.00 %
- Est rental Yield
- 4.30 %Decreased by 6.32 %
- Crime Rate
- 6.00 %Unchanged by 0.00 %
Agent Activity
Prospect Estate Agency created the listing.
Nearby Schools
| Name | Type | Ofsted | Distance |
|---|---|---|---|
| All Saints Church Of England Aided Infant School | Voluntary Aided School | Good | 0.31 KM |
| All Saints Junior School | Free Schools | Outstanding | 0.31 KM |
| Oxford Road Community School | Community School | Good | 0.51 KM |
| St Mary & All Saints Church Of England Primary School | Academy Sponsor Led | 0.77 KM | |
| Civitas Academy | Academy Sponsor Led | Good | 0.87 KM |
Images
Nearby Streets
| Name | Average Price | Average Sqft | Distance |
|---|---|---|---|
| Bath Road | £ 0 | 0 | 0.00 KM |
| Stanley Grove | £ 0 | 0 | 0.00 KM |
| Jesse Terrace | £ 0 | 0 | 0.00 KM |
| Phoenix Place | £ 165,000 | 0 | 0.00 KM |
| Marshall Close | £ 0 | 0 | 0.00 KM |
Nearby Transport
| Name | NLC | TLC | Distance |
|---|---|---|---|
| Reading West | 3160 | RDW | 0.68 KM |
| Reading | 3149 | RDG | 1.74 KM |
| Tilehurst | 3154 | TLH | 5.38 KM |
| Earley | 5694 | EAR | 7.57 KM |
Nearby Listings
| Address | Price | Type | Score | Distance |
|---|---|---|---|---|
| Lima Court, Bath Road, Reading, Berkshire, RG1 | £ 260,000 | BUY | 5 / 10 | 0.00 KM |
| Bath Road, Reading | £ 269,950 | BUY | 7 / 10 | 0.04 KM |
| Bath Road, Reading, Berkshire, RG1 | £ 275,000 | BUY | 6 / 10 | 0.04 KM |
| Tetbury Court, Prospect Street, Reading | £ 200,000 | BUY | 6 / 10 | 0.12 KM |
| Prospect Street, Reading, Berkshire | £ 200,000 | BUY | 6 / 10 | 0.12 KM |
Nearby Properties
| Address | Price | Distance |
|---|---|---|
| 3 Tilehurst Road | £ 268,000 | 0.08 KM |
| 1a Tilehurst Road | £ 420,000 | 0.10 KM |
| 8 Tilehurst Road | £ 190,000 | 0.13 KM |
| 6 Tilehurst Road | £ 340,000 | 0.13 KM |
| 10 Tilehurst Road | £ 262,500 | 0.13 KM |