Pingle Close, Gainsborough
Martin & Co logo

Pingle Close, Gainsborough

By Martin & Co

£ 125,000

Reviews

3 out of 5 stars

Martin & Co says ..

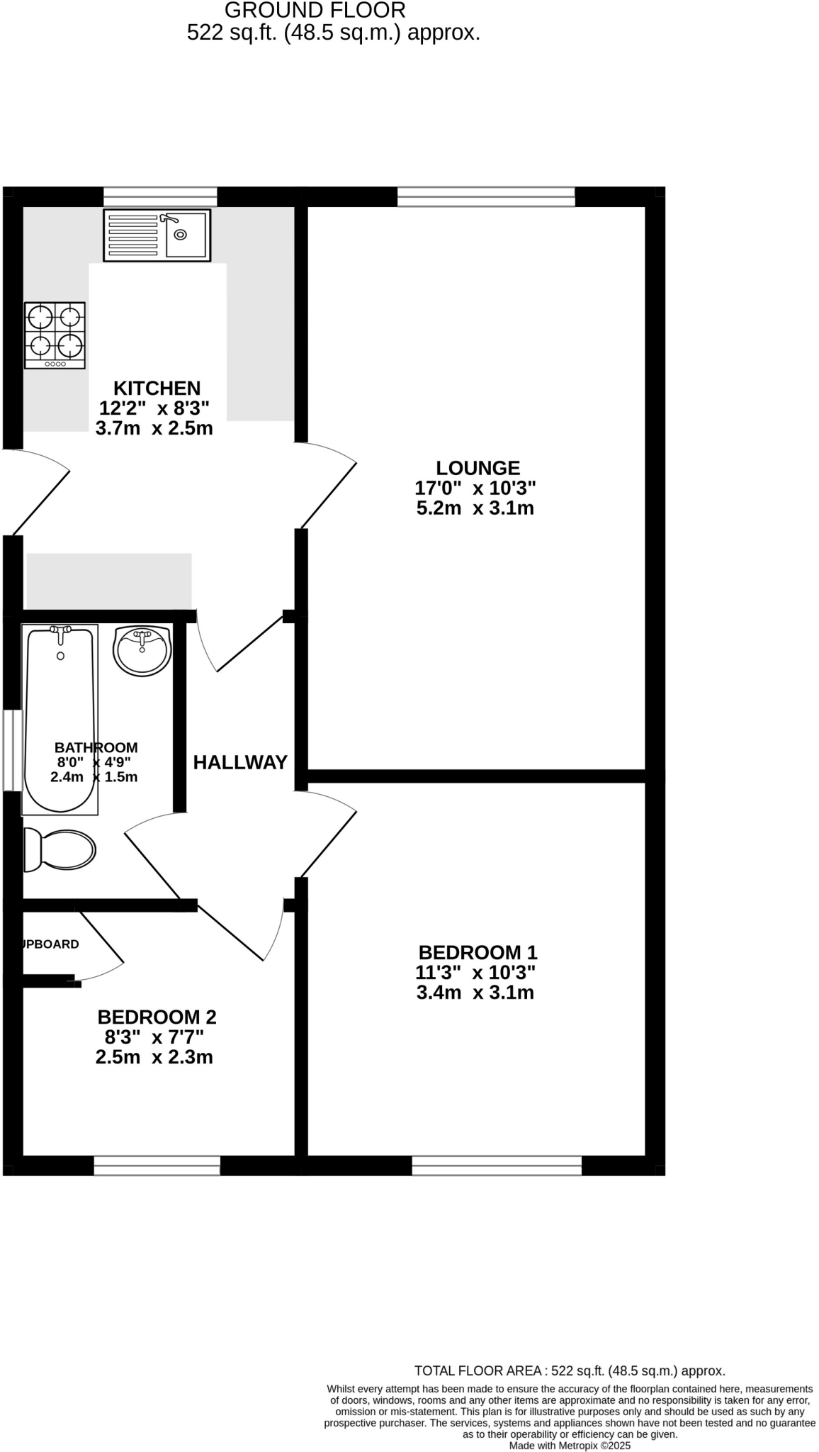
This charming semi-detached bungalow offers a fantastic opportunity to create your perfect home. Featuring 2 well-proportioned bedrooms, a spacious lounge, and a functional kitchen, this property is ideal for those looking for a cozy, single-level living space. The bungalow also boasts a family b...

Property Oracle says ..

This property is a 2-bedroom, 1-bathroom bungalow located in Gainsborough, Lincolnshire. The property benefits from being close to Gainsborough Central train station (0.55km) and several schools including Warren Wood Academy (0.11km), which has a good Ofsted rating. The property itself appears to be in reasonable condition, though some updating may be desirable. The kitchen and bathroom show their age, and the carpets in the bedrooms appear dated. The property includes a garden, which is a positive feature. Pricing in the area varies considerably, with similar properties on Pingle Close selling for between £102,500 and £114,950. While the list price of £125,000 is slightly higher than some recent sales, it is not unreasonable given the location and inclusion of a garden. However, potential buyers should factor in the cost of updating the kitchen and bathroom.

Therefore, we give this property 7 / 10. *Disclaimer: This is our option and does constitute a recommendation or financial advice. Do your own research. *

Price
7
Condition
6
Location
8
Land
7
Bedrooms
2
Bathrooms
1
Sqft (est)
497.00
Lot (est)
522.00

The heatmap indicates the level of crime in the area. The color of the heatmap indicates the crime severity and recency.

Metrics Year-on-Year

Average area value
302,567.00 £
Increased by 9.67 %
from 275,886.00 £
Est sale value
152,579.00 £
Decreased by 27.76 %
from 211,225.00 £
Average area rental value
1,147.00 £/mo
Increased by 17.88 %
from 973.00 £/mo
Est letting value
497.00 £/mo
Unchanged by 0.00 %
from 497.00 £/mo
Est rental Yield
4.55 %
Increased by 7.57 %
from 4.23 %
Crime Rate
4.00 %
Unchanged by 0.00 %
from 4.00 %

Agent Activity

  • Martin & Co marked this listing as sold.

  • Martin & Co created the listing.

Nearby Schools

NameTypeOfstedDistance
Warren Wood - A Specialist AcademyAcademy Special ConverterGood0.11 KM
The Gainsborough Hillcrest Early Years AcademyAcademy ConverterOutstanding0.59 KM
White'S Wood AcademyAcademy ConverterRequires improvement0.66 KM
The Gainsborough Charles Baines Community Primary SchoolCommunity SchoolGood0.88 KM
Handel House Preparatory SchoolOther Independent School1.04 KM

Images

1f23a718-WhatsApp... 07a21244-WhatsApp... 87cec15f-WhatsApp... 24a3a5ba-WhatsApp... a93944eb-WhatsApp... c68c027f-WhatsApp... 9c9025e4-WhatsApp... e41a8165-WhatsApp... 02bd5b1a-WhatsApp... a695e981-WhatsApp... 0122731d-WhatsApp... e23a77a2-WhatsApp... 1a2e0efe-WhatsApp... 616ba9a4-WhatsApp...

Nearby Streets

NameAverage PriceAverage SqftDistance
Pingle Hill £ 000.00 KM
Springfield Close £ 115,00000.00 KM
The Walk £ 000.00 KM
Cox's Hill £ 000.00 KM
Alfie Williams Way £ 000.00 KM

Nearby Transport

NameNLCTLCDistance
Gainsborough Central6465GNB0.55 KM
Gainsborough Lea Road6424GBL1.40 KM

Nearby Listings

AddressPriceTypeScoreDistance
Pingle Close, Gainsborough, DN21 £ 130,000BUY7 / 100.00 KM
Pingle Close, Gainsborough £ 125,000BUY7 / 100.00 KM
George Street, Gainsborough, Lincolnshire, DN21 £ 115,000BUY6 / 100.11 KM
Middlefield Lane, Gainsborough £ 210,000BUY7 / 100.27 KM
25 Claythorne Drive, Gainsborough £ 200,000BUY7 / 100.35 KM

Nearby Properties

AddressPriceDistance
25 Pingle Close £ 115,0000.00 KM
3 Pingle Close £ 105,0000.00 KM
42 Pingle Close £ 211,0000.00 KM
5 Pingle Close £ 94,5000.00 KM
36 Pingle Close £ 99,9500.00 KM