Rodney Road, Elephant and Castle, London, SE17
By Foxtons
£ 800,000
Reviews
3 out of 5 stars
Foxtons says ..
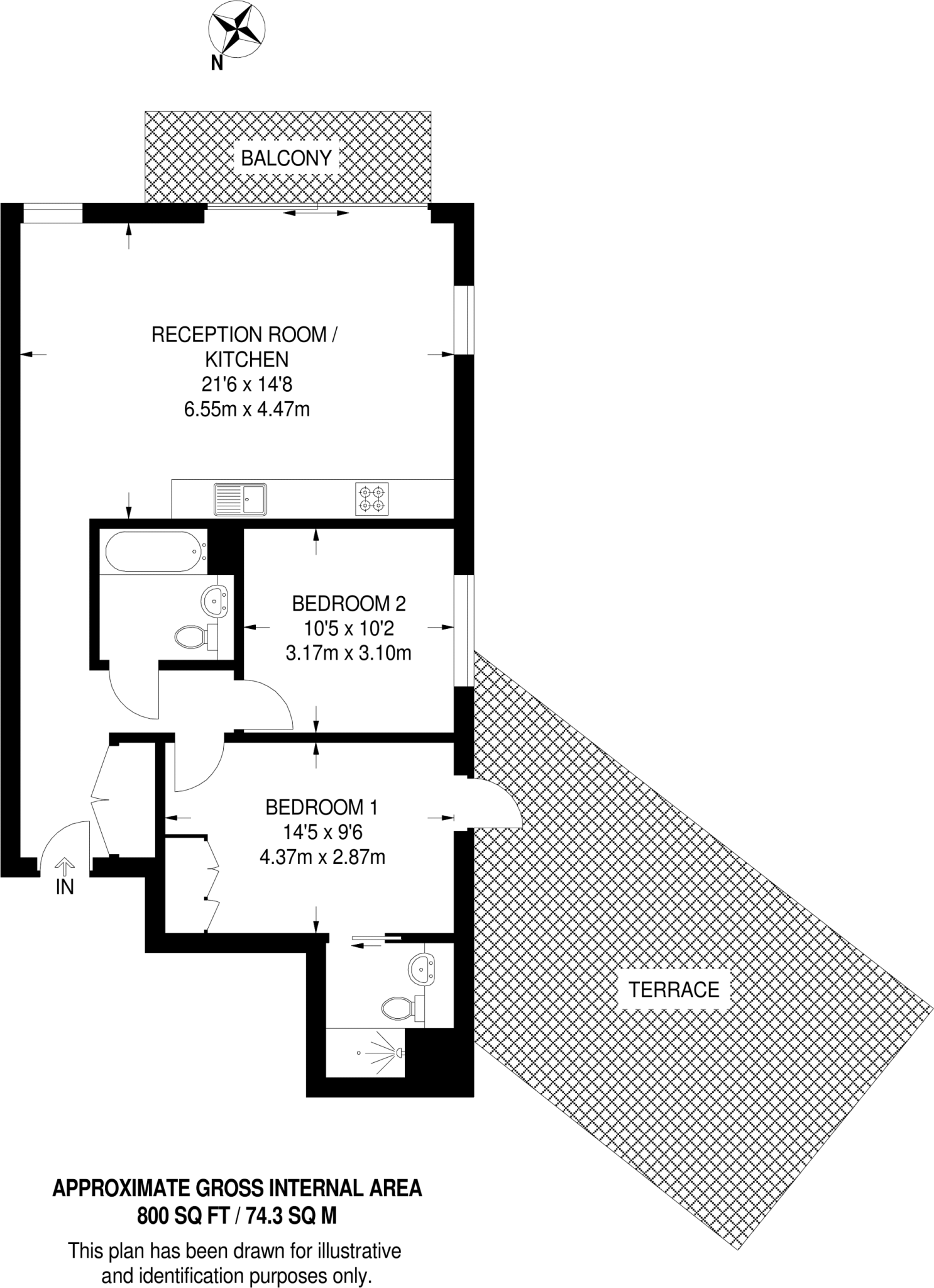
Set on the 2nd floor of this RIBA award winning modern development, this lovely 2 bedroom flat benefits from an open-plan kitchen, private balcony and an excellent location near to Elephant Park.
Property Oracle says ..
This property is a 2 bedroom, 2 bathroom flat located in Elephant and Castle, London. The flat is in excellent condition, with modern interiors and a private balcony. The location is convenient, with excellent transport links and several schools nearby. The list price is slightly above the average price per square foot for the area, but this is likely due to the property’s modern condition and desirable location. The lack of plot size is a notable factor.
Therefore, we give this property 6 / 10. *Disclaimer: This is our option and does constitute a recommendation or financial advice. Do your own research. *
- Price
- 7
- Condition
- 9
- Location
- 9
- Land
- 1
- Bedrooms
- 2
- Bathrooms
- 2
- Sqft (est)
- 800.00
The heatmap indicates the level of crime in the area. The color of the heatmap indicates the crime severity and recency.
Metrics Year-on-Year
- Average area value
- 386,667.00 £Decreased by 34.47 %
- Est sale value
- 594,400.00 £Decreased by 8.50 %
- Average area rental value
- 2,374.00 £/moDecreased by 5.42 %
- Est letting value
- 3,200.00 £/moIncreased by 33.33 %
- Est rental Yield
- 7.37 %Increased by 44.51 %
- Crime Rate
- 4.00 %Unchanged by 0.00 %
Agent Activity
Foxtons created the listing.
Nearby Schools
| Name | Type | Ofsted | Distance |
|---|---|---|---|
| Victory Primary School And Children'S Centre | Children's Centre | 0.22 KM | |
| Victory Primary School | Community School | Good | 0.22 KM |
| Robert Browning Primary School | Community School | Good | 0.38 KM |
| Ark Globe Academy | Academy Sponsor Led | Good | 0.41 KM |
| English Martyrs' Roman Catholic Primary School | Voluntary Aided School | Good | 0.42 KM |
Images
Nearby Streets
| Name | Average Price | Average Sqft | Distance |
|---|---|---|---|
| Content Street | £ 350,000 | 0 | 0.00 KM |
| Balfour Road | £ 0 | 0 | 0.00 KM |
| Eider Way | £ 541,238 | 0 | 0.00 KM |
| Browning Estate | £ 325,000 | 0 | 0.00 KM |
| Townley Street | £ 0 | 0 | 0.00 KM |
Nearby Transport
| Name | NLC | TLC | Distance |
|---|---|---|---|
| Elephant And Castle | 5246 | EPH | 0.87 KM |
| London Bridge | 5148 | LBG | 1.56 KM |
| Cannon Street | 5142 | CST | 2.17 KM |
| Waterloo East | 5158 | WAE | 2.38 KM |
| Fenchurch Street | 7490 | FST | 2.58 KM |
Nearby Listings
| Address | Price | Type | Score | Distance |
|---|---|---|---|---|
| Rodney Road, Elephant and Castle, London, SE17 | £ 800,000 | BUY | 6 / 10 | 0.00 KM |
| Trafalgar Place, Rodney Road, Elephant & Castle, London, SE17 | £ 750,000 | BUY | 7 / 10 | 0.02 KM |
| New Paragon Walk, Trafalgar Place, Elephant & Castle, London, SE17 | £ 525,000 | BUY | 7 / 10 | 0.06 KM |
| Rodney Road, Walworth, London, SE17 | £ 475,000 | BUY | 6 / 10 | 0.06 KM |
| New Paragon Walk, Elephant & Castle, SE17 | £ 350,000 | BUY | 7 / 10 | 0.07 KM |
Nearby Properties
| Address | Price | Distance |
|---|---|---|
| 93 Balfour Street | £ 450,000 | 0.08 KM |
| 89a Balfour Street | £ 192,000 | 0.08 KM |
| 89 Balfour Street | £ 152,000 | 0.08 KM |
| 15 Victory Place | £ 675,000 | 0.11 KM |
| 11 Victory Place | £ 862,500 | 0.11 KM |