Nicholls Tyreman says ..
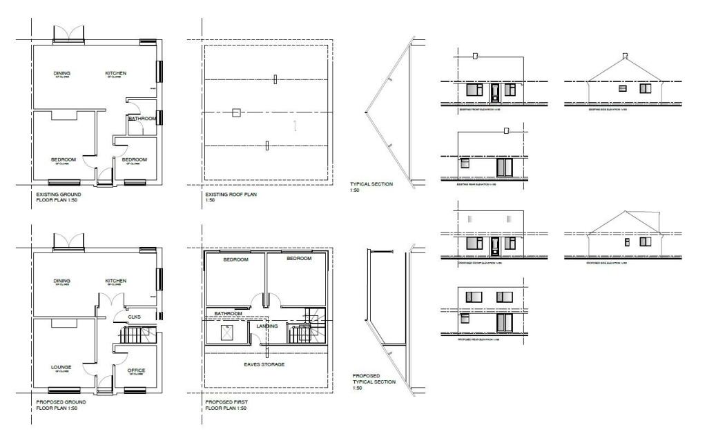
****No chain*** A two bedroom bungalow in a popular residential location close to local amenities. The property offers spacious, open plan living, with pleasant gardens and off street parking. The property benefits from gas central heating, double glazing and a recently installed n...
Property Oracle says ..
This two-bedroom bungalow in Harrogate, Bilton Grange, offers a comfortable and convenient living space. The property boasts a recently modernised kitchen and bathroom. Photos reveal a clean, well-maintained interior with a neutral décor. The property also benefits from a garden and what appears to be off-street parking, enhancing its appeal. The location is favorable, with nearby schools including St Joseph’s Catholic Primary and Harrogate Bilton Grange Primary School, both with a ‘Good’ Ofsted rating. Train stations, including Harrogate, are within reasonable distance. The list price seems to reflect the current market value in the area, considering similar properties for sale on St Johns Walk. However, prospective buyers should note that the size of the garden isn’t expansive, and the internal decor style may not appeal to all tastes. The property’s relatively small size (570.49 sqft) must also be considered. Overall, this is a suitable property for a first-time buyer or small family seeking a convenient and well-maintained home in a desirable location, however, more detailed information regarding the property’s plot size and potential future costs would be beneficial in fully assessing the long-term value.
Therefore, we give this property 6 / 10. *Disclaimer: This is our option and does constitute a recommendation or financial advice. Do your own research. *
- Price
- 7
- Condition
- 7
- Location
- 7
- Land
- 4
- Bedrooms
- 2
- Bathrooms
- 1
- Sqft (est)
- 570.49
The heatmap indicates the level of crime in the area. The color of the heatmap indicates the crime severity and recency.
Metrics Year-on-Year
- Average area value
- 285,000.00 £Increased by 4.56 %
- Est sale value
- 203,664.93 £Increased by 23.96 %
- Average area rental value
- 1,750.00 £/moIncreased by 71.07 %
- Est letting value
- 1,140.98 £/moIncreased by 100.00 %
- Est rental Yield
- 7.37 %Increased by 63.78 %
- Crime Rate
- 3.00 %Unchanged by 0.00 %
Agent Activity
Nicholls Tyreman created the listing.
Nearby Schools
| Name | Type | Ofsted | Distance |
|---|---|---|---|
| St Joseph'S Catholic Primary School, Harrogate, A Voluntary Academy | Academy Converter | Good | 0.49 KM |
| Harrogate, Bilton Grange Primary School | Academy Converter | Good | 0.53 KM |
| Coppice Valley Primary School | Academy Converter | 0.71 KM | |
| New Park Primary Academy | Academy Converter | Good | 0.85 KM |
| Richard Taylor Church Of England Primary School | Academy Converter | Good | 1.06 KM |
Images
Nearby Streets
| Name | Average Price | Average Sqft | Distance |
|---|---|---|---|
| Archie Street Rear | £ 0 | 0 | 0.00 KM |
| Mill Gate | £ 375,000 | 0 | 0.00 KM |
| Brooke Close | £ 460,000 | 0 | 0.00 KM |
| Eastfield Terrace | £ 0 | 0 | 0.00 KM |
| Meadow Rise | £ 0 | 0 | 0.00 KM |
Nearby Transport
| Name | NLC | TLC | Distance |
|---|---|---|---|
| Harrogate | 8213 | HGT | 1.85 KM |
| Hornbeam Park | 8212 | HBP | 3.67 KM |
| Starbeck | 8221 | SBE | 4.66 KM |
| Pannal | 8479 | PNL | 5.74 KM |
| Knaresborough | 8214 | KNA | 7.92 KM |
Nearby Listings
| Address | Price | Type | Score | Distance |
|---|---|---|---|---|
| St Johns Walk, Harrogate | £ 232,500 | BUY | 6 / 10 | 0.00 KM |
| St Johns Walk, Harrogate, HG1 | £ 225,000 | BUY | 6 / 10 | 0.05 KM |
| Hill Top Road, Harrogate | £ 400,000 | BUY | 8 / 10 | 0.09 KM |
| Hill Top Road, Harrogate, HG1 | £ 335,000 | BUY | 7 / 10 | 0.10 KM |
| St. Johns Way, Harrogate | £ 299,950 | BUY | 6 / 10 | 0.11 KM |
Nearby Properties
| Address | Price | Distance |
|---|---|---|
| 5 St Johns Walk | £ 170,000 | 0.06 KM |
| 8 St Johns Walk | £ 135,000 | 0.06 KM |
| 13 St Johns Walk | £ 125,000 | 0.06 KM |
| 12 St Johns Walk | £ 159,950 | 0.06 KM |
| 29 St Johns Walk | £ 213,000 | 0.06 KM |