Julian Marks says ..
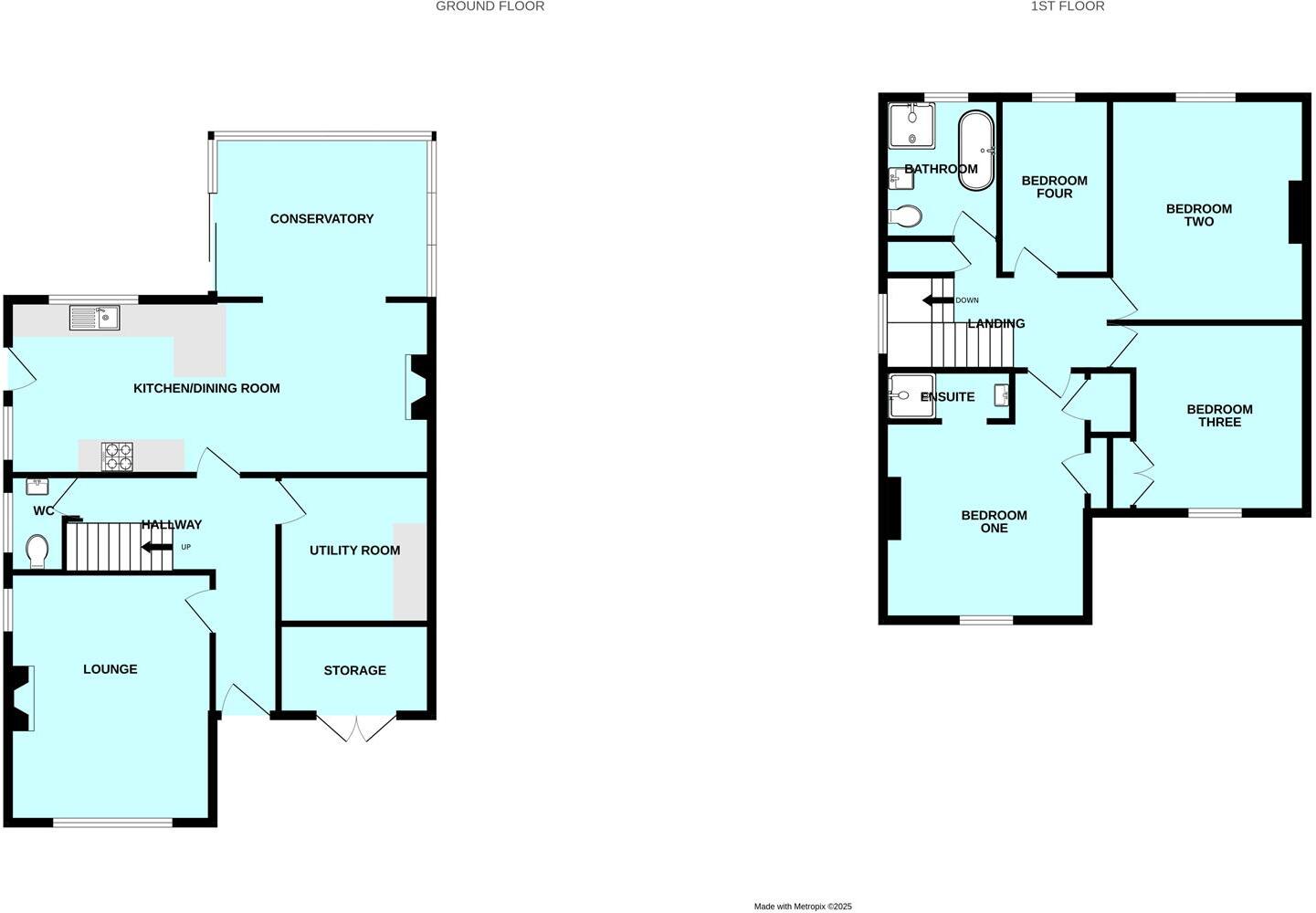
A lovely, extended semi-detached family home located on the edge of Crownhill on Great Berry Road. A welcoming entrance hall greets you as you walk-in with doors leading off to the cloakroom, sitting room, study/utility & the hub of the house the fantastic open-plan kitchen/diner that flows into ...
Property Oracle says ..
Therefore, we give this property 7 / 10. *Disclaimer: This is our option and does constitute a recommendation or financial advice. Do your own research. *
- Price
- 6
- Condition
- 8
- Location
- 7
- Land
- 7
- Bedrooms
- 4
- Bathrooms
- 2
- Sqft (est)
- 1,277.00
The heatmap indicates the level of crime in the area. The color of the heatmap indicates the crime severity and recency.
Metrics Year-on-Year
- Average area value
- 251,250.00 £Decreased by 14.94 %
- Est sale value
- 379,269.00 £Decreased by 1.33 %
- Average area rental value
- 1,138.00 £/moIncreased by 4.88 %
- Est letting value
- 1,277.00 £/moUnchanged by 0.00 %
- Est rental Yield
- 5.44 %Increased by 23.36 %
- Crime Rate
- 5.00 %Unchanged by 0.00 %
from 295,390.00 £
from 384,377.00 £
from 1,085.00 £/mo
from 1,277.00 £/mo
from 4.41 %
from 5.00 %
Agent Activity
Julian Marks created the listing.
Nearby Schools
| Name | Type | Ofsted | Distance |
|---|---|---|---|
| St Boniface'S Rc College | Academy Sponsor Led | Requires improvement | 0.35 KM |
| Widey Court Primary School | Academy Converter | Good | 0.50 KM |
| Manadon Vale Primary School | Academy Converter | Good | 0.54 KM |
| Courtlands School | Academy Special Converter | Good | 0.66 KM |
| Eggbuckland Community College | Academy Converter | Requires improvement | 1.20 KM |
Images
Nearby Streets
| Name | Average Price | Average Sqft | Distance |
|---|---|---|---|
| St Joseph's Close | £ 360,000 | 0 | 0.00 KM |
| Fort Austin Avenue | £ 0 | 0 | 0.00 KM |
| Leighton Road | £ 0 | 0 | 0.00 KM |
| Tailyour Road | £ 200,000 | 0 | 0.00 KM |
| Grosvenor Road | £ 310,000 | 0 | 0.00 KM |
Nearby Transport
| Name | NLC | TLC | Distance |
|---|---|---|---|
| Plymouth | 3580 | PLY | 3.24 KM |
| Devonport | 3579 | DPT | 5.12 KM |
| Dockyard (Devonport) | 3588 | DOC | 5.40 KM |
| Keyham | 3571 | KEY | 5.44 KM |
| St Budeaux Ferry Road | 3590 | SBF | 5.99 KM |
Nearby Listings
| Address | Price | Type | Score | Distance |
|---|---|---|---|---|
| Crownhill, Plymouth | £ 425,000 | BUY | 7 / 10 | 0.00 KM |
| Great Berry Road, Plymouth | £ 499,950 | BUY | 7 / 10 | 0.03 KM |
| Moreton Avenue, Plymouth, Devon, PL6 5AZ | £ 335,000 | BUY | 6 / 10 | 0.12 KM |
| Cross Park Way, Plymouth | £ 425,000 | BUY | 7 / 10 | 0.15 KM |
| Cross Park Way, Plymouth | £ 415,000 | BUY | 6 / 10 | 0.15 KM |
Nearby Properties
| Address | Price | Distance |
|---|---|---|
| 4 Stanbury Avenue | £ 238,000 | 0.06 KM |
| 14 Stanbury Avenue | £ 204,000 | 0.06 KM |
| 6 Stanbury Avenue | £ 335,000 | 0.06 KM |
| 16 Stanbury Avenue | £ 205,000 | 0.06 KM |
| 3 Stanbury Avenue | £ 245,000 | 0.06 KM |