MA
Newport Road, Aldershot, Hampshire, GU12
By Mackenzie Smith
£ 200,000
Reviews
2 out of 5 stars
Mackenzie Smith says ..
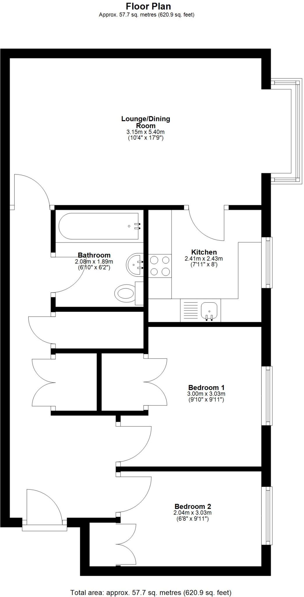
Freshly decorated, with new carpets, a recently updated bathroom and a good-sized lounge/diner, this well-positioned home offers ready-to-move-into living with no onward chain.
Property Oracle says ..
Therefore, we give this property 5 / 10. *Disclaimer: This is our option and does constitute a recommendation or financial advice. Do your own research. *
- Price
- 7
- Condition
- 6
- Location
- 7
- Land
- 3
- Bedrooms
- 2
- Bathrooms
- 1
- Sqft (est)
- 621.08
The heatmap indicates the level of crime in the area. The color of the heatmap indicates the crime severity and recency.
Metrics Year-on-Year
- Average area value
- 250,000.00 £Increased by 29.42 %
- Est sale value
- 185,702.92 £Increased by 32.89 %
- Average area rental value
- 833.00 £/moDecreased by 23.08 %
- Est letting value
- 0.00 £/moDecreased by 100.00 %
- Est rental Yield
- 4.00 %Decreased by 40.56 %
- Crime Rate
- 16.00 %Unchanged by 0.00 %
from 193,175.00 £
from 139,743.00 £
from 1,083.00 £/mo
from 621.08 £/mo
from 6.73 %
from 16.00 %
Agent Activity
Mackenzie Smith created the listing.
Nearby Schools
| Name | Type | Ofsted | Distance |
|---|---|---|---|
| St Michael'S Church Of England Controlled Junior School | Voluntary Controlled School | Requires improvement | 0.63 KM |
| Alderwood School | Community School | Good | 0.84 KM |
| Maple Vue Children'S Centre | Children's Centre | 0.84 KM | |
| St Michael'S Church Of England Controlled Infant School | Voluntary Controlled School | Outstanding | 0.88 KM |
| Park Primary School | Community School | Good | 0.92 KM |
Images
Nearby Streets
| Name | Average Price | Average Sqft | Distance |
|---|---|---|---|
| Newport Road | £ 307,778 | 0 | 0.00 KM |
| Hop Kiln Villas | £ 0 | 0 | 0.00 KM |
| Mount Pleasant Road | £ 315,000 | 0 | 0.00 KM |
| Churchill Avenue | £ 566,667 | 0 | 0.00 KM |
| Needhams Place | £ 0 | 0 | 0.00 KM |
Nearby Transport
| Name | NLC | TLC | Distance |
|---|---|---|---|
| Aldershot | 5623 | AHT | 1.09 KM |
| North Camp | 5636 | NCM | 4.12 KM |
| Ash | 5641 | ASH | 4.19 KM |
| Ash Vale | 5547 | AHV | 4.46 KM |
| Farnham | 5545 | FNH | 5.88 KM |
Nearby Listings
| Address | Price | Type | Score | Distance |
|---|---|---|---|---|
| Newport Road, Aldershot, Hampshire, GU12 | £ 200,000 | BUY | 5 / 10 | 0.00 KM |
| Newport Road, Aldershot, Hampshire, GU12 | £ 160,000 | BUY | 5 / 10 | 0.03 KM |
| Newport Road, Aldershot, GU12 | £ 165,000 | BUY | 6 / 10 | 0.11 KM |
| Crossways, Aldershot, Hampshire, GU12 | £ 375,000 | BUY | 5 / 10 | 0.12 KM |
| Newport Road, Aldershot, Hampshire, GU12 | £ 385,000 | BUY | 6 / 10 | 0.12 KM |
Nearby Properties
| Address | Price | Distance |
|---|---|---|
| 47 Newport Road | £ 255,000 | 0.03 KM |
| 45 Newport Road | £ 236,000 | 0.03 KM |
| 14 Wolfe Road | £ 309,950 | 0.08 KM |
| 18 Wolfe Road | £ 217,000 | 0.08 KM |
| 22 Wolfe Road | £ 236,500 | 0.08 KM |