Chancellors says ..
Three double bedroom, mid terraced with two bathrooms and off street parking. Well presented throughout and offered to the market with no chain.
Property Oracle says ..
Therefore, we give this property 6 / 10. *Disclaimer: This is our option and does constitute a recommendation or financial advice. Do your own research. *
- Price
- 6
- Condition
- 8
- Location
- 7
- Land
- 6
- Bedrooms
- 3
- Bathrooms
- 2
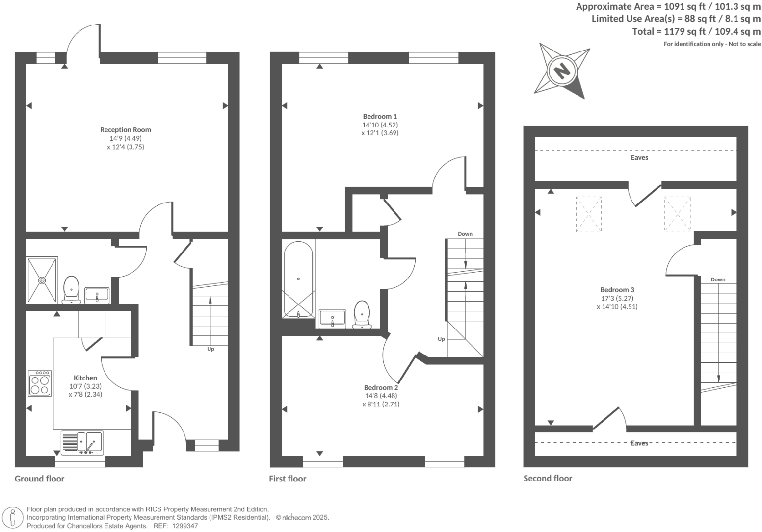
- Sqft (est)
- 1,179.00
The heatmap indicates the level of crime in the area. The color of the heatmap indicates the crime severity and recency.
Metrics Year-on-Year
- Average area value
- 266,250.00 £Decreased by 18.69 %
- Est sale value
- 331,299.00 £Increased by 0.36 %
- Average area rental value
- 1,013.00 £/moIncreased by 3.58 %
- Est letting value
- 1,179.00 £/mo
- Est rental Yield
- 4.57 %Increased by 27.65 %
- Crime Rate
- 8.00 %Unchanged by 0.00 %
from 327,468.00 £
from 330,120.00 £
from 978.00 £/mo
from 0.00 £/mo
from 3.58 %
from 8.00 %
Agent Activity
Chancellors marked this listing as sold.
Chancellors created the listing.
Nearby Schools
| Name | Type | Ofsted | Distance |
|---|---|---|---|
| Lynch Hill School Primary Academy | Academy Converter | 0.41 KM | |
| Claycots School | Community School | Good | 1.29 KM |
| Monksfield Way Children'S Centre | Children's Centre | 1.33 KM | |
| Beechwood School | Academy Converter | Requires improvement | 1.57 KM |
| Haybrook College | Academy Alternative Provision Converter | Good | 1.58 KM |
Images
Nearby Streets
| Name | Average Price | Average Sqft | Distance |
|---|---|---|---|
| The Cedars | £ 0 | 0 | 0.00 KM |
| Ravensworth Road | £ 190,000 | 0 | 0.00 KM |
| Melford Road | £ 404,975 | 0 | 0.00 KM |
| Whittaker Road | £ 0 | 0 | 0.00 KM |
| Weston Road | £ 0 | 0 | 0.00 KM |
Nearby Transport
| Name | NLC | TLC | Distance |
|---|---|---|---|
| Burnham | 3176 | BNM | 1.84 KM |
| Taplow | 3151 | TAP | 5.23 KM |
| Slough | 3172 | SLO | 5.61 KM |
| Windsor And Eton Riverside | 5672 | WNR | 6.51 KM |
| Windsor And Eton Central | 3175 | WNC | 6.55 KM |
Nearby Listings
| Address | Price | Type | Score | Distance |
|---|---|---|---|---|
| Slough, Berkshire, SL2 | £ 425,000 | BUY | 6 / 10 | 0.00 KM |
| Calbroke Road, Slough | £ 390,000 | BUY | 6 / 10 | 0.04 KM |
| Rokesby Road, Slough | £ 414,950 | BUY | 6 / 10 | 0.13 KM |
| The Beeches | £ 210,000 | BUY | 7 / 10 | 0.13 KM |
| Rokesby Road, Slough, SL2 | £ 255,000 | BUY | 6 / 10 | 0.14 KM |
Nearby Properties
| Address | Price | Distance |
|---|---|---|
| 83 Calbroke Road | £ 345,000 | 0.04 KM |
| 97 Calbroke Road | £ 205,000 | 0.04 KM |
| 89 Calbroke Road | £ 304,000 | 0.04 KM |
| 81 Calbroke Road | £ 382,500 | 0.04 KM |
| 82 Calbroke Road | £ 173,500 | 0.06 KM |