Barnard Marcus says ..
Nestled on the sought-after The Limes Avenue in N11, this charming three-bedroom semi-detached house offers the perfect blend of family-friendly living and modern comfort.
Property Oracle says ..
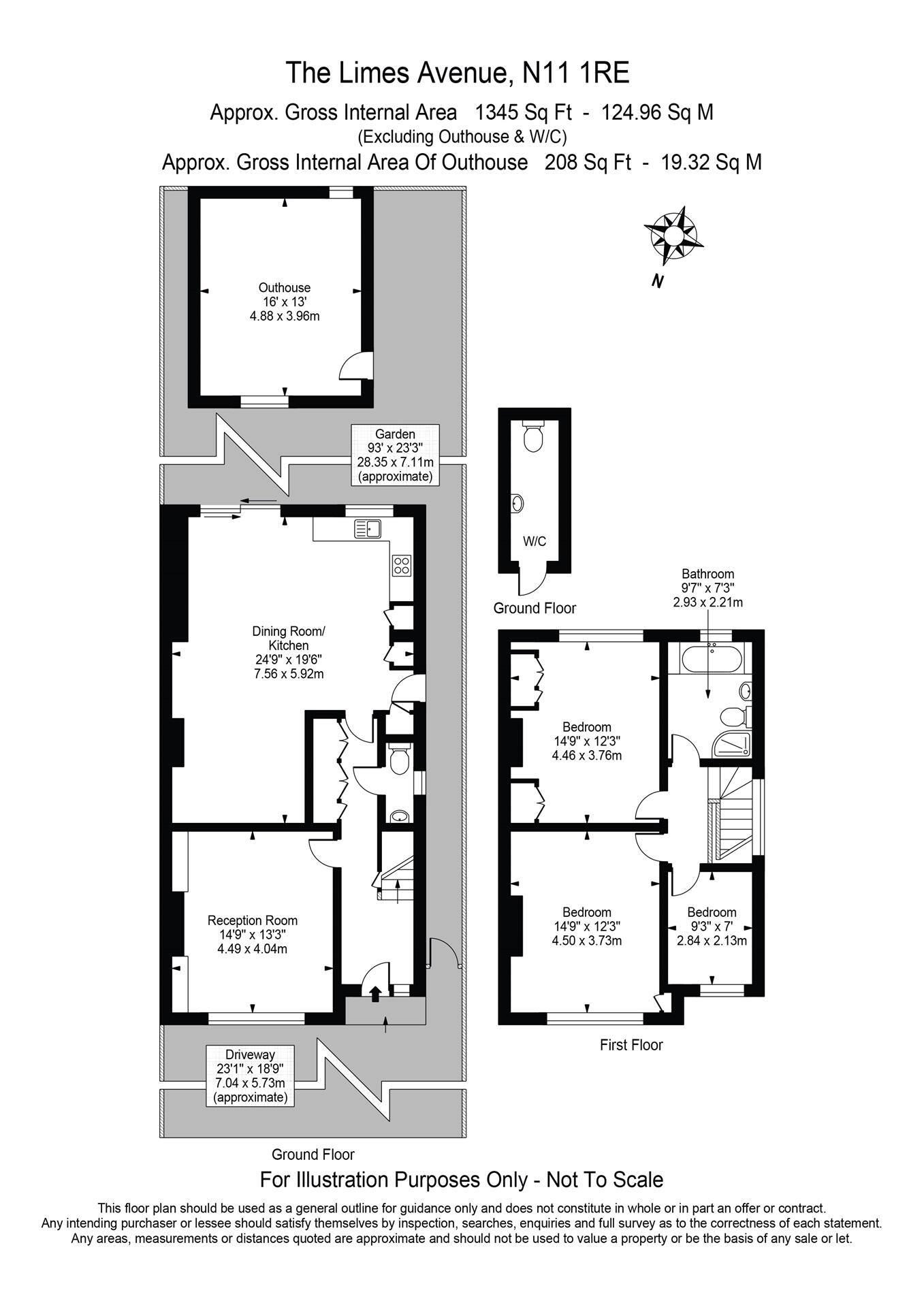
This is a three-bedroom semi-detached house located on The Limes Avenue in Bowes, London. The property offers 1,345 sqft of living space and includes a garden. It is situated in a convenient location, close to schools and transportation. While the property is generally in good condition, some areas could benefit from modernisation. The asking price of £800,000 appears slightly above the average for the area, considering the condition of the property. Overall, this property presents a good opportunity for buyers looking for a family home in a well-connected location, with the potential to add value through renovations.
Therefore, we give this property 6 / 10. *Disclaimer: This is our option and does constitute a recommendation or financial advice. Do your own research. *
- Price
- 6
- Condition
- 6
- Location
- 7
- Land
- 7
- Bedrooms
- 3
- Bathrooms
- 1
- Sqft (est)
- 1,345.00
The heatmap indicates the level of crime in the area. The color of the heatmap indicates the crime severity and recency.
Metrics Year-on-Year
- Average area value
- 673,889.00 £Increased by 20.09 %
- Est sale value
- 687,295.00 £Decreased by 7.26 %
- Average area rental value
- 1,622.00 £/moDecreased by 15.78 %
- Est letting value
- 1,345.00 £/moUnchanged by 0.00 %
- Est rental Yield
- 2.89 %Decreased by 29.85 %
- Crime Rate
- 14.00 %Unchanged by 0.00 %
Agent Activity
Barnard Marcus created the listing.
Nearby Schools
| Name | Type | Ofsted | Distance |
|---|---|---|---|
| Bowes And Garfield Children'S Centre | Children's Centre | 0.30 KM | |
| Our Lady Of Lourdes Catholic Primary School | Voluntary Aided School | Good | 0.36 KM |
| Garfield Primary School | Community School | Good | 0.38 KM |
| St Paul'S Cofe Primary School N11 | Voluntary Aided School | Good | 0.54 KM |
| Focus 1St Academy | Other Independent School | Good | 0.61 KM |
Images
Nearby Streets
| Name | Average Price | Average Sqft | Distance |
|---|---|---|---|
| Cross Road | £ 0 | 0 | 0.00 KM |
| Regal Drive | £ 0 | 0 | 0.00 KM |
| Beaconsfield Close | £ 0 | 0 | 0.00 KM |
| Alexandra Road | £ 0 | 0 | 0.00 KM |
| Chaucer Close | £ 678,333 | 0 | 0.00 KM |
Nearby Transport
| Name | NLC | TLC | Distance |
|---|---|---|---|
| New Southgate | 6019 | NSG | 0.42 KM |
| Bowes Park | 6027 | BOP | 2.28 KM |
| Alexandra Palace | 6025 | AAP | 2.87 KM |
| Palmers Green | 6021 | PAL | 3.23 KM |
| Oakleigh Park | 6020 | OKL | 3.87 KM |
Nearby Listings
| Address | Price | Type | Score | Distance |
|---|---|---|---|---|
| The Limes Avenue, London | £ 800,000 | BUY | 6 / 10 | 0.00 KM |
| THE LIMES AVENUE, LONDON, N11 1RS | £ 300,000 | BUY | 6 / 10 | 0.09 KM |
| High Road, London, N11 | £ 400,000 | BUY | 5 / 10 | 0.11 KM |
| Bowes Road, London | £ 400,000 | BUY | 5 / 10 | 0.15 KM |
| Woodland Road, New Southgate, Southgate, N11 | £ 400,000 | BUY | Unknown | 0.17 KM |
Nearby Properties
| Address | Price | Distance |
|---|---|---|
| 16c The Limes Avenue | £ 185,000 | 0.05 KM |
| 14 The Limes Avenue | £ 250,000 | 0.05 KM |
| 12 The Limes Avenue | £ 125,000 | 0.05 KM |
| 16b The Limes Avenue | £ 180,000 | 0.05 KM |
| 6c The Limes Avenue | £ 117,500 | 0.05 KM |