Ember Farm Avenue, East Molesey, KT8
By Curchods Estate Agents
£ 1,375,000
Reviews
3 out of 5 stars
Curchods Estate Agents says ..
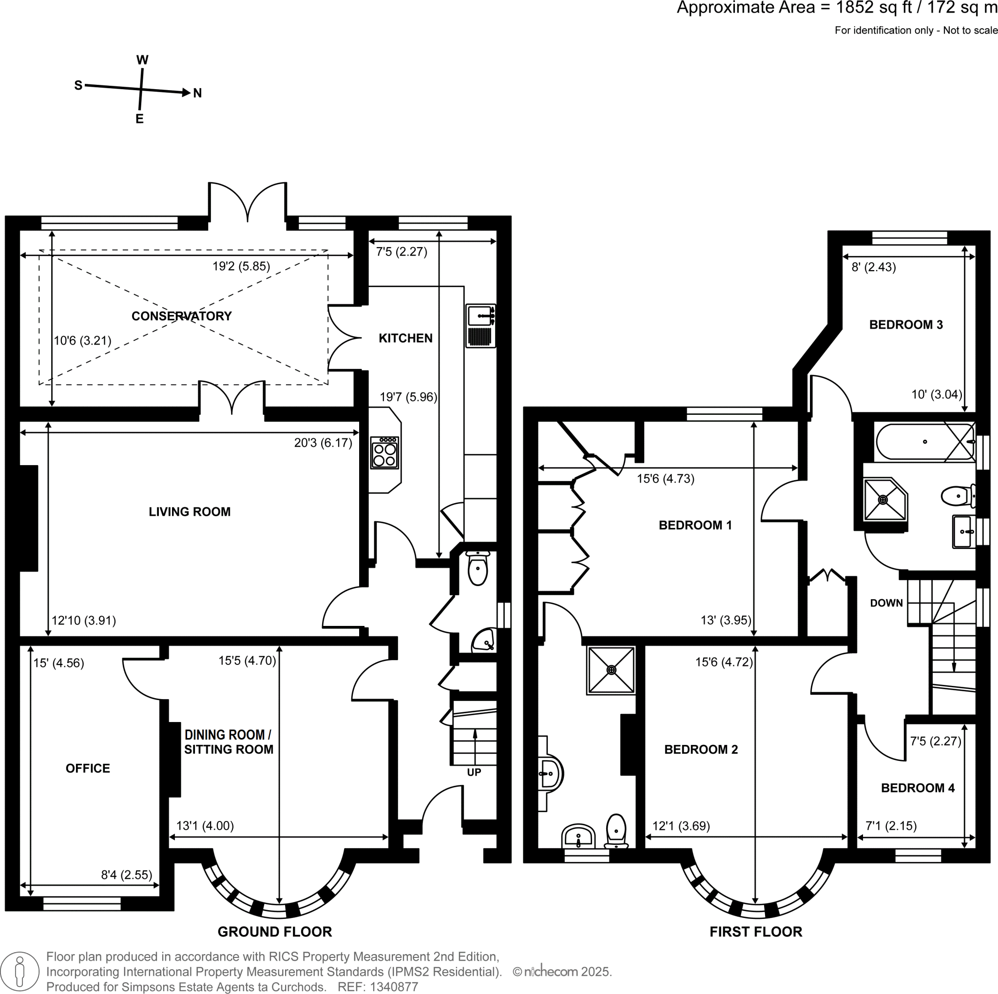
Set within a sought-after cul-de-sac and just shy of 2,000 sq ft, this beautifully presented four-bedroom, two-bathroom detached house offers versatile living in a prime location close to Hampton Court Palace, Thames Ditton Station, and an excellent selection of schools. The property o...
Property Oracle says ..
This is a detached property located on Ember Farm Avenue in East Molesey, Surrey. It features 4 bedrooms and 2 bathrooms. The property is listed for £1,375,000 by Curchods Estate Agents. The house is located in a good location, with nearby schools and transportation links. The property appears to be in good condition and has a large, well-maintained garden. The price is higher than the average for the area, but this may be justified by the property’s size, condition, and desirable location. The property includes a study, garage and fireplace.
Therefore, we give this property 7 / 10. *Disclaimer: This is our option and does constitute a recommendation or financial advice. Do your own research. *
- Price
- 6
- Condition
- 8
- Location
- 8
- Land
- 9
- Bedrooms
- 4
- Bathrooms
- 2
The heatmap indicates the level of crime in the area. The color of the heatmap indicates the crime severity and recency.
Metrics Year-on-Year
- Average area value
- 781,990.00 £Decreased by 16.87 %
- Average area rental value
- 2,910.00 £/moIncreased by 3.34 %
- Est rental Yield
- 4.47 %Increased by 24.51 %
- Crime Rate
- 4.00 %Unchanged by 0.00 %
Agent Activity
Curchods Estate Agents created the listing.
Nearby Schools
| Name | Type | Ofsted | Distance |
|---|---|---|---|
| The Orchard Infant School | Foundation School | Outstanding | 0.60 KM |
| St Paul'S Catholic Primary School, Thames Ditton | Voluntary Aided School | Good | 0.76 KM |
| Esher Sixth Form College | Academy 16-19 Converter | Outstanding | 1.08 KM |
| St Lawrence Cofe Aided Junior School, East Molesey | Voluntary Aided School | Good | 1.16 KM |
| Weston Green Preparatory School | Other Independent School | 1.28 KM |
Images
Nearby Streets
| Name | Average Price | Average Sqft | Distance |
|---|---|---|---|
| Winston Close | £ 675,000 | 0 | 0.00 KM |
| School Road | £ 573,429 | 0 | 0.00 KM |
| Cedar Close | £ 1,195,000 | 0 | 0.00 KM |
| Grove Road | £ 1,087,500 | 0 | 0.00 KM |
| Cedar Road | £ 850,000 | 0 | 0.00 KM |
Nearby Transport
| Name | NLC | TLC | Distance |
|---|---|---|---|
| Hampton Court | 5561 | HMC | 1.33 KM |
| Thames Ditton | 5610 | THD | 1.48 KM |
| Esher | 5558 | ESH | 1.61 KM |
| Hinchley Wood | 5591 | HYW | 2.46 KM |
| Hampton | 5560 | HMP | 3.32 KM |
Nearby Listings
| Address | Price | Type | Score | Distance |
|---|---|---|---|---|
| Ember Farm Avenue, East Molesey, KT8 | £ 1,375,000 | BUY | 7 / 10 | 0.00 KM |
| Ember Farm Way, East Molesey | £ 950,000 | BUY | 5 / 10 | 0.12 KM |
| Orchard Farm Avenue, East Molesey, KT8 | £ 1,000,000 | BUY | 7 / 10 | 0.18 KM |
| Orchard Farm Avenue, East Molesey, Surrey, KT8 | £ 1,000,000 | BUY | 7 / 10 | 0.18 KM |
| Esher Road, East Molesey, KT8 | £ 1,100,000 | BUY | Unknown | 0.26 KM |
Nearby Properties
| Address | Price | Distance |
|---|---|---|
| 18 Ember Farm Avenue | £ 893,000 | 0.02 KM |
| 4 Ember Farm Avenue | £ 835,000 | 0.02 KM |
| 6 Ember Farm Avenue | £ 1,065,000 | 0.02 KM |
| 5 Ember Farm Avenue | £ 1,100,000 | 0.02 KM |
| 8 Ember Farm Avenue | £ 120,000 | 0.02 KM |