Blacksmith's Cottage, Maltkiln Lane, Bispham Green L40 3SQ
By Maria B Evans Estate Agents
£ 375,000
Reviews
3 out of 5 stars
Maria B Evans Estate Agents says ..
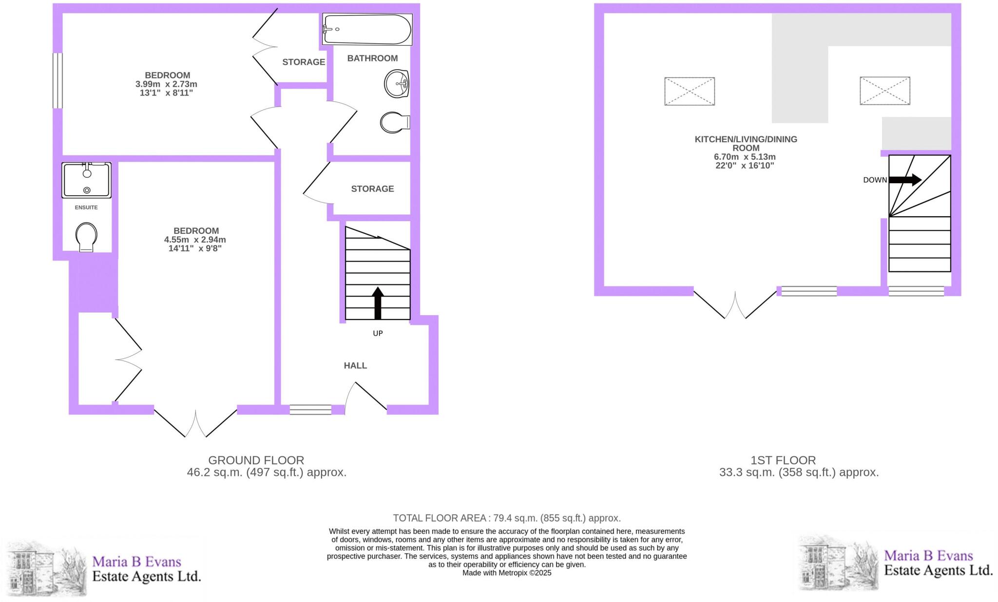
This beautifully crafted cottage offers a stylish blend of rustic charm and contemporary design, showcased through its uniquely arranged, reverse-level layout. Discover two double bedrooms (the master with an en suite) and a three-piece bathroom to the ground floor, before ascending to a striking...
Property Oracle says ..
Blacksmith’s Cottage is an end-of-terrace property located in Bispham Green, near Parbold. The property features two bedrooms and two bathrooms, with approximately 854.65 sqft of living space. The interior has been modernised, with a contemporary kitchen and bathrooms, while retaining some traditional features like exposed beams and brickwork. The property benefits from off-street parking and a small outdoor area. The location offers a balance between rural living and accessibility, with nearby schools and transport links. The asking price is reasonable given the property’s condition and location, although the price per square foot is slightly above the local average.
Therefore, we give this property 7 / 10. *Disclaimer: This is our option and does constitute a recommendation or financial advice. Do your own research. *
- Price
- 7
- Condition
- 8
- Location
- 7
- Land
- 6
- Bedrooms
- 2
- Bathrooms
- 2
- Sqft (est)
- 854.65
The heatmap indicates the level of crime in the area. The color of the heatmap indicates the crime severity and recency.
Metrics Year-on-Year
- Average area value
- 382,533.00 £Increased by 3.77 %
- Est sale value
- 314,511.20 £Increased by 5.44 %
- Average area rental value
- 1,090.00 £/moDecreased by 17.67 %
- Est letting value
- 854.65 £/moUnchanged by 0.00 %
- Est rental Yield
- 3.42 %Decreased by 20.65 %
- Crime Rate
- 19.00 %Unchanged by 0.00 %
Agent Activity
Maria B Evans Estate Agents created the listing.
Nearby Schools
| Name | Type | Ofsted | Distance |
|---|---|---|---|
| Richard Durning'S Endowed Primary School | Voluntary Controlled School | Outstanding | 1.53 KM |
| Mawdesley St Peter'S Church Of England Primary School | Voluntary Aided School | Good | 1.63 KM |
| Parbold Douglas Church Of England Academy | Academy Converter | 2.66 KM | |
| Our Lady And All Saints Roman Catholic Primary School, Parbold | Voluntary Aided School | Outstanding | 2.96 KM |
| Newburgh Church Of England Primary School | Voluntary Aided School | Outstanding | 3.21 KM |
Images
Nearby Streets
| Name | Average Price | Average Sqft | Distance |
|---|---|---|---|
| School Lane | £ 0 | 0 | 0.00 KM |
| High Street | £ 0 | 0 | 0.00 KM |
| Hall Lane | £ 375,000 | 0 | 0.00 KM |
| Sandy Lane | £ 530,000 | 0 | 0.00 KM |
Nearby Transport
| Name | NLC | TLC | Distance |
|---|---|---|---|
| Parbold | 2402 | PBL | 2.75 KM |
| Hoscar | 2399 | HSC | 3.86 KM |
| Rufford | 2315 | RUF | 4.29 KM |
| Croston | 2313 | CSO | 5.83 KM |
| Appley Bridge | 2396 | APB | 7.31 KM |
Nearby Listings
| Address | Price | Type | Score | Distance |
|---|---|---|---|---|
| The Smithy, Maltkiln Lane, Bispham Green L40 3SQ | £ 550,000 | BUY | 7 / 10 | 0.00 KM |
| Blacksmith's Cottage, Maltkiln Lane, Bispham Green L40 3SQ | £ 375,000 | BUY | 7 / 10 | 0.00 KM |
| Maltkiln Lane, Bispham Green, Ormskirk | £ 499,950 | BUY | 7 / 10 | 0.04 KM |
| The Green, Bispham, L40 | £ 325,000 | BUY | 7 / 10 | 0.11 KM |
| The Forge, Maltkiln Lane, Bispham | £ 425,000 | BUY | 6 / 10 | 0.16 KM |
Nearby Properties
| Address | Price | Distance |
|---|---|---|
| The Beeches | £ 450,000 | 0.01 KM |
| 8 Maltkiln Lane | £ 380,000 | 0.01 KM |
| Woodview | £ 240,000 | 0.01 KM |
| Rose Cottage | £ 300,000 | 0.02 KM |
| Sunny Lea Cottage | £ 332,000 | 0.14 KM |