Waverley Road, Stoneleigh,
By Mark Anthony Estate Agents
£ 800,000
Reviews
3 out of 5 stars
Mark Anthony Estate Agents says ..
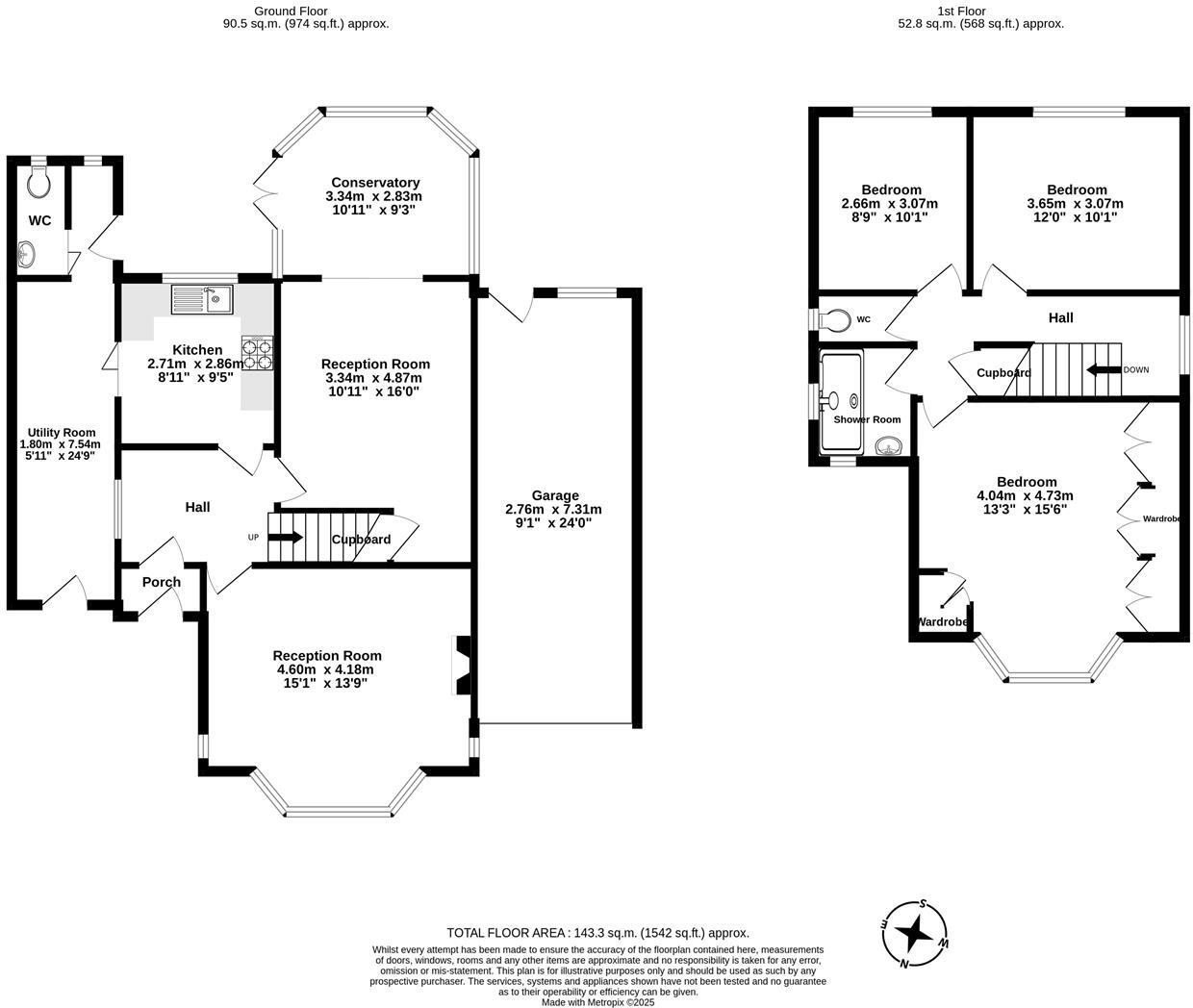
Mark Anthony Estate Agents are proud to bring to the market is this attractive three bedroom detached family home located in one of the finest roads in Stoneleigh and benefiting from an ample driveway, garage and a well established level rear garden. Viewing Highly Recommended. Detached ...
Property Oracle says ..
This is a 3-bedroom detached house in Stoneleigh, Epsom and Ewell, Surrey. The property is located in a popular residential area, close to good schools and transport links. The house is in reasonable condition, but it would benefit from some modernisation. It has a good-sized garden and a garage. The property is listed for sale at £800,000, which seems like a reasonable price given its location, condition, and size.
Therefore, we give this property 6 / 10. *Disclaimer: This is our option and does constitute a recommendation or financial advice. Do your own research. *
- Price
- 6
- Condition
- 5
- Location
- 7
- Land
- 7
- Bedrooms
- 3
- Bathrooms
- 1
The heatmap indicates the level of crime in the area. The color of the heatmap indicates the crime severity and recency.
Metrics Year-on-Year
- Average area value
- 423,750.00 £Increased by 35.93 %
- Average area rental value
- 1,160.00 £/moIncreased by 3.85 %
- Est rental Yield
- 3.28 %Decreased by 23.72 %
- Crime Rate
- 2.00 %Unchanged by 0.00 %
Agent Activity
Mark Anthony Estate Agents created the listing.
Nearby Schools
| Name | Type | Ofsted | Distance |
|---|---|---|---|
| Nonsuch Primary School | Foundation School | Good | 0.71 KM |
| Meadow Primary School | Academy Converter | 0.87 KM | |
| Meadow Sure Start Children'S Centre | Children's Centre | 0.87 KM | |
| Ewell Castle School | Other Independent School | 1.26 KM | |
| Auriol Junior School | Academy Converter | Good | 1.40 KM |
Images
Nearby Streets
| Name | Average Price | Average Sqft | Distance |
|---|---|---|---|
| Richlands Avenue | £ 0 | 0 | 0.00 KM |
| Elmwood Close | £ 0 | 0 | 0.00 KM |
| Ewell By-Pass | £ 0 | 0 | 0.00 KM |
| Colborne Close | £ 0 | 0 | 0.00 KM |
| The Orchard | £ 0 | 0 | 0.00 KM |
Nearby Transport
| Name | NLC | TLC | Distance |
|---|---|---|---|
| Stoneleigh | 5606 | SNL | 0.74 KM |
| Ewell East | 5415 | EWE | 1.75 KM |
| Ewell West | 5586 | EWW | 2.02 KM |
| Worcester Park | 5579 | WCP | 2.28 KM |
| Cheam | 5352 | CHE | 3.18 KM |
Nearby Listings
| Address | Price | Type | Score | Distance |
|---|---|---|---|---|
| Waverley Road, Stoneleigh, | £ 800,000 | BUY | 6 / 10 | 0.00 KM |
| Briarwood Road, Epsom | £ 850,000 | BUY | 7 / 10 | 0.08 KM |
| Briarwood Road, Epsom, KT17 2LY | £ 775,000 | BUY | 7 / 10 | 0.09 KM |
| Chadacre Road, Epsom, KT17 | £ 675,000 | BUY | Unknown | 0.12 KM |
| Briarwood Road,Stoneleigh,Surrey,KT17 2LX | £ 700,000 | BUY | 6 / 10 | 0.13 KM |
Nearby Properties
| Address | Price | Distance |
|---|---|---|
| 15 The Glade | £ 530,000 | 0.06 KM |
| 31 The Glade | £ 601,000 | 0.06 KM |
| 29 The Glade | £ 382,500 | 0.06 KM |
| 19 The Glade | £ 280,000 | 0.06 KM |
| 21 The Glade | £ 405,000 | 0.06 KM |