The Avenue, Branksome Park, Poole, Dorset, BH13
By Winkworth
£ 350,000
Reviews
3 out of 5 stars
Winkworth says ..
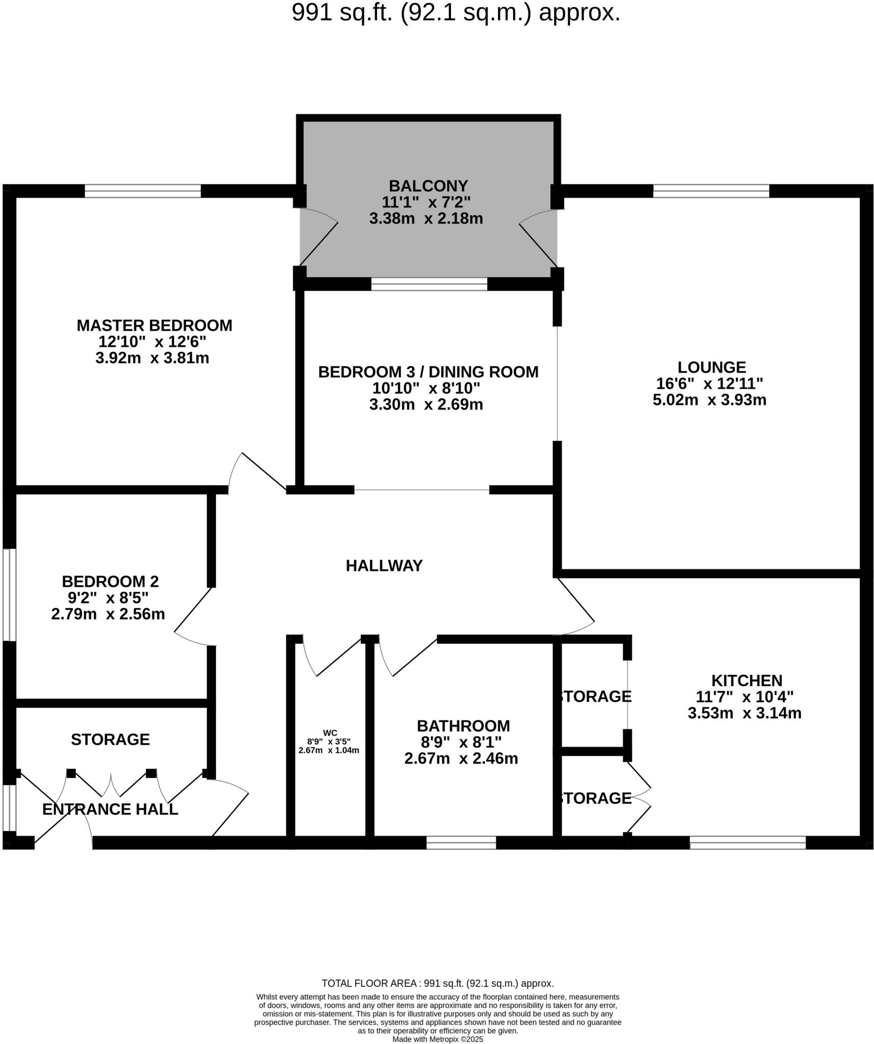
A stunning second floor apartment which has been completely refurbished by the current owner . Comprising modern contemporary accommodation throughout with a south facing balcony and garage. Set conveniently close to Westbourne.
Property Oracle says ..
This property is a 2 bedroom apartment located in Branksome Park, Poole, Dorset. The apartment is in excellent condition and has been recently updated with a modern kitchen and bathroom. The property benefits from a balcony with views over the surrounding woodland. The location is excellent, close to local amenities and transport links. The price is slightly above average for the area, but considering the condition and location of the property, it represents good value for money.
Therefore, we give this property 7 / 10. *Disclaimer: This is our option and does constitute a recommendation or financial advice. Do your own research. *
- Price
- 7
- Condition
- 9
- Location
- 9
- Land
- 3
- Bedrooms
- 2
- Bathrooms
- 1
- Sqft (est)
- 991.00
The heatmap indicates the level of crime in the area. The color of the heatmap indicates the crime severity and recency.
Metrics Year-on-Year
- Average area value
- 1,052,667.00 £Increased by 0.59 %
- Est sale value
- 636,222.00 £Increased by 14.03 %
- Average area rental value
- 1,729.00 £/moDecreased by 16.47 %
- Est letting value
- 991.00 £/moUnchanged by 0.00 %
- Est rental Yield
- 1.97 %Decreased by 16.88 %
- Crime Rate
- 0.00 %
Agent Activity
Winkworth created the listing.
Nearby Schools
| Name | Type | Ofsted | Distance |
|---|---|---|---|
| Branksome Children'S Centre | Children's Centre | 1.06 KM | |
| Victoria Education Centre | Non-maintained Special School | Good | 1.29 KM |
| Talbot Heath School | Other Independent School | 1.68 KM | |
| Bishop Aldhelm'S Church Of England Primary School | Academy Converter | 1.72 KM | |
| St Michael'S Church Of England Primary School | Academy Converter | Good | 2.26 KM |
Images
Nearby Streets
| Name | Average Price | Average Sqft | Distance |
|---|---|---|---|
| Westgate Park | £ 299,950 | 0 | 0.00 KM |
| Seamoor Road | £ 225,000 | 0 | 0.00 KM |
| Lindsay Road (cycleway) | £ 0 | 0 | 0.00 KM |
| County Gates Gyratory (cycleway) | £ 0 | 0 | 0.00 KM |
| Heatherbank Road | £ 362,500 | 0 | 0.00 KM |
Nearby Transport
| Name | NLC | TLC | Distance |
|---|---|---|---|
| Branksome | 5875 | BSM | 1.54 KM |
| Parkstone (Dorset) | 5882 | PKS | 4.36 KM |
| Bournemouth | 5876 | BMH | 4.99 KM |
| Poole | 5883 | POO | 8.25 KM |
| Pokesdown | 5885 | POK | 9.35 KM |
Nearby Listings
| Address | Price | Type | Score | Distance |
|---|---|---|---|---|
| The Avenue, Branksome Park, Poole, Dorset, BH13 | £ 350,000 | BUY | 7 / 10 | 0.00 KM |
| Western Road, Branksome Park | £ 550,000 | BUY | 6 / 10 | 0.07 KM |
| Western Road, Poole, Dorset, BH13 | £ 495,000 | BUY | 7 / 10 | 0.07 KM |
| 48 Western Road, Branksome Park | £ 899,950 | BUY | 7 / 10 | 0.08 KM |
| Western Road, Branksome Park, Poole, Dorset, BH13 | £ 400,000 | BUY | 5 / 10 | 0.09 KM |
Nearby Properties
| Address | Price | Distance |
|---|---|---|
| 42 Tower Road | £ 560,000 | 0.23 KM |
| 44 Tower Road | £ 290,000 | 0.23 KM |
| 44 Western Road | £ 585,000 | 0.25 KM |
| 42 Western Road | £ 565,000 | 0.25 KM |
| 34 Westbourne Park Road | £ 117,500 | 0.25 KM |