PH
Castle Road, Chatham, Kent, ME4
By Phoenix Property Services
£ 200,000
Reviews
3 out of 5 stars
Phoenix Property Services says ..
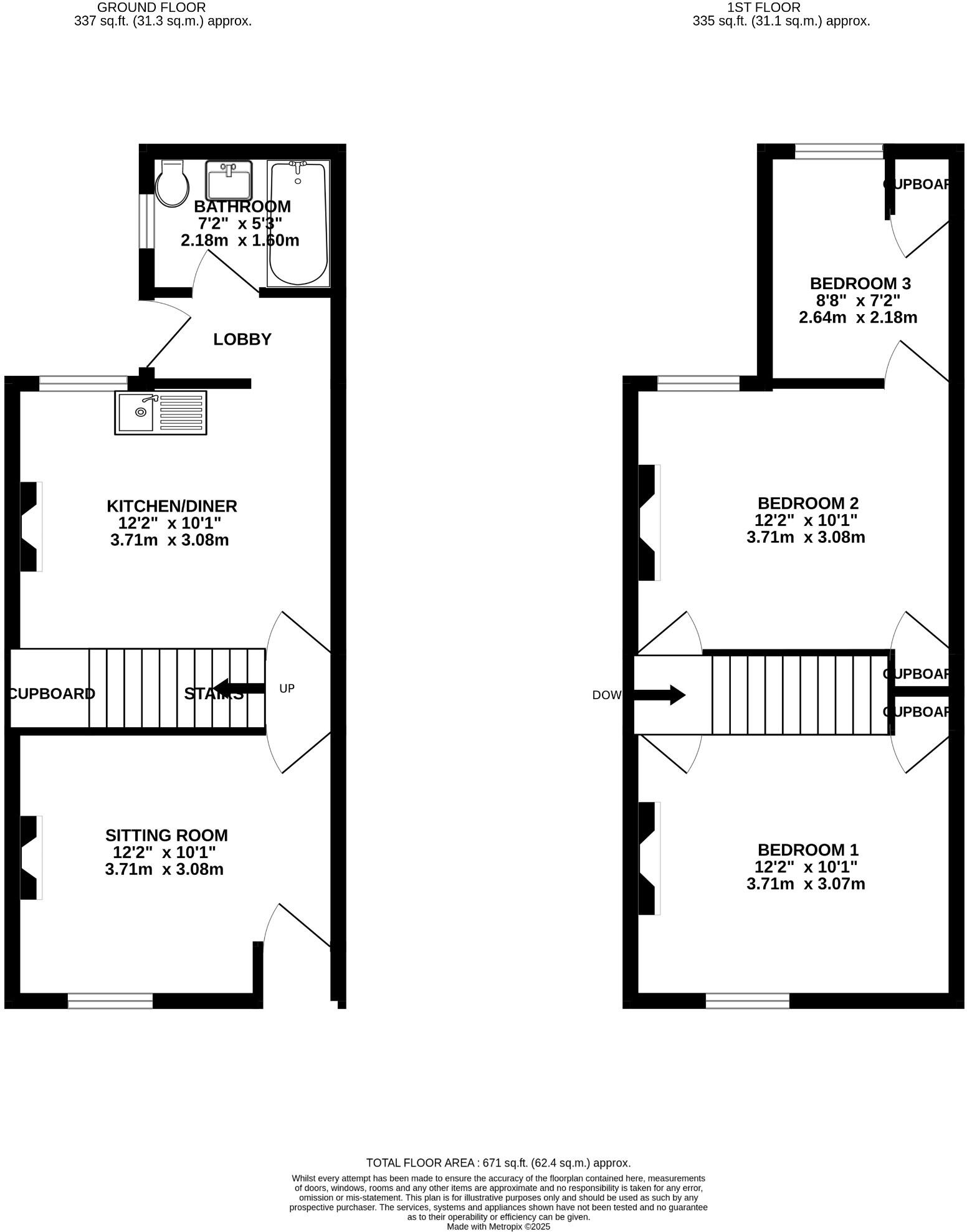
3 Bedroom Terraced House, Sitting Room, Kitchen, Ground Floor Bathroom, Garden, EPC Rating D, Currently on AST £1250 pcm
Property Oracle says ..
Therefore, we give this property 6 / 10. *Disclaimer: This is our option and does constitute a recommendation or financial advice. Do your own research. *
- Price
- 7
- Condition
- 5
- Location
- 7
- Land
- 7
- Bedrooms
- 3
- Bathrooms
- 1
- Sqft (est)
- 591.77
The heatmap indicates the level of crime in the area. The color of the heatmap indicates the crime severity and recency.
Metrics Year-on-Year
- Average area value
- 281,500.00 £Increased by 3.99 %
- Est sale value
- 197,651.18 £Increased by 3.73 %
- Average area rental value
- 1,328.00 £/moIncreased by 4.08 %
- Est letting value
- 591.77 £/moUnchanged by 0.00 %
- Est rental Yield
- 5.66 %Unchanged by 0.00 %
- Crime Rate
- 9.00 %Unchanged by 0.00 %
from 270,688.00 £
from 190,549.94 £
from 1,276.00 £/mo
from 591.77 £/mo
from 5.66 %
from 9.00 %
Agent Activity
Phoenix Property Services created the listing.
Nearby Schools
| Name | Type | Ofsted | Distance |
|---|---|---|---|
| The Victory Academy | Academy Sponsor Led | Good | 0.19 KM |
| Greenvale Primary School | Community School | Good | 0.39 KM |
| All Saints Sure Start Children'S Centre | Children's Centre | 0.48 KM | |
| Phoenix Primary School | Academy Sponsor Led | Requires improvement | 0.64 KM |
| All Saints Church Of England Primary School | Academy Converter | Good | 0.70 KM |
Images
Nearby Streets
| Name | Average Price | Average Sqft | Distance |
|---|---|---|---|
| Magpie Hall Road | £ 90,000 | 0 | 0.00 KM |
| Castle Road | £ 0 | 0 | 0.00 KM |
| Lytham Close | £ 0 | 0 | 0.00 KM |
| Wayfield Road | £ 0 | 0 | 0.00 KM |
| Glencoe Road | £ 0 | 0 | 0.00 KM |
Nearby Transport
| Name | NLC | TLC | Distance |
|---|---|---|---|
| Chatham | 5199 | CTM | 1.71 KM |
| Gillingham (Kent) | 5169 | GLM | 2.56 KM |
| Rochester | 5203 | RTR | 3.02 KM |
| Strood (Kent) | 5191 | SOO | 4.64 KM |
| Cuxton | 5201 | CUX | 7.91 KM |
Nearby Listings
| Address | Price | Type | Score | Distance |
|---|---|---|---|---|
| Castle Road, Chatham, Kent, ME4 | £ 200,000 | BUY | 6 / 10 | 0.00 KM |
| Castle Road, Chatham, ME4 5JA | £ 220,000 | BUY | 6 / 10 | 0.01 KM |
| Castle Road, Chatham, Kent, ME4 | £ 230,000 | BUY | 6 / 10 | 0.02 KM |
| Castle Road, Chatham, Kent, ME4 | £ 240,000 | BUY | 5 / 10 | 0.05 KM |
| Castle Road, Chatham, Kent, ME4 | £ 220,000 | BUY | 6 / 10 | 0.05 KM |
Nearby Properties
| Address | Price | Distance |
|---|---|---|
| 287 Castle Road | £ 224,000 | 0.00 KM |
| 242 Castle Road | £ 42,250 | 0.00 KM |
| 238 Castle Road | £ 125,000 | 0.00 KM |
| 270 Castle Road | £ 112,500 | 0.00 KM |
| 280 Castle Road | £ 210,000 | 0.00 KM |