MA
Perowne Street, Aldershot, Hampshire, GU11
By Mackenzie Smith
£ 375,000
Reviews
3 out of 5 stars
Mackenzie Smith says ..
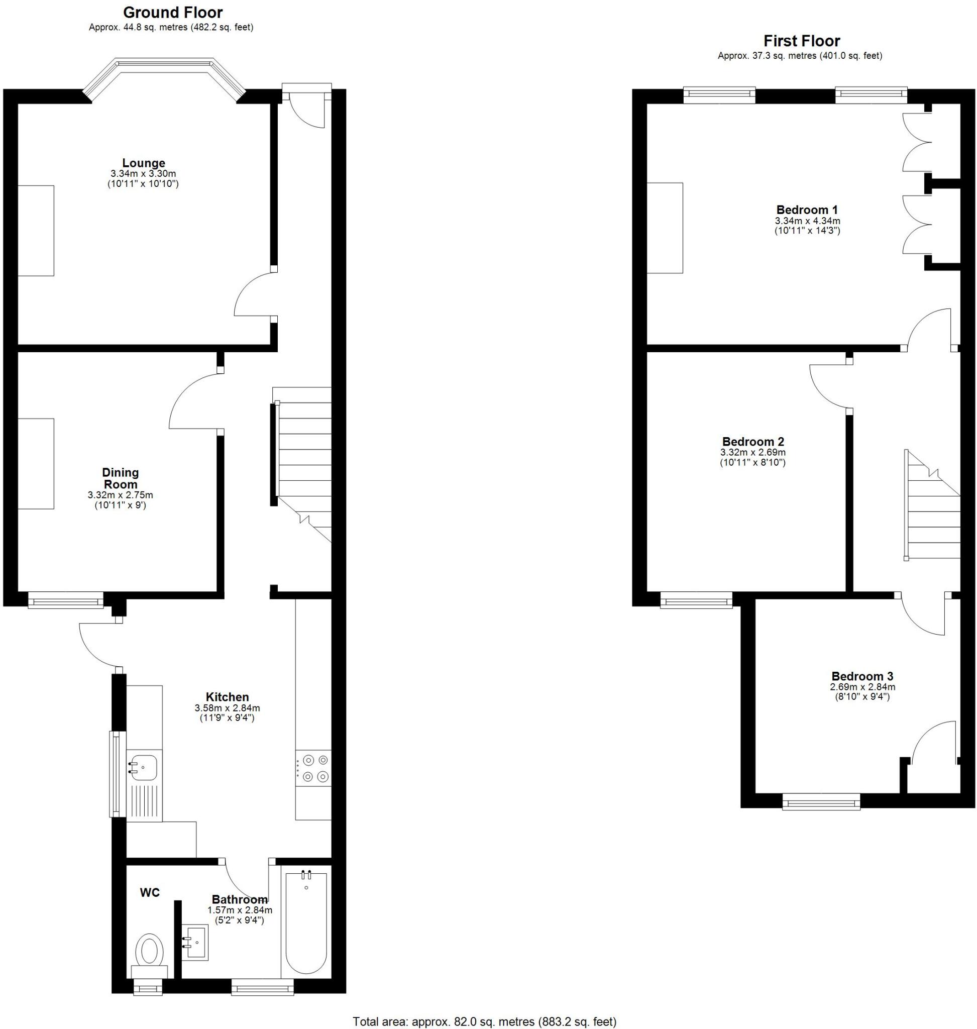
This three-bedroom terraced home features two reception rooms, a modern kitchen and bathroom, plus a large garden. Conveniently situated, it's within easy reach of the town centre and mainline station.
Property Oracle says ..
Therefore, we give this property 6 / 10. *Disclaimer: This is our option and does constitute a recommendation or financial advice. Do your own research. *
- Price
- 6
- Condition
- 7
- Location
- 7
- Land
- 6
- Bedrooms
- 3
- Bathrooms
- 1
- Sqft (est)
- 882.64
The heatmap indicates the level of crime in the area. The color of the heatmap indicates the crime severity and recency.
Metrics Year-on-Year
- Average area value
- 332,500.00 £Decreased by 10.87 %
- Est sale value
- 481,038.80 £Increased by 55.71 %
- Average area rental value
- 1,008.00 £/moDecreased by 24.27 %
- Est letting value
- 882.64 £/moUnchanged by 0.00 %
- Est rental Yield
- 3.64 %Decreased by 14.95 %
- Crime Rate
- 12.00 %Unchanged by 0.00 %
from 373,053.00 £
from 308,924.00 £
from 1,331.00 £/mo
from 882.64 £/mo
from 4.28 %
from 12.00 %
Agent Activity
Mackenzie Smith created the listing.
Nearby Schools
| Name | Type | Ofsted | Distance |
|---|---|---|---|
| Rowhill School | Pupil Referral Unit | Good | 0.19 KM |
| Wellington Community Primary School | Community School | Outstanding | 0.35 KM |
| Talavera Junior School | Community School | Outstanding | 1.22 KM |
| Talavera Infant School | Community School | Good | 1.22 KM |
| St Joseph'S Catholic Primary School | Academy Converter | Outstanding | 1.29 KM |
Images
Nearby Streets
| Name | Average Price | Average Sqft | Distance |
|---|---|---|---|
| Willems Roundabout | £ 0 | 0 | 0.00 KM |
| Wellington Avenue | £ 0 | 0 | 0.00 KM |
| Willems Avenue | £ 137,500 | 0 | 0.00 KM |
| Princes Way | £ 0 | 0 | 0.00 KM |
| Laburnum Road | £ 0 | 0 | 0.00 KM |
Nearby Transport
| Name | NLC | TLC | Distance |
|---|---|---|---|
| Aldershot | 5623 | AHT | 1.41 KM |
| Farnham | 5545 | FNH | 4.66 KM |
| North Camp | 5636 | NCM | 5.46 KM |
| Farnborough (Main) | 5521 | FNB | 5.64 KM |
| Ash Vale | 5547 | AHV | 6.19 KM |
Nearby Listings
| Address | Price | Type | Score | Distance |
|---|---|---|---|---|
| Perowne Street, Aldershot, Hampshire, GU11 | £ 375,000 | BUY | 6 / 10 | 0.00 KM |
| Perowne Street, Aldershot, GU11 | £ 200,000 | BUY | 7 / 10 | 0.01 KM |
| Perowne Street, Aldershot, Hampshire, GU11 | £ 375,000 | BUY | 6 / 10 | 0.04 KM |
| Hunters Mews, Alexandra Road, Aldershot | £ 315,000 | BUY | 6 / 10 | 0.09 KM |
| Queen Street, Aldershot, Hampshire, GU12 | £ 240,000 | BUY | 6 / 10 | 0.11 KM |
Nearby Properties
| Address | Price | Distance |
|---|---|---|
| 34 Perowne Street | £ 299,950 | 0.02 KM |
| 20 Perowne Street | £ 280,000 | 0.02 KM |
| 24 Perowne Street | £ 185,000 | 0.02 KM |
| 50 Perowne Street | £ 240,000 | 0.02 KM |
| 28 Perowne Street | £ 229,950 | 0.02 KM |