Unit 3, Roecrofts Farm Barn, Ulnes Walton Lane, Leyland, Lancashire, PR26
By Angela Burnett & Co
£ 250,000
Reviews
2 out of 5 stars
Angela Burnett & Co says ..
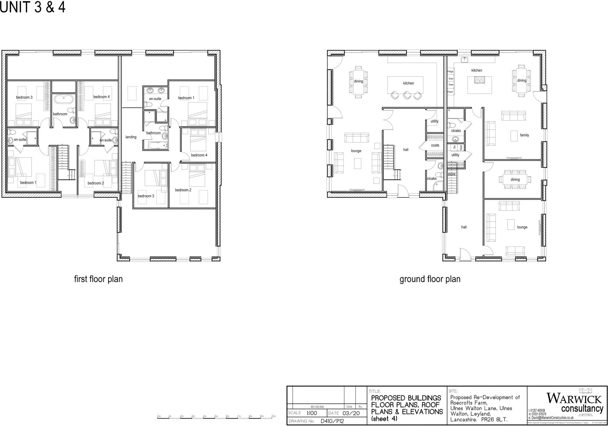
Full planning permission for conversion of Unit 3, Roecroft Farm Barn to a four bedroom dwelling with garage, gardens and views to the rear.
Property Oracle says ..
This property is a barn conversion project located in Leyland, Lancashire, listed at £250,000. The barn requires a full renovation, as indicated by the provided images. The property has planning permission for conversion into a four-bedroom dwelling with a garage and gardens.
The location is a balance between rural tranquility and reasonable access to amenities and transport links. Train stations are within a reasonable commuting distance. Several primary schools are also nearby, a key consideration for families. The immediate area seems peaceful, though potentially lacking in local shops and services. The surrounding area comprises of a mix of property types and price points indicating a diverse residential landscape.
The land is a significant positive for the property; while the precise dimensions are not specified, the provided plans illustrate a substantial space compared to typical urban properties.
The asking price needs to be considered in the context of the significant cost and time needed to convert the barn. While the completed property is likely to hold considerable value given the size and location, the risk associated with the conversion is substantial, meaning the sale price will depend on the cost of the renovations.
Overall, this property presents a high-risk, high-reward proposition. The potential for considerable profit exists, but only for buyers with the resources and expertise to manage a large-scale renovation project. The current state of the building is poor, requiring a complete rebuild inside.
Therefore, we give this property 5 / 10. *Disclaimer: This is our option and does constitute a recommendation or financial advice. Do your own research. *
- Price
- 7
- Condition
- 3
- Location
- 6
- Land
- 7
- Bedrooms
- 4
- Bathrooms
- 0
- Sqft (est)
- 2,512.30
The heatmap indicates the level of crime in the area. The color of the heatmap indicates the crime severity and recency.
Metrics Year-on-Year
- Average area value
- 362,000.00 £Decreased by 15.58 %
- Est sale value
- 552,706.00 £Decreased by 20.58 %
- Average area rental value
- 1,148.00 £/moIncreased by 13.55 %
- Est letting value
- 0.00 £/mo
- Est rental Yield
- 3.81 %Increased by 34.63 %
- Crime Rate
- 14.00 %Unchanged by 0.00 %
Agent Activity
Angela Burnett & Co created the listing.
Nearby Schools
| Name | Type | Ofsted | Distance |
|---|---|---|---|
| Eccleston Primary School | Community School | Good | 2.52 KM |
| Bishop Rawstorne Church Of England Academy | Academy Converter | 2.73 KM | |
| Eccleston St Mary'S Church Of England Primary School | Voluntary Aided School | Good | 3.04 KM |
| Blossomfields Children'S Centre | Children's Centre | 3.06 KM | |
| Trinity And St Michael'S Va Cofe/Methodist Primary School | Voluntary Aided School | Outstanding | 3.08 KM |
Images
Nearby Streets
| Name | Average Price | Average Sqft | Distance |
|---|---|---|---|
| Ecclestone Bridge | £ 795,000 | 0 | 0.00 KM |
| The Causeway | £ 0 | 0 | 0.00 KM |
Nearby Transport
| Name | NLC | TLC | Distance |
|---|---|---|---|
| Croston | 2313 | CSO | 3.87 KM |
| Leyland | 2710 | LEY | 7.27 KM |
| Euxton Balshaw Lane | 2080 | EBA | 7.85 KM |
| Rufford | 2315 | RUF | 7.91 KM |
| Parbold | 2402 | PBL | 8.73 KM |
Nearby Listings
| Address | Price | Type | Score | Distance |
|---|---|---|---|---|
| Unit 3, Roecrofts Farm Barn, Ulnes Walton Lane, Leyland, Lancashire, PR26 | £ 250,000 | BUY | 5 / 10 | 0.00 KM |
| Unit 4, Roecroft Farm Barn, Ulnes Walton Lane, Leyland, Lancashire, PR26 | £ 300,000 | BUY | Unknown | 0.01 KM |
| Roecroft Farm Barn, Ulnes Walton Lane, Leyland, Lancashire, PR26 | £ 495,000 | BUY | 5 / 10 | 0.01 KM |
| The Bungalow, Ulnes Walton Lane, Leyland, Lancashire, PR26 | £ 240,000 | BUY | Unknown | 0.03 KM |
| Southport Road, The Poppies, Ulnes Walton, PR26 8LQ | £ 799,990 | BUY | Unknown | 0.15 KM |
Nearby Properties
| Address | Price | Distance |
|---|---|---|
| 239 Southport Road | £ 285,000 | 0.28 KM |
| 227 Southport Road | £ 270,000 | 0.28 KM |
| 197 Southport Road | £ 210,000 | 0.28 KM |
| 201 Southport Road | £ 140,000 | 0.28 KM |
| 237 Southport Road | £ 232,500 | 0.28 KM |