Plot 5 The Birch, Bluebell Meadows, Woodhouses Village, Failsworth
ME

Plot 5 The Birch, Bluebell Meadows, Woodhouses Village, Failsworth

By Medlock Estates

£ 515,000

Reviews

3 out of 5 stars

Medlock Estates says ..

Bluebell Meadows, nestled within the idyllic setting of Woodhouses village surrounded by the serene beauty of Blue Bell Woods. Plenty to offer in terms of schools, pubs, restaurants, golf clubs & much more. Escape to the surrounding areas & witness the breath taking landscapes of the Peak Distric...

Property Oracle says ..

This new build semi-detached property located in Woodhouses Village, Failsworth, is presented as a modern and well-finished home. The images showcase a contemporary interior design with high-quality fixtures and fittings. The property benefits from a convenient location near a ‘Good’-rated primary school. The description highlights a picturesque setting near Blue Bell Woods. However, the precise plot size is not provided, limiting a full assessment of the land included. Comparable properties in the area, while lacking detailed sqft data, appear to have similar price points, making the £515,000 list price seemingly reasonable. Further investigation into the precise size of the plot and a detailed comparison with similarly sized properties in Failsworth East would refine the valuation assessment. The proximity to good schools, attractive natural surroundings, and modern design features are notable positives, while the lack of detailed property specifics and the location within Failsworth East, as opposed to a more central or highly sought-after area, are aspects to consider.

Therefore, we give this property 6 / 10. *Disclaimer: This is our option and does constitute a recommendation or financial advice. Do your own research. *

Price
7
Condition
9
Location
7
Land
4
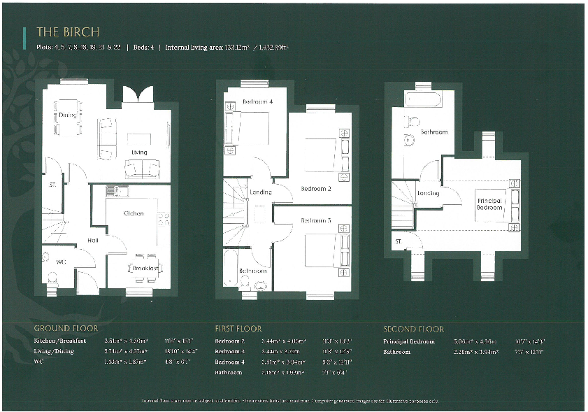
Bedrooms
4
Bathrooms
3
Sqft (est)
1,432.89

The heatmap indicates the level of crime in the area. The color of the heatmap indicates the crime severity and recency.

Metrics Year-on-Year

Average area value
541,429.00 £
Decreased by 23.20 %
from 705,020.00 £
Est sale value
778,059.27 £
Increased by 14.08 %
from 682,055.64 £
Average area rental value
2,040.00 £/mo
Increased by 13.71 %
from 1,794.00 £/mo
Est letting value
2,865.78 £/mo
Increased by 100.00 %
from 1,432.89 £/mo
Est rental Yield
4.52 %
Increased by 48.20 %
from 3.05 %
Crime Rate
0.00 %
from 0.00 %

Agent Activity

  • Medlock Estates created the listing.

Nearby Schools

NameTypeOfstedDistance
Woodhouses Voluntary Primary SchoolVoluntary Controlled SchoolGood0.30 KM
Laurus RyecroftFree Schools1.01 KM
New Bridge SchoolAcademy Special ConverterOutstanding1.42 KM
Co-Op Academy FailsworthAcademy Sponsor Led1.43 KM
Holy Family Rc Primary SchoolVoluntary Aided SchoolRequires improvement1.61 KM

Images

Sheridan-Group-Bottomfield-Farm-Plot-01-Bedroom-00 Sheridan-Group-Bottomfield-Farm-Street-001.jpg Sheridan-Group-Bottomfield-Farm-Street-006.jpg Sheridan-Group-Bottomfield-Farm-Plot-7-HTB-3.jpg Sheridan-Group-Bottomfield-Farm-Street-002.jpg Sheridan-Group-Bottomfield-Farm-Street-003.jpg Sheridan-Group-Bottomfield-Farm-Aerial-Top-Down.jp Sheridan-Group-Bottomfield-Farm-Plot-01-Ensuite-00 Sheridan-Group-Bottomfield-Farm-Street-004.jpg Sheridan-Group-Bottomfield-Farm-Street-004-AddedSk Sheridan-Group-Bottomfield-Farm-Plot-7-HTB-3-Rear. Sheridan-Group-Bottomfield-Farm-Street-005.jpg Sheridan-Group-Bottomfield-Farm-Plot-01-Dining-001 Sheridan-Group-Bottomfield-Farm-Plot-01-Snug-001.j Sheridan-Group-Bottomfield-Farm-Plot-01-Kitchen-00 Sheridan-Group-Bottomfield-Farm-Plot-01-Kitchen-00 Sheridan-Group-Bottomfield-Farm-Plot-01-Landing-00 Sheridan-Group-Bottomfield-Farm-Plot-01-Bedroom-00 Sheridan-Group-Bottomfield-Farm-Plot-01-Ensuite-00

Nearby Streets

NameAverage PriceAverage SqftDistance
Partridge Road £ 000.00 KM
Barnside Way £ 000.00 KM
Langton Close £ 449,95000.00 KM
Hyde Street £ 510,00000.00 KM
Chaffinch Close £ 000.00 KM

Nearby Transport

NameNLCTLCDistance
Fairfield2780FRF3.61 KM
Guide Bridge2955GUI3.85 KM
Moston2973MSO4.64 KM
Ashton-Under-Lyne2790AHN4.65 KM
Gorton2962GTO5.03 KM

Nearby Properties

AddressPriceDistance
17 Hartshead Crescent £ 272,5000.13 KM
7 Hartshead Crescent £ 197,0000.13 KM
4 Hartshead Crescent £ 320,0000.13 KM
21 Hartshead Crescent £ 369,9500.13 KM
12 Hartshead Crescent £ 330,0000.13 KM