Homesearch Ltd says ..
.This lovely three-bedroom mid-terraced property in South Ealing has just come to the market and offers an excellent balance of peaceful residential living and everyday convenience.
Property Oracle says ..
This is a three-bedroom terraced house in Ealing Common, London. The property is in a good location, close to schools and transport links. The property is in reasonable condition, but would benefit from some modernisation. The property has a garden. The property is reasonably priced for the area.
Therefore, we give this property 6 / 10. *Disclaimer: This is our option and does constitute a recommendation or financial advice. Do your own research. *
- Price
- 7
- Condition
- 6
- Location
- 7
- Land
- 6
- Bedrooms
- 3
- Bathrooms
- 0
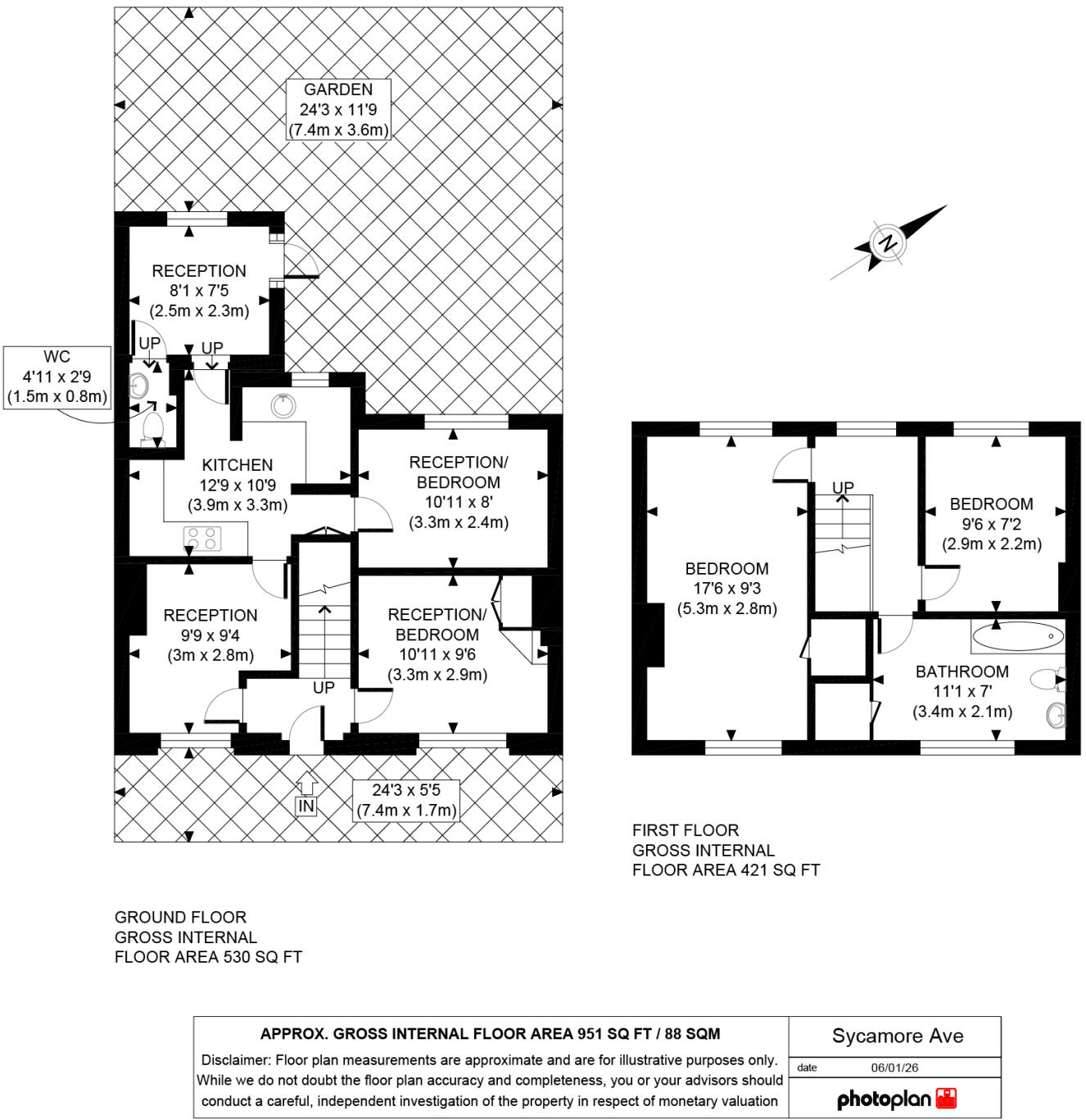
- Sqft (est)
- 951.00
- Lot (est)
- 441.38
The heatmap indicates the level of crime in the area. The color of the heatmap indicates the crime severity and recency.
Metrics Year-on-Year
- Average area value
- 683,580.00 £Decreased by 10.48 %
- Est sale value
- 744,633.00 £Increased by 44.46 %
- Average area rental value
- 2,333.00 £/moIncreased by 12.11 %
- Est letting value
- 1,902.00 £/moIncreased by 100.00 %
- Est rental Yield
- 4.10 %Increased by 25.38 %
- Crime Rate
- 3.00 %Unchanged by 0.00 %
Agent Activity
Homesearch Ltd created the listing.
Nearby Schools
| Name | Type | Ofsted | Distance |
|---|---|---|---|
| Grange Primary School | Community School | Good | 0.41 KM |
| Grange Children'S Centre | Children's Centre Linked Site | 0.44 KM | |
| Mount Carmel Catholic Primary School | Voluntary Aided School | Good | 0.56 KM |
| Little Ealing Primary School | Community School | Good | 0.60 KM |
| University Of West London | Higher Education Institutions | Good | 0.69 KM |
Images
Nearby Streets
| Name | Average Price | Average Sqft | Distance |
|---|---|---|---|
| Maple Grove | £ 0 | 0 | 0.00 KM |
| Roberts Alley | £ 0 | 0 | 0.00 KM |
| South Road | £ 780,000 | 0 | 0.00 KM |
| Sunderland Road | £ 891,667 | 0 | 0.00 KM |
| Bramley Road | £ 0 | 0 | 0.00 KM |
Nearby Transport
| Name | NLC | TLC | Distance |
|---|---|---|---|
| Brentford | 5552 | BFD | 1.57 KM |
| Ealing Broadway | 3190 | EAL | 1.62 KM |
| Kew Bridge | 5593 | KWB | 2.21 KM |
| West Ealing | 3188 | WEA | 2.32 KM |
| Syon Lane | 5609 | SYL | 3.12 KM |
Nearby Listings
| Address | Price | Type | Score | Distance |
|---|---|---|---|---|
| Sycamore Avenue, W5 | £ 625,000 | BUY | 6 / 10 | 0.00 KM |
| Olive Road, Ealing, W5 | £ 550,000 | BUY | 7 / 10 | 0.11 KM |
| Hawthorn Gardens, London | £ 600,000 | BUY | Unknown | 0.11 KM |
| Maple Grove, W5 | £ 635,000 | BUY | Unknown | 0.12 KM |
| Maple Grove, W5 | £ 950,000 | BUY | 7 / 10 | 0.12 KM |
Nearby Properties
| Address | Price | Distance |
|---|---|---|
| 1 Sycamore Avenue | £ 104,000 | 0.02 KM |
| 6 Sycamore Avenue | £ 250,000 | 0.02 KM |
| 7 Sycamore Avenue | £ 310,000 | 0.02 KM |
| 31 Lilac Gardens | £ 700,000 | 0.05 KM |
| 17a Lilac Gardens | £ 608,000 | 0.05 KM |