Upper Richmond Road, West Putney, SW15
By Chestertons Estate Agents
£ 550,000
Reviews
3 out of 5 stars
Chestertons Estate Agents says ..
Chain-free ground floor flat near Barnes Station, featuring open-plan living, modern interiors, and a private garden with off-street parking, all moments from local amenities.
Property Oracle says ..
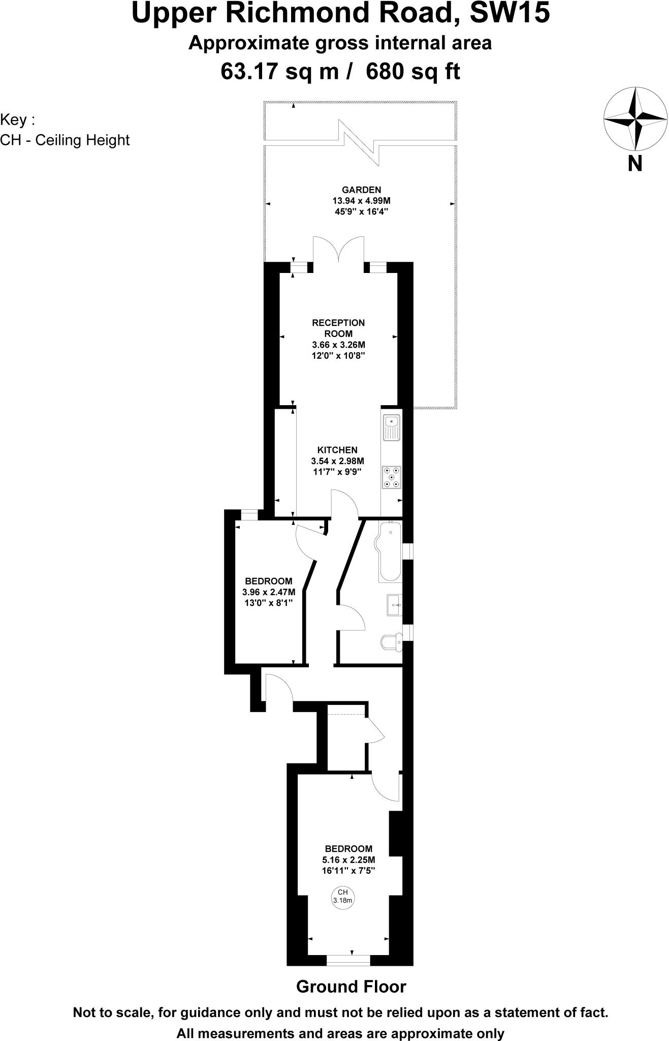
This is a two-bedroom flat located on Upper Richmond Road in West Putney. The property benefits from a garden and is located close to local amenities, transportation, and schools. While the property appears to be in reasonable condition, some areas could benefit from updating. The asking price of £550,000 seems reasonable for the location and features offered. Overall, this property presents a good opportunity for buyers looking for a flat in a sought-after area of London.
Therefore, we give this property 6 / 10. *Disclaimer: This is our option and does constitute a recommendation or financial advice. Do your own research. *
- Price
- 7
- Condition
- 6
- Location
- 7
- Land
- 7
- Bedrooms
- 2
- Bathrooms
- 1
The heatmap indicates the level of crime in the area. The color of the heatmap indicates the crime severity and recency.
Metrics Year-on-Year
- Average area value
- 721,658.00 £Decreased by 13.09 %
- Average area rental value
- 2,654.00 £/moDecreased by 13.47 %
- Est rental Yield
- 4.41 %Decreased by 0.45 %
- Crime Rate
- 3.00 %Unchanged by 0.00 %
Agent Activity
Chestertons Estate Agents created the listing.
Nearby Schools
| Name | Type | Ofsted | Distance |
|---|---|---|---|
| Sacred Heart Catholic Primary School, Roehampton | Voluntary Aided School | Good | 0.81 KM |
| Paddock School | Community Special School | Outstanding | 0.86 KM |
| Falcons School For Girls | Other Independent School | 0.94 KM | |
| Roehampton Gate School | Other Independent Special School | Good | 1.04 KM |
| Barnes Primary School | Community School | Outstanding | 1.08 KM |
Images
Nearby Streets
| Name | Average Price | Average Sqft | Distance |
|---|---|---|---|
| Glebe Road | £ 2,175,000 | 0 | 0.00 KM |
| Brook Gardens | £ 0 | 0 | 0.00 KM |
| Ironmongers Mews | £ 0 | 0 | 0.00 KM |
| St John's Grove | £ 0 | 0 | 0.00 KM |
| Parkmead | £ 0 | 0 | 0.00 KM |
Nearby Transport
| Name | NLC | TLC | Distance |
|---|---|---|---|
| Barnes | 5551 | BNS | 0.25 KM |
| Barnes Bridge | 5580 | BNI | 1.43 KM |
| Mortlake | 5600 | MTL | 2.81 KM |
| Putney | 5603 | PUT | 2.84 KM |
| Chiswick | 5583 | CHK | 3.39 KM |
Nearby Listings
| Address | Price | Type | Score | Distance |
|---|---|---|---|---|
| Upper Richmond Road, West Putney, SW15 | £ 550,000 | BUY | 6 / 10 | 0.00 KM |
| Daylesford Avenue, London, SW15 | £ 1,500,000 | BUY | 7 / 10 | 0.08 KM |
| Cornerways, Putney, SW15 | £ 575,000 | BUY | 6 / 10 | 0.08 KM |
| Dungarvan Avenue, London | £ 1,695,000 | BUY | 8 / 10 | 0.12 KM |
| Daylesford Avenue, London, SW15 | £ 1,750,000 | BUY | 7 / 10 | 0.12 KM |
Nearby Properties
| Address | Price | Distance |
|---|---|---|
| 415c Upper Richmond Road | £ 425,000 | 0.01 KM |
| 415d Upper Richmond Road | £ 370,000 | 0.01 KM |
| 415a Upper Richmond Road | £ 360,000 | 0.01 KM |
| 415b Upper Richmond Road | £ 459,950 | 0.01 KM |
| 419 Upper Richmond Road | £ 2,850,000 | 0.02 KM |