Gowda Way, Glossop, Derbyshire, SK13
By Redwing
£ 199,500
Reviews
3 out of 5 stars
Redwing says ..
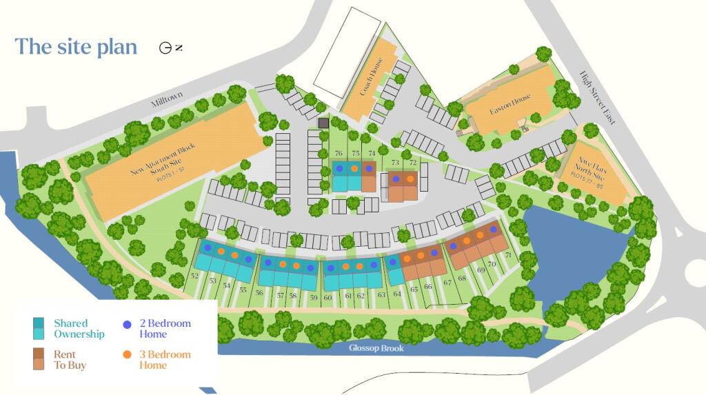
Thoughtfully designed, affordable homes in the heart of Glossop. The Development Weirbrook is a beautiful new development of 25 2-and-3-bedroom homes in one of Derbyshire?s most characterful locations. Nestled beside a gently flowing brook and and surrounded by natur...
Property Oracle says ..
This is a two-bedroom terraced property located in Howard Town, Glossop. The property is in excellent condition and appears to be a modern build. The location is convenient, with good access to local amenities and transportation links, including Glossop train station. The property is relatively small at 480 sqft, but the list price of £199,500 is competitive for the area. Nearby schools include Duke Of Norfolk Cofe Primary School which Requires improvement.
Therefore, we give this property 6 / 10. *Disclaimer: This is our option and does constitute a recommendation or financial advice. Do your own research. *
- Price
- 7
- Condition
- 9
- Location
- 7
- Land
- 3
- Bedrooms
- 2
- Bathrooms
- 2
- Sqft (est)
- 480.00
The heatmap indicates the level of crime in the area. The color of the heatmap indicates the crime severity and recency.
Metrics Year-on-Year
- Average area value
- 207,155.00 £Decreased by 4.75 %
- Est sale value
- 126,720.00 £Increased by 0.76 %
- Average area rental value
- 960.00 £/moIncreased by 7.14 %
- Est letting value
- 480.00 £/moUnchanged by 0.00 %
- Est rental Yield
- 5.56 %Increased by 12.55 %
- Crime Rate
- 11.00 %Unchanged by 0.00 %
Agent Activity
Redwing created the listing.
Nearby Schools
| Name | Type | Ofsted | Distance |
|---|---|---|---|
| Duke Of Norfolk Cofe Primary School | Voluntary Controlled School | Requires improvement | 0.21 KM |
| St Mary'S Catholic Voluntary Academy | Academy Sponsor Led | 0.59 KM | |
| All Saints Catholic Voluntary Academy | Academy Converter | 0.76 KM | |
| Glossop Children'S Centre | Children's Centre | 0.93 KM | |
| St Luke'S Cofe Primary School | Voluntary Controlled School | Good | 1.36 KM |
Images
Nearby Streets
| Name | Average Price | Average Sqft | Distance |
|---|---|---|---|
| Corn Street | £ 0 | 0 | 0.00 KM |
| Gladstone Close | £ 0 | 0 | 0.00 KM |
| Uplands Roads | £ 0 | 0 | 0.00 KM |
| Uplands Road | £ 0 | 0 | 0.00 KM |
| Nursery Close | £ 147,667 | 0 | 0.00 KM |
Nearby Transport
| Name | NLC | TLC | Distance |
|---|---|---|---|
| Glossop | 2895 | GLO | 0.55 KM |
| Dinting | 2893 | DTG | 2.96 KM |
| Hadfield | 2896 | HDF | 3.00 KM |
| Broadbottom | 2892 | BDB | 8.01 KM |
Nearby Listings
| Address | Price | Type | Score | Distance |
|---|---|---|---|---|
| Gowda Way, Glossop, Derbyshire, SK13 | £ 124,000 | BUY | 6 / 10 | 0.00 KM |
| Gowda Way, Glossop, Derbyshire, SK13 | £ 213,750 | BUY | 6 / 10 | 0.00 KM |
| Gowda Way, Glossop, Derbyshire, SK13 | £ 199,500 | BUY | 6 / 10 | 0.00 KM |
| Gowda Way, Glossop, Derbyshire, SK13 | £ 232,500 | BUY | 6 / 10 | 0.00 KM |
| Mill Street, Glossop, SK13 | £ 200,000 | BUY | 5 / 10 | 0.12 KM |
Nearby Properties
| Address | Price | Distance |
|---|---|---|
| 83 High Street East | £ 104,000 | 0.01 KM |
| 125 High Street East | £ 116,500 | 0.01 KM |
| 74 High Street East | £ 78,500 | 0.01 KM |
| 44 High Street East | £ 91,000 | 0.01 KM |
| 87 High Street East | £ 96,000 | 0.01 KM |