Barrington Close, Headington
By Amelies Estate Agents
£ 625,000
Reviews
3 out of 5 stars
Amelies Estate Agents says ..
We are proud to present this fantastic four bedroom property in the heart of Headington! This property is in a Cul-De-Sac location close to the shops and offers two reception rooms, a garage and private garden too. Call us to book your viewing today!
Property Oracle says ..
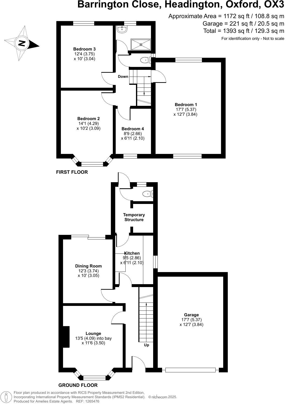
This is a 4-bedroom semi-detached house located in Headington, Oxford. The property offers a good amount of living space at 1,393 sqft and includes a garden. While the property requires renovation, its location in a sought-after area like Headington, close to schools and amenities, makes it an attractive prospect. The price of £625,000 appears reasonable, especially considering the potential to add value through refurbishment.
Therefore, we give this property 6 / 10. *Disclaimer: This is our option and does constitute a recommendation or financial advice. Do your own research. *
- Price
- 7
- Condition
- 4
- Location
- 7
- Land
- 7
- Bedrooms
- 4
- Bathrooms
- 1
- Sqft (est)
- 1,393.00
The heatmap indicates the level of crime in the area. The color of the heatmap indicates the crime severity and recency.
Metrics Year-on-Year
- Average area value
- 830,000.00 £Increased by 35.78 %
- Est sale value
- 1,149,225.00 £Increased by 59.57 %
- Average area rental value
- 2,009.00 £/moIncreased by 17.62 %
- Est letting value
- 1,393.00 £/moUnchanged by 0.00 %
- Est rental Yield
- 2.90 %Decreased by 13.43 %
- Crime Rate
- 1.00 %Unchanged by 0.00 %
Agent Activity
Amelies Estate Agents created the listing.
Nearby Schools
| Name | Type | Ofsted | Distance |
|---|---|---|---|
| St Andrew'S Church Of England Primary School | Voluntary Controlled School | Good | 0.68 KM |
| Windmill Primary School | Community School | Outstanding | 0.79 KM |
| Headington School | Other Independent School | 0.83 KM | |
| Cheney School | Academy Converter | Good | 0.99 KM |
| Oxford Brookes University | Higher Education Institutions | Good | 1.04 KM |
Images
Nearby Streets
| Name | Average Price | Average Sqft | Distance |
|---|---|---|---|
| Cecil Sharp Place | £ 0 | 0 | 0.00 KM |
| Old Road | £ 850,000 | 0 | 0.00 KM |
| Brookside | £ 0 | 0 | 0.00 KM |
| Churchill Drive | £ 0 | 0 | 0.00 KM |
| Ingle Close | £ 775,000 | 0 | 0.00 KM |
Nearby Transport
| Name | NLC | TLC | Distance |
|---|---|---|---|
| Oxford | 3115 | OXF | 6.21 KM |
| Islip | 3110 | ISP | 8.13 KM |
| Radley | 3118 | RAD | 8.37 KM |
| Oxford Parkway | 3121 | OXP | 8.51 KM |
Nearby Listings
| Address | Price | Type | Score | Distance |
|---|---|---|---|---|
| Barrington Close, Headington | £ 625,000 | BUY | 6 / 10 | 0.00 KM |
| Stapleton Road, Headington, OX3 | £ 735,000 | BUY | 7 / 10 | 0.09 KM |
| Lime Walk, Headington, Oxford | £ 325,000 | BUY | Unknown | 0.10 KM |
| Latimer Road, Headington, Oxford | £ 785,000 | BUY | 7 / 10 | 0.10 KM |
| Headington, Oxford, OX3 | £ 230,000 | BUY | 5 / 10 | 0.11 KM |
Nearby Properties
| Address | Price | Distance |
|---|---|---|
| 9 Barrington Close | £ 95,500 | 0.01 KM |
| 5 Barrington Close | £ 242,000 | 0.01 KM |
| 15 Barrington Close | £ 240,000 | 0.01 KM |
| 3 Barrington Close | £ 350,000 | 0.01 KM |
| 11a Barrington Close | £ 290,000 | 0.01 KM |