Wellington Hill West | Henleaze
MA

Wellington Hill West | Henleaze

By Maggs & Allen

£ 539,950

Reviews

2 out of 5 stars

Maggs & Allen says ..

A classic 1930's three-bedroom family home boasting an array of original features, occupying a generous corner plot with garage and off-street parking. Offered to the market with no onward chain.

Property Oracle says ..

This three-bedroom, one-bathroom property located on Wellington Hill West in Henleaze, Bristol, presents a mixed bag of pros and cons for prospective buyers. The location in Henleaze is a major positive aspect. The area boasts highly-rated schools and relatively easy access to local amenities. The property itself is a fairly typical example of a 1930’s semi-detached house. The exterior of the property appears in reasonable structural condition and benefits from having a garden. However, the interior shows its age, with dated decor, fixtures, and finishes, signaling a need for substantial modernisation. The kitchen and bathrooms, in particular, are not modern. The photographs showcase the need for a full refurbishment throughout to bring the property to a contemporary standard, which will increase the costs involved in ownership. The lack of available comparable data regarding property size and prices in the immediate vicinity (i.e., square footage data is missing for most nearby listings), makes a definitive evaluation challenging. Overall, the property provides a solid foundation in a desirable neighbourhood but would necessitate significant renovation to maximize its full potential. The asking price should be considered carefully in light of the need for substantial work.

Therefore, we give this property 5 / 10. *Disclaimer: This is our option and does constitute a recommendation or financial advice. Do your own research. *

Price
7
Condition
5
Location
7
Land
4
Bedrooms
3
Bathrooms
1
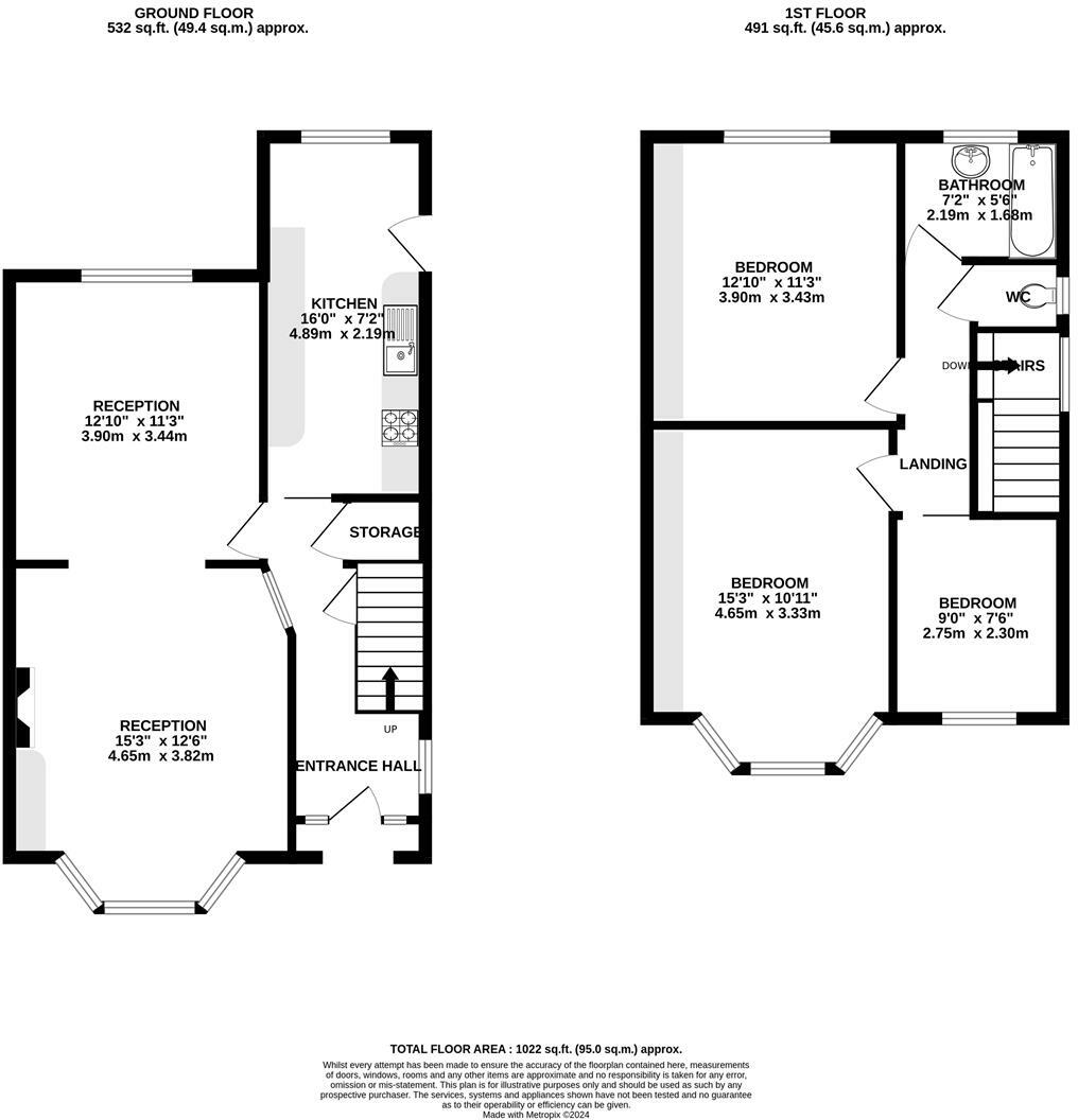
Sqft (est)
1,022.57

The heatmap indicates the level of crime in the area. The color of the heatmap indicates the crime severity and recency.

Metrics Year-on-Year

Average area value
747,632.00 £
Increased by 6.43 %
from 702,490.00 £
Est sale value
717,844.14 £
Increased by 45.64 %
from 492,878.74 £
Average area rental value
1,826.00 £/mo
Decreased by 8.79 %
from 2,002.00 £/mo
Est letting value
1,022.57 £/mo
Unchanged by 0.00 %
from 1,022.57 £/mo
Est rental Yield
2.93 %
Decreased by 14.33 %
from 3.42 %
Crime Rate
3.00 %
Unchanged by 0.00 %
from 3.00 %

Agent Activity

  • Maggs & Allen marked this listing as sold.

  • Maggs & Allen created the listing.

Nearby Schools

NameTypeOfstedDistance
Horfield Church Of England Primary SchoolVoluntary Controlled SchoolGood0.31 KM
Badocks Wood Community Primary School & Children'S CentreChildren's Centre0.81 KM
Claremont SchoolCommunity Special SchoolGood1.12 KM
Henleaze Junior SchoolAcademy ConverterOutstanding1.20 KM
Henleaze Infant SchoolCommunity SchoolRequires improvement1.20 KM

Images

KS2B4793.jpg KS2B4797.jpg _S2B4922.jpg _S2B4930.jpg _S2B4928.jpg _S2B4936.jpg _S2B4937.jpg _S2B4947.jpg _S2B4933.jpg _S2B4923.jpg _S2B4940.jpg _S2B4941.jpg _S2B4921.jpg _S2B4927.jpg _S2B4932.jpg _S2B4942.jpg _S2B4946.jpg KS2B4795.jpg KS2B4950.jpg KS2B4951.jpg KS2B4953.jpg KS2B4955.jpg _S2B4924.jpg _S2B4925.jpg _S2B4926.jpg _S2B4929.jpg _S2B4934.jpg KS2B4952.jpg

Nearby Streets

NameAverage PriceAverage SqftDistance
Bishopthorpe Road £ 360,00000.00 KM
Kelston Close £ 000.00 KM
Greenfield Avenue £ 000.00 KM
Alexandra Road £ 000.00 KM
Francis Road £ 425,00000.00 KM

Nearby Transport

NameNLCTLCDistance
Redland3247RDA2.65 KM
Montpelier3203MTP2.80 KM
Clifton Down3202CFN3.46 KM
Filton Abbey Wood3235FIT4.10 KM
Stapleton Road3250SRD4.38 KM

Nearby Listings

AddressPriceTypeScoreDistance
Wellington Hill West | Henleaze £ 539,950BUY5 / 100.00 KM
Wellington Hill West, Bristol, BS9 4QX £ 640,000BUYUnknown0.06 KM
Wellington Hill West, Bristol, Somerset, BS9 £ 795,000BUY8 / 100.07 KM
Excellent family home offered with no onward chain on Wellington Hill West in Henleaze £ 589,950BUY7 / 100.08 KM
Bibury Crescent | Henleaze £ 850,000BUY7 / 100.11 KM

Nearby Properties

AddressPriceDistance
132 Wellington Hill West £ 430,0000.05 KM
126 Wellington Hill West £ 575,0000.05 KM
134 Wellington Hill West £ 532,0000.05 KM
2 Kendon Drive £ 232,5000.06 KM
6 Kendon Drive £ 565,0000.06 KM