Winkworth says ..
This stylish first floor apartment by award-winning builder McCarthy Stone for over 60's goes well above and beyond standard homes. The apartment will not only be decorated in an elegant contemporary style, but also feature state-of-the-art security for added peace of mind - 24-hour emergency cal...
Property Oracle says ..
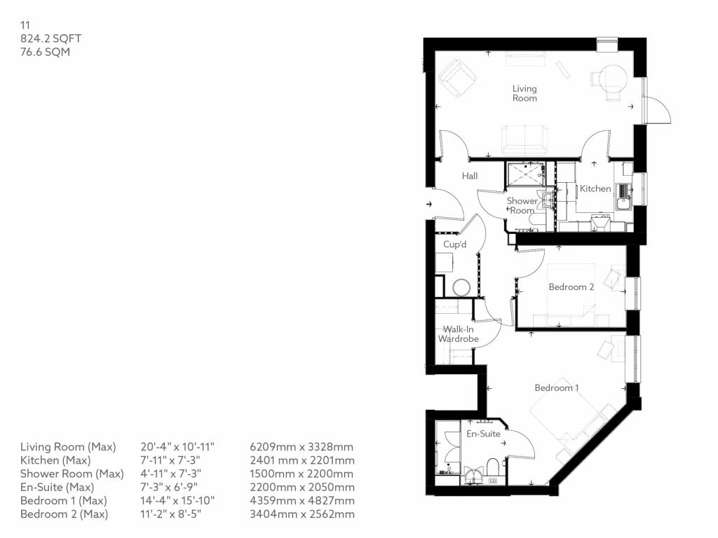
This is a two-bedroom, two-bathroom apartment situated in Oakwood, Enfield, listed with Winkworth estate agents. The property is part of a new development showcasing a modern, contemporary design. The interior pictures highlight high-quality finishes, modern fixtures, and a spacious layout. While the exact square footage isn’t provided, the images suggest a comfortable living space for a couple or small family. The development appears to be well-maintained and benefits from communal green spaces. The location is convenient with access to several schools and transport links to Central London, although some commuting distances may deter those seeking a more central residence. The price sits within the range of nearby comparable listings. However, without square footage data, a definitive price-per-square-foot comparison cannot be made. Potential buyers should carefully consider commuting distances and personal preferences for outdoor space. The lack of detailed plot size information is a notable omission impacting the complete valuation analysis.
Therefore, we give this property 6 / 10. *Disclaimer: This is our option and does constitute a recommendation or financial advice. Do your own research. *
- Price
- 7
- Condition
- 9
- Location
- 7
- Land
- 3
- Bedrooms
- 2
- Bathrooms
- 2
The heatmap indicates the level of crime in the area. The color of the heatmap indicates the crime severity and recency.
Metrics Year-on-Year
- Average area value
- 1,210,561.00 £Increased by 4.57 %
- Average area rental value
- 3,791.00 £/moIncreased by 18.32 %
- Est rental Yield
- 3.76 %Increased by 13.25 %
- Crime Rate
- 6.00 %Unchanged by 0.00 %
Agent Activity
Winkworth created the listing.
Nearby Schools
| Name | Type | Ofsted | Distance |
|---|---|---|---|
| Vita Et Pax School | Other Independent School | 0.33 KM | |
| Southgate School | Academy Converter | Good | 0.46 KM |
| Debohun Children'S Centre | Children's Centre | 0.64 KM | |
| De Bohun Primary School | Community School | Good | 0.64 KM |
| Salcombe Preparatory School | Other Independent School | 1.13 KM |
Images
Nearby Streets
| Name | Average Price | Average Sqft | Distance |
|---|---|---|---|
| Malcolms Way | £ 0 | 0 | 0.00 KM |
| Peace Close | £ 0 | 0 | 0.00 KM |
| Avenue Close | £ 0 | 0 | 0.00 KM |
| Larch Way | £ 0 | 0 | 0.00 KM |
| Avenue Court | £ 515,000 | 0 | 0.00 KM |
Nearby Transport
| Name | NLC | TLC | Distance |
|---|---|---|---|
| Oakleigh Park | 6020 | OKL | 3.45 KM |
| New Southgate | 6019 | NSG | 3.79 KM |
| New Barnet | 6018 | NBA | 4.02 KM |
| Winchmore Hill | 6024 | WIH | 4.23 KM |
| Palmers Green | 6021 | PAL | 4.36 KM |
Nearby Listings
| Address | Price | Type | Score | Distance |
|---|---|---|---|---|
| Westpole Avenue, Oakwood, EN4 | £ 449,999 | BUY | 6 / 10 | 0.00 KM |
| Westpole Avenue, Oakwood, EN4 | £ 449,999 | BUY | 6 / 10 | 0.00 KM |
| Westpole Avenue, Oakwood, EN4 | £ 499,999 | BUY | 6 / 10 | 0.00 KM |
| Westpole Avenue, Oakwood, EN4 | £ 589,999 | BUY | 6 / 10 | 0.00 KM |
| Westpole Avenue, Oakwood, EN4 | £ 589,999 | BUY | 6 / 10 | 0.00 KM |
Nearby Properties
| Address | Price | Distance |
|---|---|---|
| 162 Bramley Road | £ 97,000 | 0.09 KM |
| 128 Bramley Road | £ 740,000 | 0.09 KM |
| 142 Bramley Road | £ 385,000 | 0.09 KM |
| 144 Bramley Road | £ 420,000 | 0.09 KM |
| 160 Bramley Road | £ 700,000 | 0.09 KM |