Llwynhendy Road, Llanelli, SA14 9DP
By MRE - Peter Morgan Real Estate, Powered by eXp
£ 165,000
Reviews
3 out of 5 stars
MRE - Peter Morgan Real Estate, Powered by eXp says ..
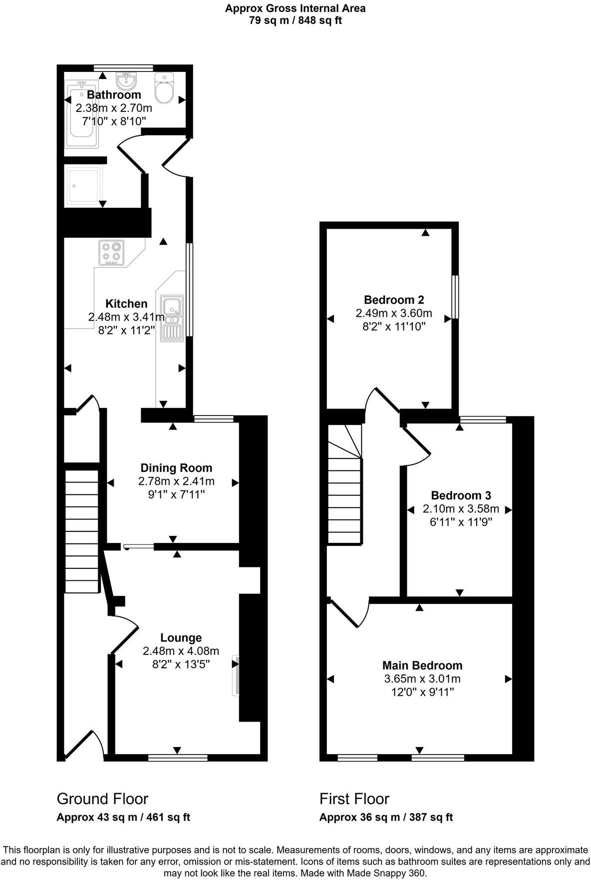
RECENTLY REFURBISHED 3 BEDROOM, 1 BATHROOM END OF TERRACE HOUSE. Conveniently located for the M4 motorway, Prince Philip Hospital, Primary & Secondary Schools, Trostre Retail Park and all the other amenities this area has to offer.
Property Oracle says ..
Therefore, we give this property 7 / 10. *Disclaimer: This is our option and does constitute a recommendation or financial advice. Do your own research. *
- Price
- 8
- Condition
- 7
- Location
- 7
- Land
- 6
- Bedrooms
- 3
- Bathrooms
- 1
The heatmap indicates the level of crime in the area. The color of the heatmap indicates the crime severity and recency.
Metrics Year-on-Year
- Average area value
- 310,998.00 £Decreased by 1.08 %
- Average area rental value
- 1,363.00 £/moIncreased by 13.58 %
- Est rental Yield
- 5.26 %Increased by 14.85 %
- Crime Rate
- 11.00 %Unchanged by 0.00 %
from 314,389.00 £
from 1,200.00 £/mo
from 4.58 %
from 11.00 %
Agent Activity
MRE - Peter Morgan Real Estate, Powered by eXp created the listing.
Nearby Schools
| Name | Type | Ofsted | Distance |
|---|---|---|---|
| Ysgol Gymraeg Brynsierfel | Welsh Establishment | 0.37 KM | |
| Brynteg Primary | Welsh Establishment | 0.73 KM | |
| Bryn C.P. School | Welsh Establishment | 1.26 KM | |
| St Michael'S School | Welsh Establishment | 1.43 KM | |
| St John Lloyd R C School | Welsh Establishment | 1.84 KM |
Images
Nearby Streets
| Name | Average Price | Average Sqft | Distance |
|---|---|---|---|
| Parc Gitto | £ 185,000 | 0 | 0.00 KM |
| Gors Fach | £ 0 | 0 | 0.00 KM |
| B4303 | £ 0 | 0 | 0.00 KM |
| Craigwen | £ 104,995 | 0 | 0.00 KM |
| Clos Y Chwarel | £ 0 | 0 | 0.00 KM |
Nearby Transport
| Name | NLC | TLC | Distance |
|---|---|---|---|
| Bynea | 4124 | BYE | 2.43 KM |
| Llanelli | 4133 | LLE | 4.64 KM |
| Llangennech | 4138 | LLH | 4.70 KM |
| Pontarddulais | 4251 | PTD | 9.25 KM |
| Gowerton | 4131 | GWN | 9.86 KM |
Nearby Listings
| Address | Price | Type | Score | Distance |
|---|---|---|---|---|
| Llwynhendy Road, Llanelli, SA14 9DP | £ 165,000 | BUY | 7 / 10 | 0.00 KM |
| Lyn Gar Llwynhendy Road, Llwynhendy, Llanelli | £ 299,995 | BUY | Unknown | 0.05 KM |
| Lyn Gar Llwynhendy Road, Llwynhendy, Llanelli, SA14 | £ 325,000 | BUY | Unknown | 0.05 KM |
| Lyn Gar Llwynhendy Road, Llwynhendy, Llanelli, SA14 | £ 325,000 | BUY | Unknown | 0.05 KM |
| Parc Gitto, Llwynhendy, Llanelli, Carmarthenshire, SA14 | £ 425,000 | BUY | 7 / 10 | 0.17 KM |
Nearby Properties
| Address | Price | Distance |
|---|---|---|
| 21 Llwynhendy Road | £ 125,000 | 0.01 KM |
| 11 Llwynhendy Road | £ 85,000 | 0.01 KM |
| 6 Llwynhendy Road | £ 139,995 | 0.01 KM |
| 44 Llwynhendy Road | £ 80,000 | 0.01 KM |
| 23 Llwynhendy Road | £ 90,000 | 0.01 KM |