Blackbear says ..
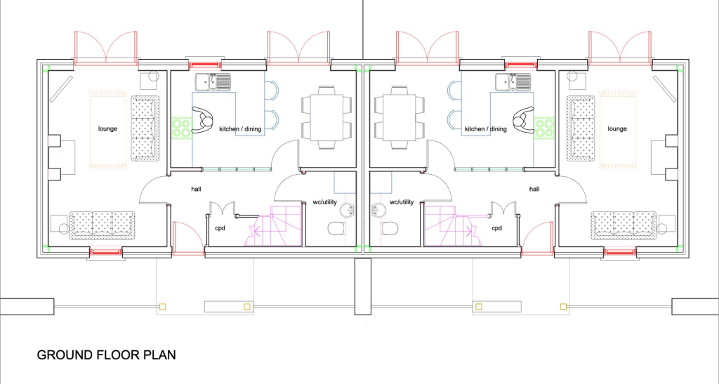
A rare and exciting chance to purchase two Freehold plots with approved planning permission for the construction of two attractive three-bedroom semi-detached cottages, located in the heart of the vibrant market town of Narberth.Ideally situated just a short stroll from the town’s lively high str...
Property Oracle says ..
This is a plot of land for sale on Back Lane, Narberth. The listing price is £90,000. The plot is located in a convenient location, close to local amenities, schools and transportation. The plot requires complete construction. The price seems reasonable for a plot of land in this location. The average price in Narberth is £140,000.
Therefore, we give this property 5 / 10. *Disclaimer: This is our option and does constitute a recommendation or financial advice. Do your own research. *
- Price
- 8
- Condition
- 1
- Location
- 7
- Land
- 6
- Bedrooms
- 0
- Bathrooms
- 0
The heatmap indicates the level of crime in the area. The color of the heatmap indicates the crime severity and recency.
Metrics Year-on-Year
- Average area value
- 140,000.00 £Decreased by 43.56 %
- Average area rental value
- 807.00 £/moDecreased by 3.00 %
- Est rental Yield
- 6.92 %Increased by 72.14 %
- Crime Rate
- 299.00 %Unchanged by 0.00 %
Agent Activity
Blackbear created the listing.
Nearby Schools
| Name | Type | Ofsted | Distance |
|---|---|---|---|
| Landsker Education | Welsh Establishment | 0.21 KM | |
| Narberth Cp School | Welsh Establishment | 0.22 KM | |
| Templeton C.P. School | Welsh Establishment | 2.65 KM | |
| Redhill High School | Welsh Establishment | 6.25 KM | |
| Brynconin Cp | Welsh Establishment | 7.03 KM |
Images
Nearby Streets
| Name | Average Price | Average Sqft | Distance |
|---|---|---|---|
| Church Street | £ 170,000 | 0 | 0.00 KM |
| Moorfield Road | £ 450,000 | 0 | 0.00 KM |
| The Crescent | £ 425,000 | 0 | 0.00 KM |
| Redstone Court | £ 0 | 0 | 0.00 KM |
| Mill Pond Road | £ 0 | 0 | 0.00 KM |
Nearby Transport
| Name | NLC | TLC | Distance |
|---|---|---|---|
| Narberth | 4098 | NAR | 1.76 KM |
| Clunderwen | 4070 | CUW | 4.84 KM |
| Kilgetty | 4083 | KGT | 7.97 KM |
| Saundersfoot | 4108 | SDF | 8.95 KM |
Nearby Listings
| Address | Price | Type | Score | Distance |
|---|---|---|---|---|
| Back Lane, Narberth, SA67 | £ 90,000 | BUY | 5 / 10 | 0.00 KM |
| Back Lane, Narberth, SA67 | £ 150,000 | BUY | 7 / 10 | 0.01 KM |
| Chapelfield Gardens, Narberth, Pembrokeshire, SA67 | £ 170,000 | BUY | 6 / 10 | 0.07 KM |
| Kings Court, Narberth | £ 165,000 | BUY | 6 / 10 | 0.07 KM |
| Market Square, Narberth, Pembrokeshire, SA67 | £ 95,000 | BUY | 5 / 10 | 0.09 KM |
Nearby Properties
| Address | Price | Distance |
|---|---|---|
| 11 Chapelfield Gardens | £ 90,000 | 0.07 KM |
| 17 Chapelfield Gardens | £ 157,000 | 0.07 KM |
| 14 Chapelfield Gardens | £ 105,000 | 0.07 KM |
| Ty Bach | £ 62,725 | 0.08 KM |
| 14 Market Square | £ 410,000 | 0.08 KM |