Ambleside Road, Lymington, SO41
By Fells Gulliver
£ 545,000
Reviews
3 out of 5 stars
Fells Gulliver says ..
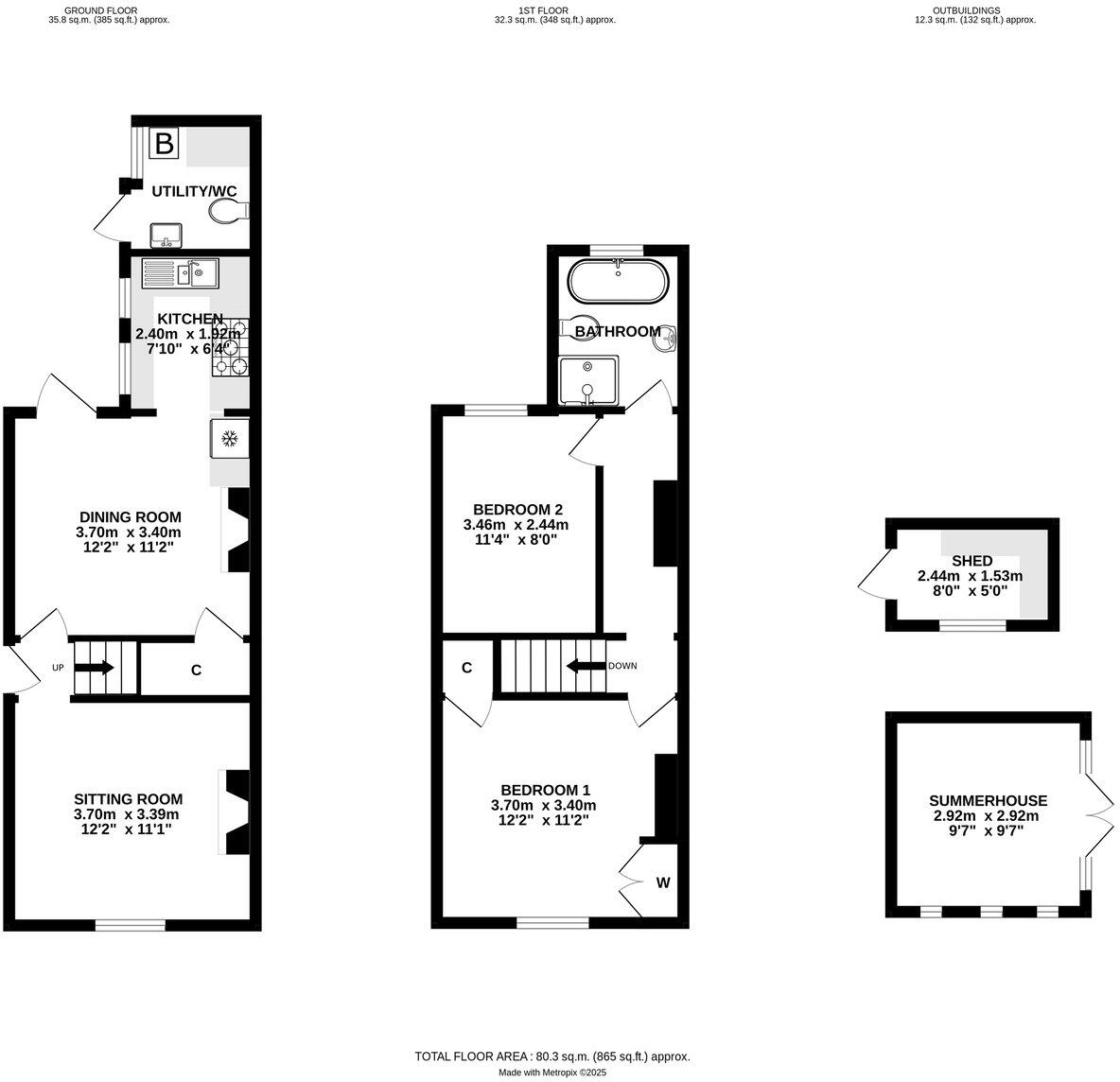
Located on the popular south side of Lymington High Street in a no-through road, this beautifully presented light and airy character house offers well proportioned accommodation and benefits from two double bedrooms, a utility room, and a good size garden with summerhouse/garden chalet to use ...
Property Oracle says ..
This is a well-presented semi-detached property on Ambleside Road, Lymington. The house benefits from a modern interior, including a recently updated kitchen and bathroom. The property also features a garden with a shed, providing additional outdoor space. Its location offers good access to local amenities, schools, and transportation links, making it a desirable home for families and commuters. While the price is slightly above the local average, the condition and features of the property justify the cost. The property is located close to several schools and transport links.
Therefore, we give this property 7 / 10. *Disclaimer: This is our option and does constitute a recommendation or financial advice. Do your own research. *
- Price
- 6
- Condition
- 8
- Location
- 8
- Land
- 7
- Bedrooms
- 2
- Bathrooms
- 1
- Sqft (est)
- 864.34
The heatmap indicates the level of crime in the area. The color of the heatmap indicates the crime severity and recency.
Metrics Year-on-Year
- Average area value
- 492,217.00 £Decreased by 14.13 %
- Est sale value
- 682,828.60 £Increased by 44.69 %
- Average area rental value
- 1,375.00 £/moDecreased by 21.52 %
- Est letting value
- 1,728.68 £/moIncreased by 100.00 %
- Est rental Yield
- 3.35 %Decreased by 8.72 %
- Crime Rate
- 5.00 %Unchanged by 0.00 %
Agent Activity
Fells Gulliver created the listing.
Nearby Schools
| Name | Type | Ofsted | Distance |
|---|---|---|---|
| Lymington Church Of England Infant School | Voluntary Aided School | Outstanding | 1.03 KM |
| Lymington Junior School | Community School | Good | 1.25 KM |
| Priestlands School | Academy Converter | Good | 1.39 KM |
| Pennington Church Of England Junior School | Voluntary Controlled School | Requires improvement | 1.79 KM |
| Pennington Infant School | Community School | Good | 1.79 KM |
Images
Nearby Streets
| Name | Average Price | Average Sqft | Distance |
|---|---|---|---|
| Victoria Place | £ 0 | 0 | 0.00 KM |
| Ostlers Yard | £ 1,175,000 | 0 | 0.00 KM |
| South Grove | £ 1,895,000 | 0 | 0.00 KM |
| New Street Mews | £ 550,000 | 0 | 0.00 KM |
| Angel Courtyard | £ 0 | 0 | 0.00 KM |
Nearby Transport
| Name | NLC | TLC | Distance |
|---|---|---|---|
| Lymington Town | 5887 | LYT | 0.91 KM |
| Lymington Pier | 5892 | LYP | 1.40 KM |
| Brockenhurst | 5886 | BCU | 7.87 KM |
| Sway | 5884 | SWY | 8.34 KM |
Nearby Listings
| Address | Price | Type | Score | Distance |
|---|---|---|---|---|
| Ambleside Road, Lymington, SO41 | £ 545,000 | BUY | 7 / 10 | 0.00 KM |
| Ambleside Road, Lymington, Hampshire, SO41 | £ 650,000 | BUY | 7 / 10 | 0.02 KM |
| Ambleside Road, Lymington, Hampshire, SO41 | £ 525,000 | BUY | Unknown | 0.07 KM |
| Gold Mead Close, Lymington, Hampshire, SO41 | £ 895,000 | BUY | 7 / 10 | 0.10 KM |
| Daniells Close, Lymington, Hampshire | £ 1,500,000 | BUY | Unknown | 0.11 KM |
Nearby Properties
| Address | Price | Distance |
|---|---|---|
| 14 Ambleside Road | £ 350,000 | 0.06 KM |
| 42 Ambleside Road | £ 410,000 | 0.06 KM |
| 37 Ambleside Road | £ 700,756 | 0.06 KM |
| 21 Ambleside Road | £ 530,000 | 0.06 KM |
| 23 Ambleside Road | £ 745,000 | 0.06 KM |